查看完整案例

收藏

下载

翻译
PIRS Quarter
Type: Residential premises / Architecture
Location: Minsk, Belarus
Timeline: 2016-2017
Project Team: Katerina Kovaliova, Kirill Skorynin, Ilya Polonski, Dmitry Sergienya, Kristina Pototskaya, Veranika Zanouskaya, Aliaksei Zanouski, Vlad Chabai (LEVEL80 | architects)
PIRS Quarter is a modern suburban apartment quarter located in a picturesque place near the Minsk Sea. As in other projects with A-100 Development, we not only developed the site but also created a neighborly environment where we would like to live personally.
In this case, this is not only the neighborhood with people but also the neighborhood of a human being with nature. Due to the low number of stories, its variability, good location, and usage of natural materials in facade solutions and landscaping, our team formed a comfortable environment for life and preserved the dominance of nature. We also developed a building typology: Urban Villa, Town House, Cottage.
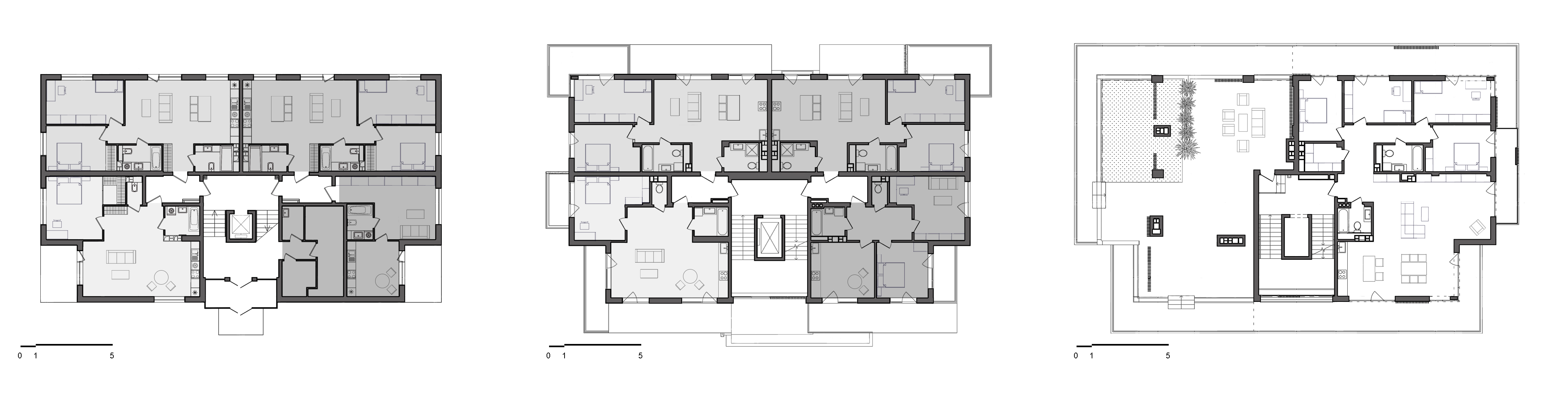
Urban Villa is a unique type of cast-in-place residential building designed specifically for the quarter. They are designed so that residents could enjoy all the advantages of suburban life with urban comfort.
What sets Urban Villa apart is— small number of stories up to 5 floors— high ceilings: 3 meters for 1-4 floors and 3.5 meters for the top-floor penthouse. Apartments are filled with natural light through panoramic windows which expands the space and blurs the borders between the surrounding nature and man.
The Town House series is an example of housing for people who are not ready for a country house with a spacious yard, but for those who are looking for an option with a small private green area for rest.
Here we settled on 3 types of houses for 80, 120, and .160 sq.m with one-family and two-family options. Each of them is unique in its way, but together they form a single architectural image.
The relatively small area of the complex is saturated with infrastructure. In the center of the complex, there is a canal. It begins with two small artificial waterfalls, flows through the center of the block, and ends with children’s equipment for playing with water.
The canal has quiet areas with stationary sunbeds and hammocks. Here you can relax at any time — practice yoga on special wooden decks near the water in the morning or walk along the illuminated canal in the evening.
Read more
客服
消息
收藏
下载
最近























