查看完整案例

收藏

下载
De Hartenrust是位于鹿特丹罗特河弯曲处的一栋新建社会住宅楼。建筑由塔楼公寓、联排别墅以及街角住宅组成,共同形成一座多功能雕塑,标志着人口稠密的Oude Noorden社区与绿色宜居的河岸之间的联系。该建筑包含36套可负担社会住宅,包括家庭住宅和公寓。尽管面积紧凑,每套公寓都拥有宽敞空间、遮蔽的露台以及可俯瞰城市的法式阳台,同时共享屋顶花园。独栋家庭住宅的前门面向街道,并配有屋顶露台。坚固的雕塑式建筑通过温暖而丰富的材料得以柔化。立面采用坚固砖砌结构,配以竖向排列的浅色窗户节奏和绿色釉面砖基座,与周边19世纪建筑风格相呼应。De Hartenrust通过建设被动式、良好隔热、面向未来的住宅,并配备自然通风与绿色蓄水屋顶,为健康宜居的城市作出贡献。
De Hartenrust is a new social housing building on the bend of the River Rotte in Rotterdam. The building consists of tower apartments, townhouses and corner houses. Together they form a versatile sculpture that marks the connection between the densely populated Oude Noorden neighbourhood and the green, liveable riverbanks. The building contains 36 affordable social housing units, including family homes and apartments. Despite their compact size, all apartments are spacious with sheltered loggias and wide French balconies overlooking the city, while sharing a communal roof garden. The single-family homes have front doors facing the street and roof terraces. The sturdy, sculptural building is softened by warm and rich materials. The façades are made of robust brickwork with an alternating rhythm of vertical, light-coloured windows and a green glazed brick plinth that matches the surrounding 19th-century neighbourhood. De Hartenrust contributes to a healthy and liveable city by building passive, well-insulated, and future-proof homes with natural ventilation and green, water retention roofs.
▼建筑概览,Overall view© Filip Dujardin
“与Havensteder基金会合作,我们在一个复杂的市中心小地块上实现了多样化住宅,使这一美丽地段得以充分利用并完整呈现。”
—— Jago van Bergen, van Bergen Kolpa Architects
“Together with Havensteder Foundation, we have realised a building with a wide variety of homes on a small, complex inner-city site, which makes optimal use of and completes this beautiful location.”
—— Jago van Bergen, van Bergen Kolpa Architects
▼街景,street views© Filip Dujardin
多功能雕塑
Versatile sculpture
De Hartenrust延续了罗特河桥附近高层建筑的城市序列。建筑由三部分组成,其独特的街角造型形成了街道、社区和城市尺度的多功能雕塑。九层塔楼成为罗特河的地标。基座、中段和顶端的阶梯式悬挑与河流弯曲处巧妙呼应。四层街角住宅通过经典的阶梯倒角标示街道交叉点。塔楼与街角住宅之间的三层联排别墅突出各个住宅单元的独立性。
▼分析图,analysis diagram©van Bergen Kolpa Architects
De Hartenrust continues the urban sequence of taller buildings near the bridges over the Rotte. The building consists of three sections and, with its distinctive corners, forms a versatile sculpture on the scale of the street, the neighbourhood, and the city. The nine-storey tower serves as a landmark on the Rotte. The stepped cantilever of the plinth, middle and top interacts subtly and elegantly with the bend in the river. The four-storey corner houses mark the intersection of the streets with a classic stepped chamfer. Between the tower and corner houses, three-storey townhouses on the street accentuate the individual homes.
▼城市环境鸟瞰,aerial view of the site© Filip Dujardin
▼由周边环境看住宅楼,viewing the residential building from surrounding environment© Filip Dujardin
▼街景,street view© Filip Dujardin
“独特的建筑设计与高水平的建筑质量丰富了社区的城市结构。”—— Mattijs van Ruijven, 鹿特丹市城市规划主管
“The unique building design and architectural quality enrich the urban structure of the neighbourhood.” —— Mattijs van Ruijven, Head of Urban Planning, Municipality of Rotterdam
▼街景,street view© Filip Dujardin
▼独特的街角造型,unique corner style© Filip Dujardin
▼九层塔楼立面,facade of the nine-story tower© Filip Dujardin
▼沿街立面近景,closer views of the facade along the street© Filip Dujardin
宽敞的社会住宅
Generous social housing
De Hartenrust在延续社会住宅丰富传统的同时,满足了现代对多样性与空间宽敞性的需求。建筑提供从大型家庭住宅到紧凑公寓的多种户型。尽管面积紧凑,角落位置与宽法式阳台让公寓光线与空气充盈每个房间,使居住体验宽敞舒适。家庭住宅的厨房、客厅和卧室贯通全宽,楼层间通过开阔楼梯连接。
▼户型分析图,analysis of the home types©van Bergen Kolpa Architects
De Hartenrust celebrates the rich tradition of social housing with a contemporary need for diversity and spatial generosity. The building offers a variety of housing types for its residents, from large family homes to compact apartments. Despite the compactness, the apartments feel very spacious thanks to their corner position with wide French balconies that allow light and air to flow into every room. In the family homes, the kitchen, living room and bedroom span the full width of the home, and the floors are connected by a spacious, open staircase.
▼入户大堂,entrance lobby© Filip Dujardin
“清晰的平面布局充分利用可用空间,即便是小户型也能为居民提供宽敞的居住区域。”—— Ferdi Jeelof, Havensteder住房协会项目经理
“The clear floor plans make optimal use of the available space. This gives our residents a spacious living area, even with a smaller surface area.”—— Ferdi Jeelof, project manager for implementation at Havensteder Housing Association
▼公寓室内,interior of the apartment© Filip Dujardin
社交空间
Spaces for social interaction
建筑为居民创造了社交空间,并向周边环境开放。双层入口大厅构成中心、欢迎性的入口,各项设施和自行车停放区一目了然。夹层适用于公共活动。入口前设有小型绿色广场和河边长椅。屋顶共享露台坐落在树梢间,为户外活动提供空间并拥有全景视野。家庭住宅前门及带大窗的厨房餐区面向街道,活跃了人行道,促进与邻里的互动。
The building creates spaces for residents to meet each other and is invitingly open to the surrounding area. The double-height entrance hall forms a central, welcoming entrance, with the various facilities and bike parking areas immediately visible. The mezzanine floor lends itself to communal use and activities. In front of the entrance is a small green square with benches by the water. The shared roof terrace, nestled among the treetops, offers space for outdoor activities with panoramic views. The family homes have their front doors and kitchen-diners with large windows facing the street, which activate the pavement and encourage interaction with the neighbourhood.
▼露台,terrace© Filip Dujardin
“除了提供可负担住房,我们还致力于创建宜居社区。De Hartenrust通过提供空间与机会,让居民可以相互交流。”—— Christa Vithol, Havensteder住房协会住房主管
“In addition to affordable housing, we are working to create liveable neighbourhoods. De Hartenrust residential building contributes to this by giving residents the space and opportunity to meet each other.” —— Christa Vithol, Director of Housing at Havensteder Housing Association
▼露台,terrace© Filip Dujardin
温暖而丰富的材料应用
Warm and rich materialisation
坚固的建筑雕塑通过温暖而丰富的材质得到柔化,与周边19世纪社区呼应。三部分建筑以细腻的黄色砖砌完成,绿色釉面砖基座呼应街区。灰色两色的勾缝处理在建筑分段、凹入窗户与檐口凹槽间创造微妙差异。浅橄榄黄窗框与栏杆与双色砖形成温和“ton sur ton”效果。黄铜灯具与门牌细节赋予建筑丰富而真实的质感。
The sturdy building sculpture is softened by warm and rich materialisation that matches the surrounding 19th-century neighbourhood. The three building sections are finished in nuanced yellow brickwork on a plinth of green glazed bricks. The jointing in two shades of grey creates a subtle difference between the building sections, recessed windows and indentations in the cornice. The light olive-yellow window frames and railings create a calm “ton sur ton” effect with the brickwork in two colours. Brass details for lighting and house numbering give the whole building a rich and authentic character.
▼建筑立面,facade© Filip Dujardin
“通过De Hartenrust,我们为居民提供了高质量建筑的住宅楼。其宽敞的外观和美丽的地段在社会住宅中尤为突出。”—— Marije Bouman, Havensteder发展与收购经理
“With De Hartenrust, we offer our residents a residential building with high-quality architecture. Its spacious appearance and beautiful location are exceptional for social housing.”
—— Marije Bouman, development and acquisition manager at Havensteder
▼公寓楼入口,entrance of the apartment building© Filip Dujardin
面向未来
Future proof
建筑通过面向未来的设计为健康宜居城市作出贡献。被动式、蓄热良好且隔热完善的住宅实现了极低能耗,并配备内置遮阳和自然通风系统。绿色蓄水屋顶与露台缓解洪涝与干旱,改善生活环境并提升生物多样性。
The building contributes to a healthy and liveable city by being future proof. Minimal energy demand is achieved through passive, heat-accumulating and well-insulated homes, combined with built-in sun blinds and natural ventilation. Green, water retention terraces and roofs mitigate flooding and drought, improve the living environment, and enhance biodiversity.
▼浅橄榄黄窗框与栏杆与双色砖,light olive yellow window frames and railings with two-tone bricks © Filip Dujardin
“除了智能能源与水管理方案,我们还通过使用生物基内腔墙和可循环利用的窗框,大幅提升建筑的未来适应性。”—— Jaap-Jan Smit, BAM Wonen主管
“In addition to smart energy and water solutions, we are able to substantially increase the future-proofing of the building through the use of bio-based inner cavity walls and circular windows and frames.” —— Jaap-Jan Smit, Director of BAM Wonen
▼场地平面图,site plan©van Bergen Kolpa Architects
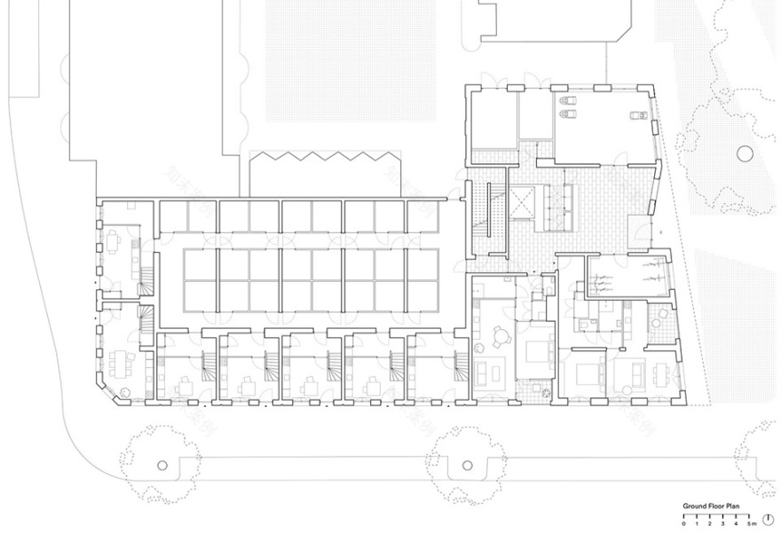
▼底层平面图,ground floor plan©van Bergen Kolpa Architects
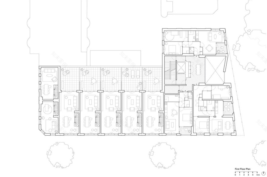
▼二层平面图,first floor plan©van Bergen Kolpa Architects
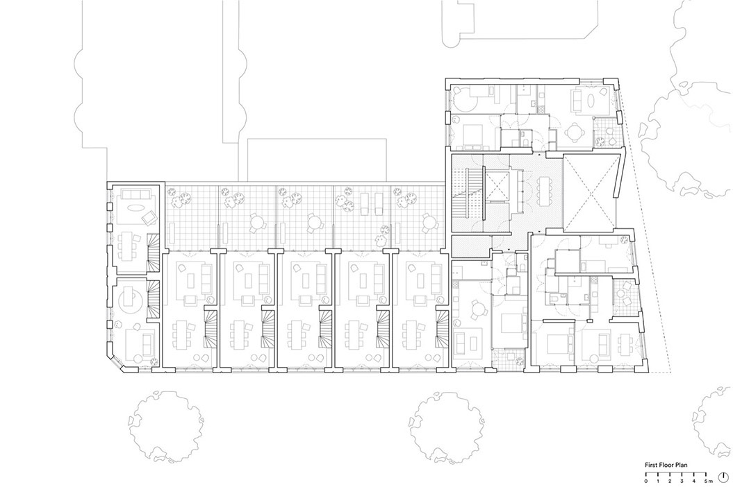
▼四层平面图,third floor plan©van Bergen Kolpa Architects
▼塔楼平面图,floor plans of the tower©van Bergen Kolpa Architects
▼立面图,elevations©van Bergen Kolpa Architects
▼剖面图,section©van Bergen Kolpa Architects
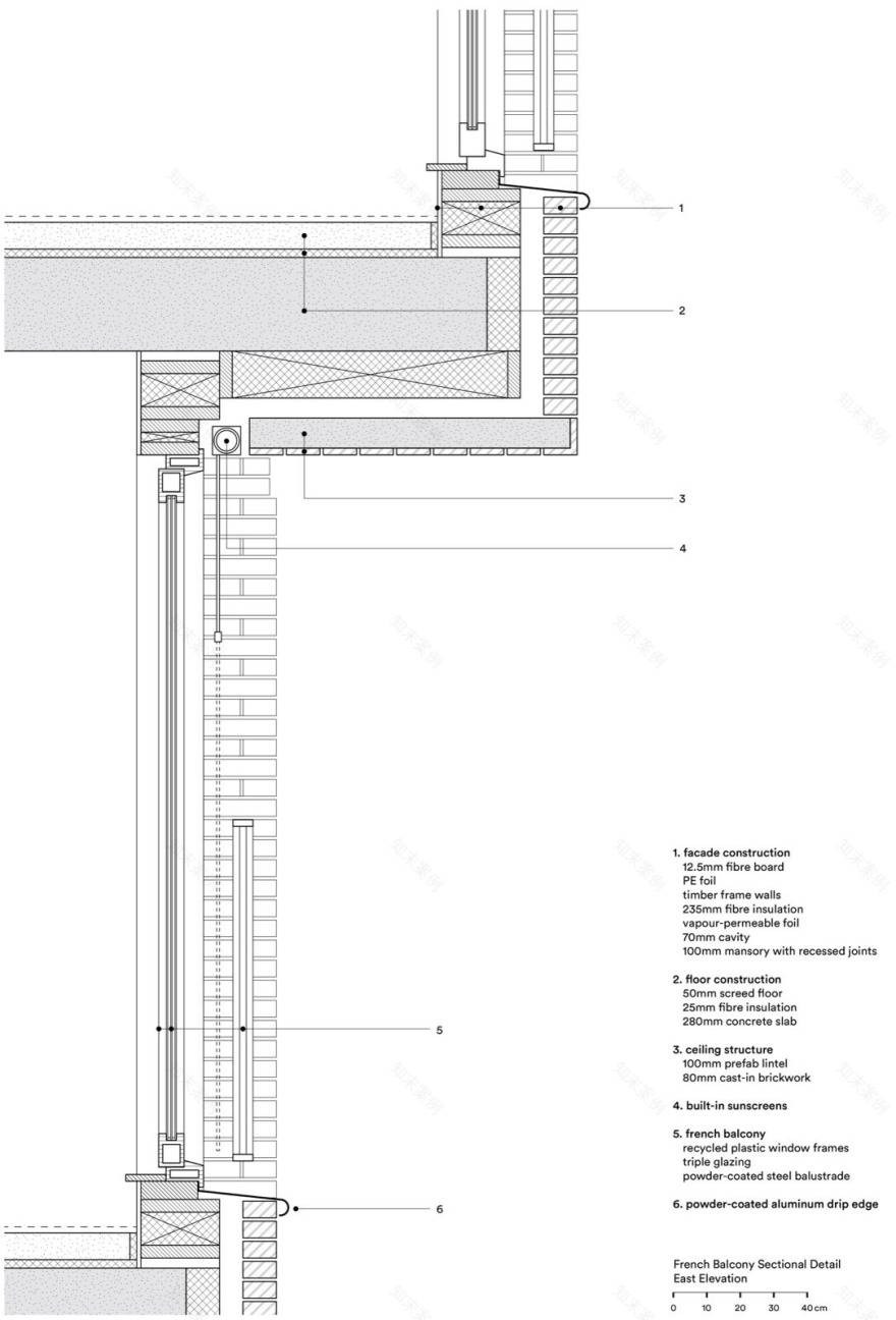
▼细部详图,construction details©van Bergen Kolpa Architects
Practical information
Client: Havensteder Foundation
Project: Residential building with 29 apartments and 7 single-family homes
Location: Zwaanshalskade Hartenruststraat Rotterdam
Construction: Pieters Bouwtechniek
Building physics: ZRI
Contractor: BAM Wonen
Planning: design 2018-2023, implementation 2024-2025
Photography: Filip Dujardin
客服
消息
收藏
下载
最近








































