知末
知末
创作上传
VIP
收藏下载
登录 | 注册有礼

小学建筑设计

2021/12/05 18:17:44
查看完整案例
微信扫一扫
收藏
下载
翻译
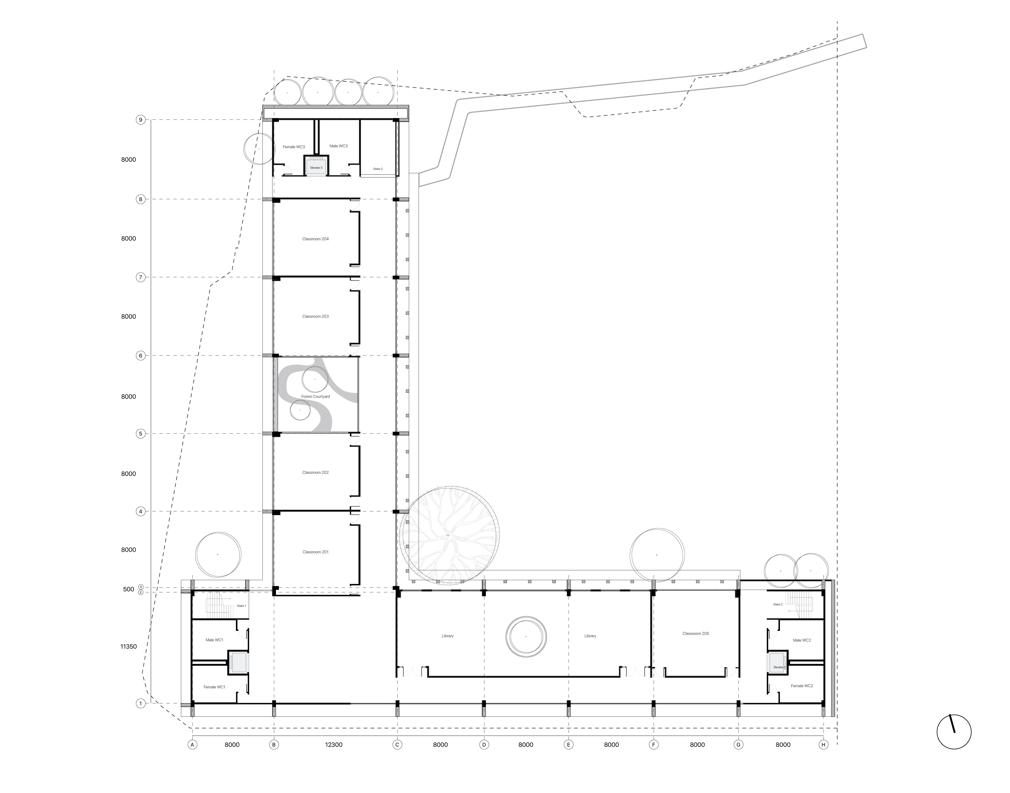
Primary School
Architectural Concept Design
Role: Architectural (Exterior & Interior) Design, Conceptual Design, Visualization
小学建筑设计-3
小学建筑设计-4
小学建筑设计-5
小学建筑设计-6
小学建筑设计-7
小学建筑设计-8
小学建筑设计-9
小学建筑设计-10
小学建筑设计-11
Thank You!
For checking out my project!
南京喵熊网络科技有限公司 苏ICP备18050492号-4知末 © 2018—2020 . All photos and trademark graphics are copyrighted by their owners.增值电信业务经营许可证(ICP)苏B2-20201444苏公网安备 32011302321234号
客服
消息
收藏
下载
最近