查看完整案例

收藏

下载
I.“厝”与“厝边”
Cuò Typology
潮汕地区以“厝”为宅。在历史变迁中,发展出了“下山虎”、“四点金”等丰富的民居类型。
In the Chaoshan region, “Cuò” refers to residential dwellings. Throughout historical evolution, rich residential typologies such as “下山虎” (Descending Tiger) and “四点金” (Four-point Gold) have developed.
▼溪口厝,Xikou Cuò ©Wu Siming
▼溪口厝小巷,Xikou Cuò alleys©Wu Siming
在潮汕及闽南语系中,“厝”不仅指代房屋的物理空间,亦延伸为“厝内”(家族)与“厝边”(邻里)的社会联结。某种意义上,地域性的“厝”可视为血缘与地缘关系在物理空间中的重构。
In the Chaoshan and Minnan language systems, “Cuò” not only denotes the physical space of a house but also extends to social connections like “厝内” (Cuò-neì, family) and “厝边” (Cuò-biān, neighborhood). In a sense, the regional “Cuò” can be seen as a reconstruction of blood and geographical relationships within physical space.
▼附近的老村与潮汕传统民居类型,
Old Village and Vernacular House Typologies in Chaoshan Region ©Atelier ALL
溪口厝位于潮州近郊,属于乡镇统一规划的新农村建设用地。用地距离老村不远,濒临一条分岔的溪流。周边散落着若干独栋农宅,在开阔的田野上,形成星罗棋布的肌理。基地西南临近溪水,东北紧靠乡道,面宽约16米,进深约24米,临水一侧存在约4米的高差。依据地形条件和宅基地范围,房子主体只能布置于乡道一侧,而生活附属场地可安排在临溪的区域。房主刘叔与张阿姨是居住在乡下的一对老年夫妇,子女均在外地工作。他们对建房的诉求直接而朴素:在满足15米限高前提下,建筑体量不宜显得低矮,且须设置不少于10间卧室,以满足家庭团聚与接待乡邻的多重场景。这一需求超出了单纯的居住功能,暗含着对家族绵延与社交活力的期待。由此引出了设计思考:在传统村落肌理已接近消失的背景下,一座私宅,除了满足居住需求之外,能否延续乡村的邻里生活,植入适度的公共属性?
▼总平面图,Site Plan ©Atelier ALL
▼工作模型,Working Models ©Atelier ALL
Xikoucuò is located on the outskirts of Teochow, on a uniformly planned new rural construction site. The plot is not far from the old village, adjacent to a branching stream. Scattered around the site are several detached farmhouses, forming a starry, dispersed texture across the open fields. The residential plot faces the stream to the south and backs onto a planned rural road to the north, with a width of approximately 16 meters and a depth of about 24 meters. There is a height difference of about 4 meters on the stream side. Based on topographical conditions and construction regulations, the main building must be placed on the road side, while ancillary living areas are preferably arranged near the stream. The homeowners, Uncle Liu and Aunt Zhang, are an elderly couple with children working outside the region. Their requirements for the house are straightforward and modest: within the 15 - meter height limit, the building volume should not appear too low, and it must include no fewer than 10 bedrooms to accommodate family gatherings and neighborly hospitality. This need extends beyond mere residential function, hinting at expectations for family continuity and social vitality. This raises a design consideration: Against the backdrop of the near disappearance of traditional village fabric, can a private residence, beyond meeting living needs, also sustain rural neighborhood life and incorporate a degree of public character?
▼基地位置,Site Location©Atelier ALL
▼农村肌理,Rural Fabric ©Wu Siming
设计将住宅分为“下院”与“上宅”两部分,分别应对水平与垂直、公共与私密的不同需求:
“下院”——水平体量,是对“院落”的重构,具有一定公共属性。
“上宅”——垂直体量,是对“家宅”的抽象,属于家庭私人领域。
The design divides the house into two parts: the “Lower Courtyard” and the “Upper House”, addressing different needs for horizontality and verticality, public and private domains:
“Lower Courtyard” – A horizontal volume that reinterprets the “courtyard”, possessing a certain public character.
“Upper House” – A vertical volume that abstracts the “family spaces”, belonging to the private realm of the family.
▼轴测图,Axonometric Drawing ©Atelier ALL
建筑体量分为两个部分:下部为清水混凝土基座,上部为从基座脱开的双坡顶体量。从稍远处望去,建筑呈现内敛而抽象的姿态,其外观令人联想起农村常见的农舍或谷仓,与周边农宅及远处城市高层住宅形成鲜明对比,矗立在田野之中。
The building volume is clearly divided into two parts: the lower section is a fair-faced concrete base, while the upper section is the main structure with a brick-and-tile pitched roof. From a distance, the building presents a reserved and abstract posture, reminiscent of common rural farmhouses or granaries, standing in stark contrast to the surrounding farmhouses and distant urban high-rises, anchored in the fields.
▼建筑体量与周边环境,
Building Mass and Surrounding Context ©Wu Siming
II.“下院”——厝边的客厅
“Lower Courtyard” – Social Living Room
潮汕民居以“四点金”为代表,其空间以天井庭院为核心,居住单元沿轴线纵横延展,形成适应不同规模的聚落体系。这种以院落组织日常生活的模式,无论在东方的园林,或西方的居住传统中皆有体现。设计延续这一空间逻辑,在场地中植入一个“井”字形空间框架,构建一座“有院子的房子”,让生活围绕庭院展开。[1]“下院”为单层的水平体量,连续的混凝土墙限定了院落范围。除车库门以外,仅在前后设两处圆形开口,延续潮汕民居的内向特质。洞口构成了内外交流界面,暗示了内部庭院的存在,引导人进入探访。
▼空间框架,Spatial Framework ©Atelier ALL
Chaoshan vernacular architecture, represented by the “四点金” (Four-point Gold) typology, centers around a courtyard as its spatial core, with living units extending along axes to form a settlement system adaptable to different scales. This model of organizing daily life around courtyards is evident in both Eastern garden traditions and Western residential practices. The design continues this spatial logic by embedding a grid spatial framework within the site, creating a “house with courtyards” to center life around the courtyard. The “Lower Courtyard” is a single-story horizontal volume enclosed by fair-faced concrete walls, with only two circular openings on the exterior, perpetuating the introverted character of Chaoshan dwellings. These openings form interfaces for internal and external interaction, hinting at the existence of an inner courtyard and inviting visitors to explore.
▼入口,Entrance ©Wu Siming
首层房子中部由横向通长的混凝土墙贯穿室内外,划分出尺度各异的“间”,再结合纵向的水泥空心砖砌块和砖墙,形成多个套叠的院落。空间“隔而不断”,人在其间行走,视线可以交流,风与光亦得以透过墙间,在层层庭院之间流转渗透。
Inside, a courtyard system is defined by intersecting walls. These walls delineate courtyard units of varying scales, using openings and perforated prefabricated brick walls to create independent yet interconnected spaces—”divided but not severed”. As one moves through, sightlines remain connected; wind and light permeate through gaps between walls, flowing and filtering through the layered courtyards.
▼庭院,Courtyards ©Wu Siming
中心庭院设有一方浅池,作为空间组织的锚点。以此为原点,东西向连接入口,南北向可以串联北侧起居厅与南侧的茶亭。
A shallow pool is placed in the central courtyard, serving as an anchor for spatial organization. From this focal point, east-west connections lead to the entrances, while north-south links connect the northern living room with the southern tea pavilion.
▼水庭,Water Courtyard ©Wu Siming
南侧茶亭为三开间的半开敞空间,屋顶覆盖自然生长的野草,下部空间朝向溪流与竹林敞开。天气晴好时,刘叔常在此冲泡工夫茶,接待来访的好友。茶亭东侧设有直跑楼梯,可向下连接嵌入坡地的三间客房,并通往临溪的院子与苗圃。
The southern tea pavilion is a semi-open three-bay space with a soil-covered, vegetated roof, fully open to the stream and bamboo grove. On fine days, Uncle Liu often brews “Gongfu tea” here to receive visiting neighbors. A straight-run staircase on the east side of the tea pavilion descends to three guest rooms embedded in the slope, leading to the streamside field and nursery.
▼茶亭与直跑楼梯,Tea Pavilion and Straight-Run Staircase ©Wu Siming
▼临溪苗圃,Creekside nursery ©Wu Siming
北侧起居厅为两层通高空间,是家庭主要的生活起居空间。面向庭院的推拉门可完全打开,让室内外融为一体。人坐于厅内,可感知庭院四季景致的变化。
The major living room to the north is a double-height space serving as the family’s primary living quarters. Folding sliding doors facing the courtyard can be fully opened to merge indoor and outdoor spaces. Sitting inside, one can perceive the changing seasons in the courtyard.
▼起居厅,Major living room ©Wu Siming
流线设计区分主客路径,两者最终交汇于起居厅,使其成为介于私密与公共之间的过渡,兼顾家庭起居与邻里接待功能。据业主反映,住宅落成后,每天都有邻里的老人前来喝茶、周边孩童也常在此嬉戏,偶有陌生访客登门造访。面对城市化进程中“附近的消失”,设计尝试“让渡”出部分私域。意图是通过空间属性的模糊处理,在保持家庭生活私密性同时,重建一个边界清晰、却基于日常交往的“邻里客厅”。这是我们对潮汕“厝边文化”——那种生于地理邻近、成于持续往来的在地关系——所作的回应。
Circulation paths differentiate between the homeowners and guests, ultimately converging in the living area, making it a transitional space between private and public domains, accommodating both family life and neighborly hospitality. According to the homeowners, since its completion, elderly neighbors visit daily for tea, local children often play here, and occasional strangers stop by. In response to the “disappearance of proximity” in urbanization processes, the design attempts to actively “cede” part of the private domain. The intention is to blur spatial attributes, maintaining privacy for family life while reconstructing a clearly bounded yet daily interaction-based “social living room.” This is our response to the Chaoshan “Cuò culture” (neighborhood culture)—a localized relationship born of geographical proximity and nurtured through continuous interaction.
▼“邻里客厅”,”Social Living Room” ©Wu Siming
III.“上宅”——日常的仪式
“Upper House” – The Ritual of Daily Life
“上宅”为四层的垂直体量,首层布置公共起居与辅助功能,二至三层为居住空间,四层是坡屋顶下的阁楼。设计将日常性与仪式性在垂直方向上并置,试图唤起一种能被记忆与身体所感知的空间氛围——一种指向居所原型,关于“家宅”的意象。在外观层面,“上宅”外墙采用双层墙体砌筑,中间留设空腔。构造做法隔热防潮,以适应岭南地区炎热多雨的气候特征。表层选用水泥空心砖砌块及标准尺寸的青砖,兼顾在农村地区建房的经济性与可建造性。不同楼层之间,通过楼梯的错位、转折等不同方式连接。各居室之间开设洞口,创造空间的“多孔性”(Porosity),让私密与公共、不同楼层之间的生活场景之间产生视觉联系,营造出一种“生活在一起”的共居氛围。
The “Upper House” is a four-story vertical volume, with public living and auxiliary functions on the ground floor, living spaces on the second and third floors, and an attic under the pitched roof on the fourth floor. The design juxtaposes daily life and ritual vertically, attempting to evoke a spatial atmosphere perceptible to memory and the body—an archetypal imagery of “dwelling.”
In terms of appearance, the exterior wall adopts a double-layer construction with a cavity left in between. This structural approach ensures thermal insulation and moisture resistance, adapting to the hot and rainy climate characteristic of the Southern region. The surface layer utilizes cement hollow bricks and standard-sized grey bricks, balancing cost-effectiveness and constructability for rural construction.
Floors are connected through staggered and turning transitions, alleviating the monotony of continuous stair climbing. Openings between rooms create “porosity,” allowing for a moderate integration of private and public domains and different living scenarios, fostering a cohabitation atmosphere of “living together.”
▼多孔空间,Photos: Porous Spaces ©Wu Siming
二、三层居室通过北侧的外廊连接,南侧则设置生活阳台。其中三层阳台连通为连续的檐下空间,形成水平向的景观长卷,朝向外部的田野与溪流。
Bedrooms on the second and third floors are connected by a northern corridor, with living balconies on the south side. The third-floor balconies form a continuous eaves space, creating a horizontal panoramic view toward the fields and creek outside.
▼三居室单元,Third-floor Bedroom ©Wu Siming
▼阳台与檐下空间 ,Photo: Balcony and Eaves Space ©Wu Siming
坡屋顶是建筑最具识别性的部分,其选择兼具形式与功能考量:既与周边老村风貌呼应,亦在满足四层体量要求同时,通过屋面坡度削减建筑体量,缓解高度对街道产生的压迫感。屋顶内部由密肋结构支撑起三角形阁楼,天窗引入漫射光,经斜面反射,洒入下方空间。该空间暂未设定具体功能,而是以“留白”方式为家庭未来发展预留可能。特殊的形态,也赋予了空间某种超越日常的“仪式感”。
▼场地轴剖图,Site Axonometric Section ©Atelier ALL
The pitched roof serves both formal and functional considerations: it echoes the surrounding old village while meeting the four-story volume requirement and mitigating the oppressive sense of height through its slope. Inside the roof, a dense rib structure supports a triangular attic. Skylights introduce diffuse light, reflected off sloped surfaces into the spaces below. This area is intentionally left without a specific function, serving as a “blank canvas” for the family’s future growth. Its unique form also imparts a sense of “ritual” that transcends the everyday.
▼顶楼空间,Top-floor Space ©Wu Siming
▼楼梯,Stairs©Wu Siming
IV. 时间与风土
Time and Terroir
溪口厝在疫情期间建成,迄今使用已有一段时间。对于刘叔一家及其“厝边”乡邻而言,除草木渐长、建筑有些老旧痕迹之外,这里似乎并未发生根本变化,生活日常仍平缓延续。“下院”与“上宅”所构建的空间架构,回应的仍是业主最初的愿望:一个既能容纳家族团聚,又能向邻里适度开放的场所。在传统与当代之间,设计试图寻找到一种平衡——不在于形式的新旧,而在于通过空间结构的组织,调和家庭与社区、私密与公共、传统与当代的关系。我们期待时间和使用在此慢慢沉淀,让房子在潮汕风土中扎根。
▼施工照片,Construction ©Atelier ALL
Xikoucuò was completed during the pandemic and has been in use for several years. For Uncle Liu’s family and their neighbors, aside from growing vegetation and some aging traces on the building, little fundamental change seems to have occurred—daily life continues gently. The spatial framework constructed by the “Lower Courtyard” and “Upper House” responds to the elderly couple’s original wish: a place that accommodates family gatherings while remaining open to the neighborhood. Between tradition and contemporaneity, the design seeks a balance—not in the novelty or antiquity of form, but in organizing spatial structures to mediate relationships between family and community, private and public, traditional and contemporary. We anticipate time and use will settle here, allowing the architecture to take root in the Chaoshan’s terroir.
▼鸟瞰图,Aerial View ©Wu Siming
注释|Notes
1.此处借用鲁道夫斯基乡间住宅“有院子的房子”的描述。
2.此处引用项飙“附近的消失”的观点。
3.加斯东·巴什拉.《空间的诗学》. 张逸婧译,上海译文出版社,2017。
1.The description of the “house with courtyard” is borrowed from Bernard Rudofsky’s depiction.
2.This references Anthropological Sociologist Xiang Biao’s concept of the “disappearance of proximity.”
3.Gaston Bachelard, The Poetics of Space.
▼首层平面,Level 1 Plan ©Atelier ALL
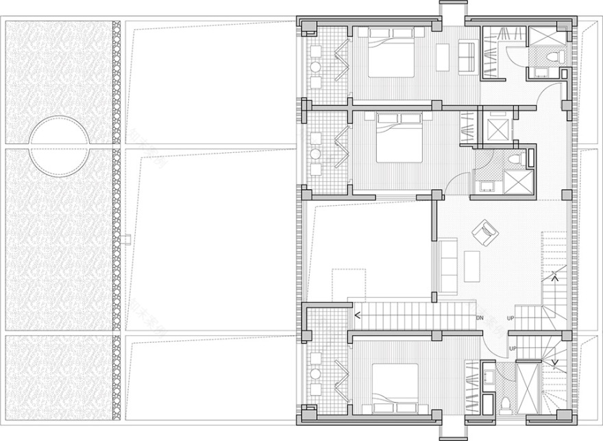
▼二层平面,Level 2 Plan ©Atelier ALL
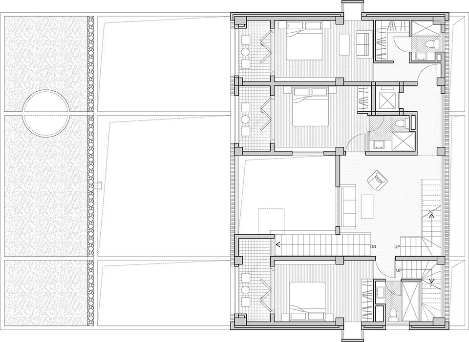
▼三层平面,Level 3 Plan ©Atelier ALL
▼东立面,East Elevation ©Atelier ALL
项目信息
项目名称:溪口厝
项目类型:农村自建房
项目地点:广东潮州
设计单位:全体建筑
主创建筑师:刘琮晓,刘潇
设计团队完整名单:刘琮晓,刘潇,黄东华,杜冠之,翁喆锐,唐子豪,李杨阳,薛泳,邓洁雯,邓健弘
业主:刘叔张阿姨一家
建成状态:建成
设计时间(起迄年月):2018(设计)- 2022(建成)
建筑面积(平方米):约686.44㎡
Information
Project:Xikoucuò
Project Type: Private House
Location:Teochow (Chaozhou), Guangdong Province, China
Design Firm:Atelier ALL
Principal Architects:Liu Congxiao, Liu Xiao
Full Design Team List:Liu Congxiao, Liu Xiao, Huang Donghua, Du Guanzhi, Weng Zherui, Tang Zihao, Li Yangyang, Xue Yong, Deng Jiewen, Deng Jianhong
客服
消息
收藏
下载
最近








































