查看完整案例

收藏

下载
一处好的生活空间,是当你踏入其中,便能听见每一根木头、每一种材质、每一个色调的呼吸的声音。它们静听居者的奇妙语言,包容居者的起伏情绪,陪伴居者在岁月中沉淀成长。
——小编手记
沉稳,静谧,缓慢,简单。这四个词在熊翔飞的作品里似乎扎了根,以至于根茎上冒出的花果亦是柔软清香的。材质、色彩、形态,与光影的自然对话,让人从静谧中体察到空间的流动,以及生命的各种音调;都市匆忙喧闹又划分着一个“我”,走入【嘉陵江天】,“我”回归且从都市里抽离成为一个自由完整的人。在这里,时间仿佛在减速,心灵深处也趋向沉默的此刻。
新作里,熊翔飞依然用中性基调去为时间和人留白,在自然与木头的肌理中,只需要几笔简单的转折变幻,一个松弛舒适、向内寻觅真实的家便有了框架。“真正的宁静,在于心。快节奏带来的疲惫和沉闷是外在不断的进度条,我们希望居者回到家中可以亲近宁静;以本质元素为主题重构空间,谱写自然淳朴与温润柔和的生命之歌。”
【家,应是剥离一切冗余后的沉稳秩序,让光线在木质的温润中,静谧地透出生活的温度。】
01
流动融合,自然序曲
从玄关进入,深色木饰面及左侧的镜子,在延伸视觉的同时为空间增添深邃之感,驱散了拥挤与昏暗,使步入家门的第一瞬间便感受到静谧、通透的氛围。胡桃木作为该空间的“隐形骨架”,顺着玄关连接西厨,再过渡到客餐厅——竖向线条强化着空间纵深感,亦传递着沉稳、温润的气质。
“设计是沉默的艺术,它在你使用时才开口说话。”(原研哉)
玄关与西厨自成一体,柔光乳胶漆与实木护墙板融合,温暖色调与细腻纹理相得益彰,利用材料属性将功能布局区分,满足了居者对新家的一切美好想象,提升居家幸福感。
开放式布局及岛台过渡串联起客餐厅,通过大面积落地玻璃门,引入自然光,模糊室内外界限,增强空间通透感。加上部分白色的运用,也消解掉视觉的压迫;趣味吊灯、墙柱及沙发围合的形态变化,激活着空间的灵动感。
光落入,围绕着餐桌愉快嬉戏。人们坐在雪绒白餐椅上,品尝食物,或聊天或发呆。身边是不多但足够珍贵的影像、画作和收藏物,与植物一起吸收着光的能量,跳起了舞蹈。
米白、浅灰、原木,弥漫着宁静的高级感。客厅以电视墙为视觉中心,沙发区呈弧形围合,搭配异形茶几与圆形地毯,与左侧的圆形壁炉形成呼应,动线与视线都在自然流转。深棕色单人沙发增加了慵懒感,又展开了艺术张力,勾勒着此处的丰富层次。
02
静谧疗愈的“私域结界”
去繁就简,回归本真。在套房的设置中,设计师将卧室、书房、衣帽间、卫浴间纳入结构逻辑,实现“起居-工作学习-收纳-洗漱”的私密而自在的生活闭环。整个空间延续着木作和留白,保持整体连贯性;以墙柱和书柜墙作为隔断,适当地区分功能又保持着耐人寻味的特质——材质色彩碰撞出生趣,夜晚的光编织出妙趣,在极简自然的情绪包裹里去寻得“静的内核”。
睡眠区,浅淡的配色足以说明空间的安静、纯粹、随和,让居住者能尽享属于自己的时光。以浅米灰墙板与白色衣柜构建柔和基底,深胡桃木地板延伸至床区,暖棕色绒布床头与浅灰床品是柔软亲肤的触感;以弧形收边的墙面,一束小吊灯洒下暖光,平衡着多种质感的糅合,让休憩空间兼具松弛感与实用性。
卫浴空间延续米白和木作,圆形黑框镜与黑色水龙头形成视觉焦点,台面上的花艺摆件为空间注入生机。
木的温润、白的素净、光的柔和,剥离冗余装饰,熊翔飞继续用自然克制的设计语言塑造出一个“能让人慢下来”的家,每个角落都藏着“少即是多”的生活哲学,让居者在现代节奏中,重拾与自然、与自我相处的宁静。
项目名称 | 嘉陵江天
项目地点 | 重庆
设计机构 | 重庆威尼设计
主案设计 | 熊翔飞
参与设计 | 朱婷婷
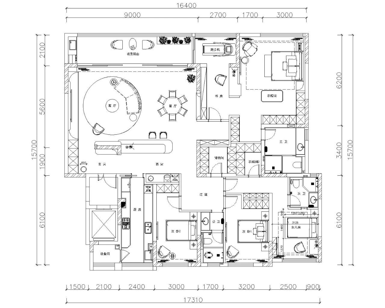
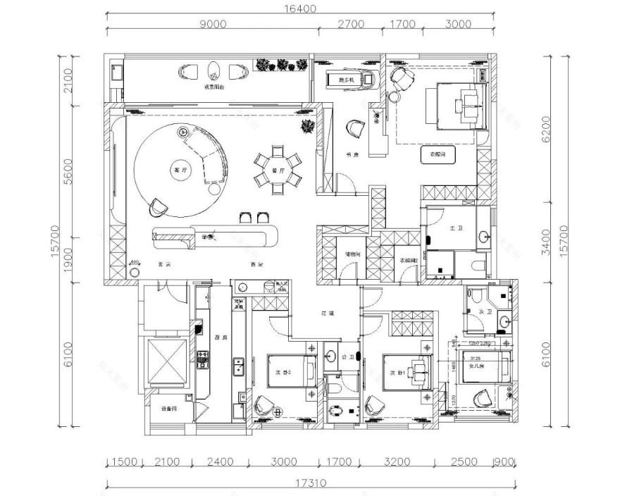
项目面积 | 220m²
项目摄影 | 潘宇飞
完工时间 | 2025.12
主要材料 | 汉斯格雅、杜拉维特、COLOM、百森卡莎
熊翔飞
重庆威尼设计 创始人/设计总监
客服
消息
收藏
下载
最近























