查看完整案例

收藏

下载
九号别墅位于越南保禄市,是一栋为三代同堂家庭设计的住宅,同时毗邻家族经营的商业空间。
Nine Villa is a project located in Bao Loc City, Vietnam. The house serves a family of three generations living together and the house is next to the family business.
▼街景,street views© Minq Bui
住宅共四层,并设有一层地下室,包含5间卧室及多种不同功能空间。家庭成员包括祖父母、年轻的兄弟姐妹,以及姐姐一家——丈夫和两个孩子。
The house is 4 floors high and has a basement, has 5 bedrooms and many different function rooms. Family members include grandparents, younger siblings, and sister’s family, husband and 2 children.
▼入口,entrance of the villa© Minq Bui
▼入口大门,entrance gate© Minq Bui
▼底层休闲空间,relax zone of the ground floor© Minq Bui
▼天井空间为室内引入光线,the patio skylight introduce light into the villa© Minq Bui
▼玄关,entrance area© Minq Bui
对于这样一栋面积较大的多层住宅来说,在不同楼层之间或同一层的不同空间之间移动往往距离较长、过程繁琐,也容易变得单调乏味,这种状态会逐渐削弱家庭成员之间的联系。为了解决这一问题,设计在住宅中布置了多个不同尺寸、不同位置的天窗,使自然光深入室内,同时形成空气对流,并结合室内盆栽绿植营造更为舒适的环境。
With a multi-storey house with a large area, moving in the house from one floor to another or moving through spatial areas on the same floor will become longer, more difficult and easily boring. That will gradually lose the bond between family members. To overcome this, we created many skylights of different sizes, in different positions to bring light into the house and create air convection. Combined with potted green plants.
▼生活空间概览,overall of the main living space© Minq Bui
▼餐厅,the dining area© Minq Bui
▼由餐厅看厨房,viewing the kitchen from the dining area© Minq Bui
为了进一步消除楼层之间的距离感,楼梯平台被设计为带有自然光与绿植的娱乐与休憩空间,使上下楼的过程变得轻松而有趣,也鼓励家人更多地使用楼梯。
Especially to eliminate the feeling of distance between floors, we designed the landing of the stairs into an entertainment area with light and greenery to create fun and excitement when moving up the stairs. Through which people take the stairs more often.
▼楼梯平台被设计为带有自然光与绿植的娱乐与休憩空间,
the landing of the stairs into an entertainment area with light © Minq Bui
▼由楼梯平台看生活空间,viewing the living space from the landing© Minq Bui
▼由二层看楼梯平台,viewing the landing from upper floor© Minq Bui
▼楼梯平台读书角,the landing serves as library© Minq Bui
▼通高空间,the double-height space© Minq Bui
▼楼梯,staircase© Minq Bui
▼突出的室内阳台,the interior balconies© Minq Bui
地下室也是进入住宅后的第一处空间,如果环境单调,人们往往会希望尽快离开。因此设计通过弧形图案铺装地面,并引入带有绿植的天窗,将自然光带入地下空间,同时把楼梯平台转化为家庭成员活动与玩耍的场所,使回家的第一刻就拥有愉悦的体验。
The basement is also the first place you enter the house so you don’t get bored and need to get out of there immediately. We created a more enjoyable experience by decorating the floors with curved patterns and green skylights that brought natural light into the basement, while also turning the stair landing into a play area. Activities of family members. What a beautiful sight to welcome you home.
▼地下室,the basement© Minq Bui
▼地下室看向休闲区,the basement floor with windows and views© Minq Bui
设计还利用自家工厂仓库的屋顶设置了水疗区与花园,创造出多个可眺望丘陵景观的放松空间。不同形式的休憩空间为家人缓解日常压力,让每个人回到家时都能感受到这里是属于自己的地方。
We took advantage of the roof of our family’s factory warehouse to create a spa area and garden, creating many relaxing spaces with views of the hills. Differently arranged relaxation spaces relieve stress for everyone when returning home. And everyone feels like this is a home just for them.
▼水疗区与花园,thespa area and garden© Minq Bui
▼水疗区,the space area© Minq Bui
▼由圆窗看户外区域,viewing the garden from the round window© Minq Bui
▼泳池,the pool© Minq Bui
在住宅中,楼梯的每一个平台原本只是上下楼时短暂停留的过渡空间,而现在则被设计为休息与娱乐的节点,成为连接各个楼层、也连接家庭成员的空间。
Each stop of the stairs is a resting point when we move from one floor to another and the middle point connects the floors. And now it is designed as a place for entertainment and relaxation, connecting everyone in the family.
▼卧室,the bedroom© Minq Bui
▼浴室,the bathroom© Minq Bui
▼浴室细部,details of the bathroom© Minq Bui
▼儿童房,the children’s room© Minq Bui
天窗与由楼梯、阳台、墙面和天花形成的曲线相互结合,为住宅创造了强烈的空间吸引力与趣味性。它们引导居住者在不同楼层之间不自觉地向上或向下观看,在无形中建立起家庭成员之间的视觉联系与情感连接。
The skylight combined with the curves created from the stairs, balcony, walls and ceiling create great attraction and interest for the house. It helps everyone in the house tend to look up from one floor to another, creating an invisible connection between family members.
▼传统房间,the traditional room© Minq Bui
▼露台,the terrace area© Minq Bui
▼夜景,night views© Minq Bui
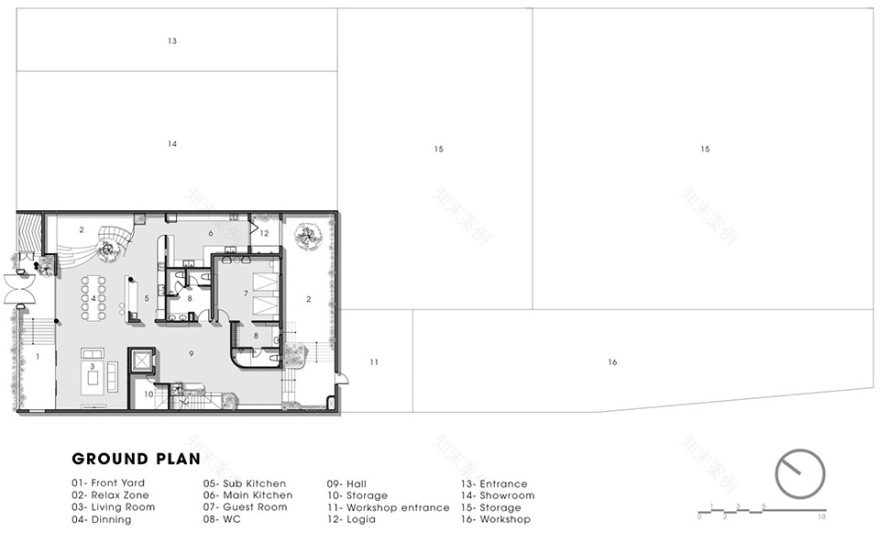
▼底层平面图,the ground floor plan© Story Architecture
▼二层平面图,first floor plan© Story Architecture
▼地下层平面图,basement floor plan© Story Architecture
▼底层平面图,ground floor plan© Story Architecture
▼二层平面图,first floor plan© Story Architecture
▼三层平面图,second floor plan© Story Architecture
▼四层平面图,third floor plan© Story Architecture
▼立面图,elevations© Story Architecture
▼剖面图,sections© Story Architecture
Project name: Nine Villa
Architect’s Firm: Story Architecture
Project location: Bao Loc City, Viet Nam
Completion Year: 2023
Gross Built Area (square meters or square foot): 408m2
Other participants : HH Architects
Photo credits: Minq Bui
客服
消息
收藏
下载
最近































































