查看完整案例

收藏

下载
项目名称:瓦伦西亚Cano住宅
位置:西班牙
设计单位:Fran Silvestre Arquitectos
图片数量:41张
该项目的构思遵循功能逻辑,并沿阿利坎特(Alicante)的一条主干道布局。住宅划分为三个清晰的区域:夜间区域、日间区域,以及用于训练和体育活动的空间。
▼鸟瞰,bird’s eye view © Jesús Orrico
▼半鸟瞰,half bird’s eye view © Jesús Orrico
▼外观概览,overall of the house © Jesús Orrico
▼顶视图,top view © Jesús Orrico
建筑沿地块的西侧布置。这样的布局拓展了与客厅相关的室外空间,加强了与花园和泳池的联系。同时,这种布置保留了现有的大型树木,并辅以新植树木,以期在未来形成更为密集的花园。主入口位于东侧一条较为宁静的街道上,从而增强了住宅的私密性。
▼草图,sketches © FRAN SILVESTRE ARQUITECTOS
▼花园一侧视角,view from the garden © Jesús Orrico
▼露台,terrace © Jesús Orrico
▼近景,closer views © Jesús Orrico
▼简洁的建筑体量,simple architectural form © Jesús Orrico
在日间区域与体育区域之间,安排了一个近乎南北向的过渡空间,既起到连接作用,也促进了交叉通风。设计的基本前提之一是将夜间区域朝东布置,确保与晨光的直接联系。
▼泳池,pool © Jesús Orrico
▼泳池近景,closer view of the pool © Jesús Orrico
主空间追求更高的净高。体量通过两个较低的体块构成,中间嵌入一个较大的主体体块。该体块对应客厅区域,略微抬升,强调其存在感,并赋予建筑整体独特的身份感;其深邃的边缘进一步强化了这一特性,使体量仿佛悬浮在其所覆盖的空间之上。
▼模糊的室内外界限,blurred boundaries © Jesús Orrico
▼近景,closer views © Jesús Orrico
▼细部,details © Jesús Orrico
该体块的厚度允许整合深度结构体系,使主空间可以在无中间支撑的情况下跨越整个宽度。因此,日间区域被设计为一个连续的环境,与外部铺装和水面直接相连,模糊了内外界限,强化了住宅的开放特性。
▼细部,details © Jesús Orrico
室内材料采用连续而温暖的色彩体系。一些垂直表面和家具元素选用橡木,赋予整体纹理和空间层次感。这一设计决定,加上照明的色温选择,为住宅赋予了理想的居家氛围。
▼室内材料采用连续而温暖的色彩体系,
the materials are resolved through a continuous and warm chromatic palette © Jesús Orrico
▼开敞的生活空间,open living space © Jesús Orrico
▼餐厅,dining area © Jesús Orrico
▼厨房餐厅,kitchen-dining © Jesús Orrico
▼由吧台看餐厅与厨房,viewing the kitchen-dining from the counter © Jesús Orrico
▼室内外界限,exterior and interior boundary © Jesús Orrico
▼视线通廊,slight-gallery © Jesús Orrico
▼走廊,hallway © Jesús Orrico
▼卧室,bedroom © Jesús Orrico
最终,这是一座从场地与功能中自然生长出的建筑——一个看似简单、却在现实中复杂实现的设计。
Ultimately, this is an architecture that emerges from the place and the program, a matter as simple as it is complex to bring into reality.
▼夜景,night views © Jesús Orrico
▼夜景细部,detailed night views © Jesús Orrico
▼模型,model © FRAN SILVESTRE ARQUITECTOS
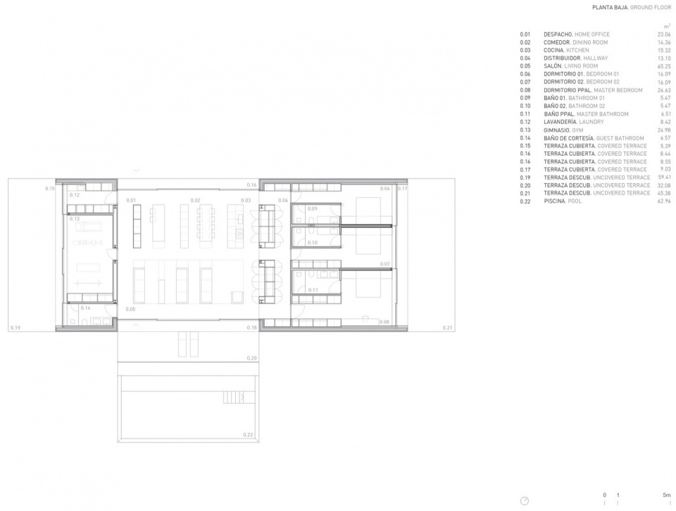
▼平面图,floor plan © FRAN SILVESTRE ARQUITECTOS
▼立面图,elevation © FRAN SILVESTRE ARQUITECTOS
▼剖面图,sections © FRAN SILVESTRE ARQUITECTOS
摄影: Jesús Orrico
客服
消息
收藏
下载
最近











































