查看完整案例

收藏

下载

翻译
Architects:Thought Parallels
Area:3000ft²
Year:2026
Photographs:Syam Sreesylam
Manufacturers:Gessi,Mercan,OED gallery
Lead Architects:Ar. Nikhil Mohan
Category:Houses
Design Team:Ar. Nikhil Mohan, Shabna Nikhil
Engineering & Consulting > Structural:Simon Peter engineering consultants
Engineering & Consulting > Mep:Techton consultants
Engineering & Consulting > Electrical:Spoon lighting
City:Kerala
Country:India
Text description provided by the architects. Madhu and Mandy, a couple based in Dallas, USA, approached thought parallels to design a residence adjacent to their ancestral home in India. They sought a contemporary architectural interpretation of the region's vernacular style. Both of them, being aesthetically astute and well-traveled, ideated a refined vision of what a home should embody. They broke a stereotype of usually cliched project requirements.
Madhu named the house 'Ananda', a word derived from Sanskrit which means eternal bliss or a state of ultimate happiness and fulfilment. The architecture tried to resonate ananda in its own terms with a space which can invoke a sense of physical and emotional well-being. A place of rest, tranquility, and togetherness with family.
Situated in a dense urban fabric and accessed via a narrow thoroughfare, the site offered limited opportunities for a conventional elevation. To address the lack of a clear vantage point, we shifted the visual focus upward, driving the eye towards the roof. Consequently, the expansive overhanging roof serves as the primary design anchor, creating a riveting presence that is functional as well as aesthetic.
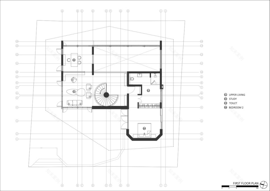
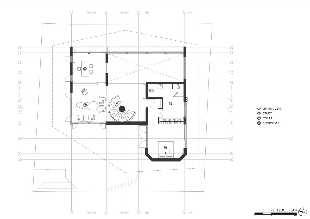
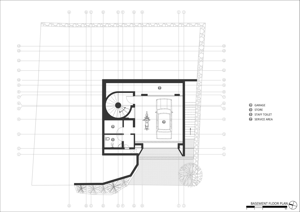
Integration of the existing topography made it possible to structure the different spaces on each level due to the sloping nature of the plot. Vehicular entry is restricted to the lowest level. The pedestrian entry is on the higher side of the plot.
All three floors are connected by a concrete spiral stair, which delineates the plan in a particular way. The north east-facing living and dining areas with double-height space on expansive glazed openings overlook dense landscape beyond. Devoid of a false ceiling, the main roof spans the whole house with large protruding overhangs acting as a protective element for the tropical climate of the region. The composite roof structure takes care of thermal and waterproofing issues, apart from achieving a very lightweight structural solution.
The coconut wood used for roofing becomes a sustainable choice of material due to its abundance locally and to the fact that only senile palms are cut for procuring wood. Its a biologically viable replacement for the more impervious hardwood choices. The coconut palm is a woody permanent monocotyledon and doesn't fall in the ambit of forest trees, but is an agricultural species, which excludes it from the Forestry Stewardship Council (FSC). Lime plaster walls, country bricks, random rubble masonry, exposed concrete, natural stones, and local flora all constitute a diverse material palette. The local craftsmanship in carpentry and construction was used well.
Project gallery
客服
消息
收藏
下载
最近





























