查看完整案例

收藏

下载

翻译
Architects:BOS Arquitectes
Area:745m²
Year:2025
Photographs:Del Río Baní
Lead Architects:Miquel Barceló Ordinàs, Margalida Seguí Tugores
Category:Kindergarten
Technical Architect:Antoni Arquè Garrofé
Engineer:Javier Vela Rodríguez
Promoter:Ajuntament de Muro
Builder:Obras y Promociones Comas SA
Structure Builder:Ejestru SL
Roof Builder:Madergia SL
Country:Spain
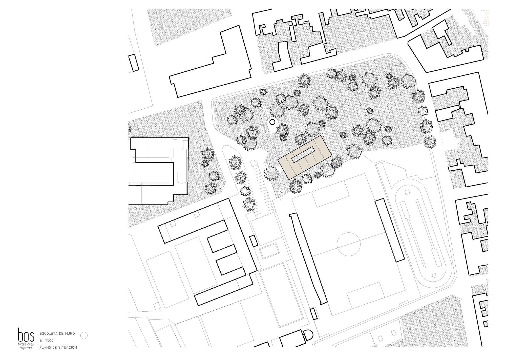
Text description provided by the architects. The Muro nursery school, in Mallorca, is located on elevated ground within a transitional area between the urban fabric and agricultural fields. In its immediate surroundings, landmarks of the landscape and collective life can be identified, such as an old marés stone windmill, the stands of the football field, and the built urban skyline. From its position, the site offers wide views of the area and its main references, including the Church of Sant Joan Baptista and the Convent of Santa Anna.
Within this context, the building is conceived as a single-storey structure that neither seeks prominence nor aims to dominate its surroundings. Its roof, visible from various points in the landscape, is designed as a sequence of low-rise vaults that trace a continuous, undulating silhouette along the horizon. Its enveloping form is perceptible yet restrained, conceived to blend into the landscape while protecting the interior space.
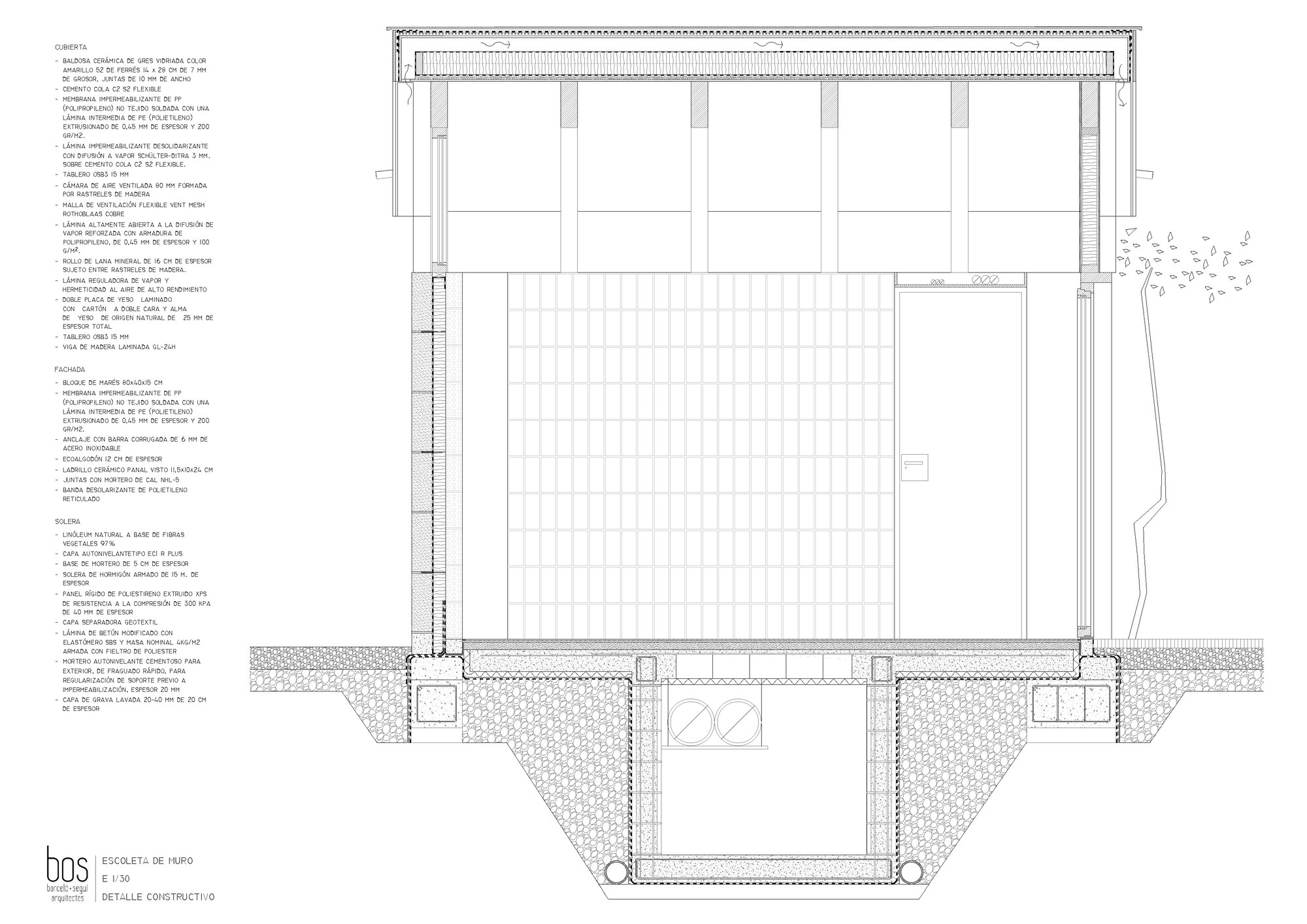
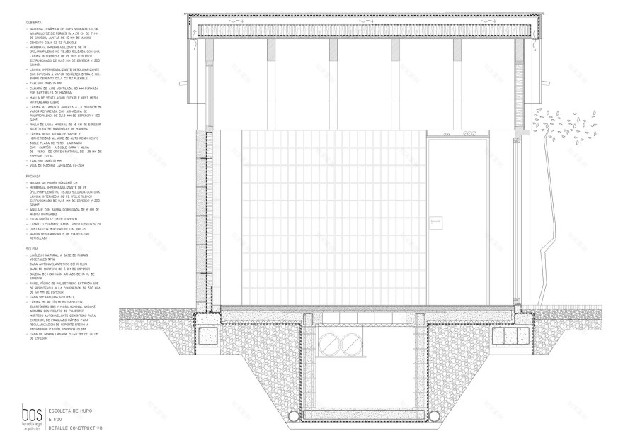
The roof is finished with glazed ceramic tiles in a yellow-ochre tone, deliberately sober and in harmony with the chromatic palette of the surroundings, closely linked to the use of sand-coloured marés stone and yellow clay roof tiles.
The compact volume, conceived through a passive design strategy to reduce the building's energy demand, organizes the overall layout. On the access side, it defines a public square; on the other sides, it encloses the more private areas that make up the nursery school spaces: the south-facing classroom patios, the shared patio to the east, and the service strip located on the northern side.
A central courtyard promotes cross ventilation and the entry of natural light. This void creates a new educational space that, while outdoors, is protected from the wind. Its visibility from all interior spaces facilitates supervision and control of the children. Solar control is optimized through the classroom porch and the incorporation of vegetation within the courtyard. Cross ventilation is planned both in plan and section, enhanced by large openings on the south-facing façades and smaller, higher openings on the northern façade.
The construction adopts a sequence of vaults that evoke the primal sense of shelter through their concave form. The structural system is organized through the repetition, in each bay, of a curved profile made of laminated timber beams. The building is modulated into six bays, each seven meters wide. These beams naturally resolve the slope of the roof. The ceramic roof highlights the path of rainwater. Just as the façade guides the entry of light, the roof shapes the itinerary of water, so that rain ceases to be a mere residue.
This spatial configuration gives rise to a warm and sheltered interior, generating a welcoming atmosphere for early childhood—a place that embraces, protects, and conveys calm.
The building is organized into three longitudinal strips. A central courtyard acts as the heart of the building, arranging the rooms around a continuous circulation. This space not only hosts children but also educates them. Constructive honesty, based on exposing structures, textures, and natural materials—without superfluous finishes or additive layers—turns the space into a didactic support. Matter becomes legible and tangible: what children see and touch explains how the building is constructed.
The impact on natural resources is reduced through the use of materials with a low environmental footprint, both during construction and throughout the building's life cycle, prioritizing efficient construction systems, materials with controlled life cycles, and passive strategies.
The architecture is based on four principles: a climatic response tailored to the context, high energy efficiency through passive strategies, the use of natural, local, low-impact materials, and efficient technology that supports the building without imposing itself.
The result is a kind and welcoming building, where form, construction, and use combine naturally, giving rise to a comprehensible and habitable space that seeks to integrate respectfully into the landscape.
Project gallery
客服
消息
收藏
下载
最近


































