查看完整案例

收藏

下载
- - 放空自己 感知生活 本 空 B K O N S
本项目:杭州拱墅 杭樾润府 精装修改造项目
设计面积:100㎡
居住者:屋主为独居青年,与两只猫共同生活
实景视频 —
原始户型图 —
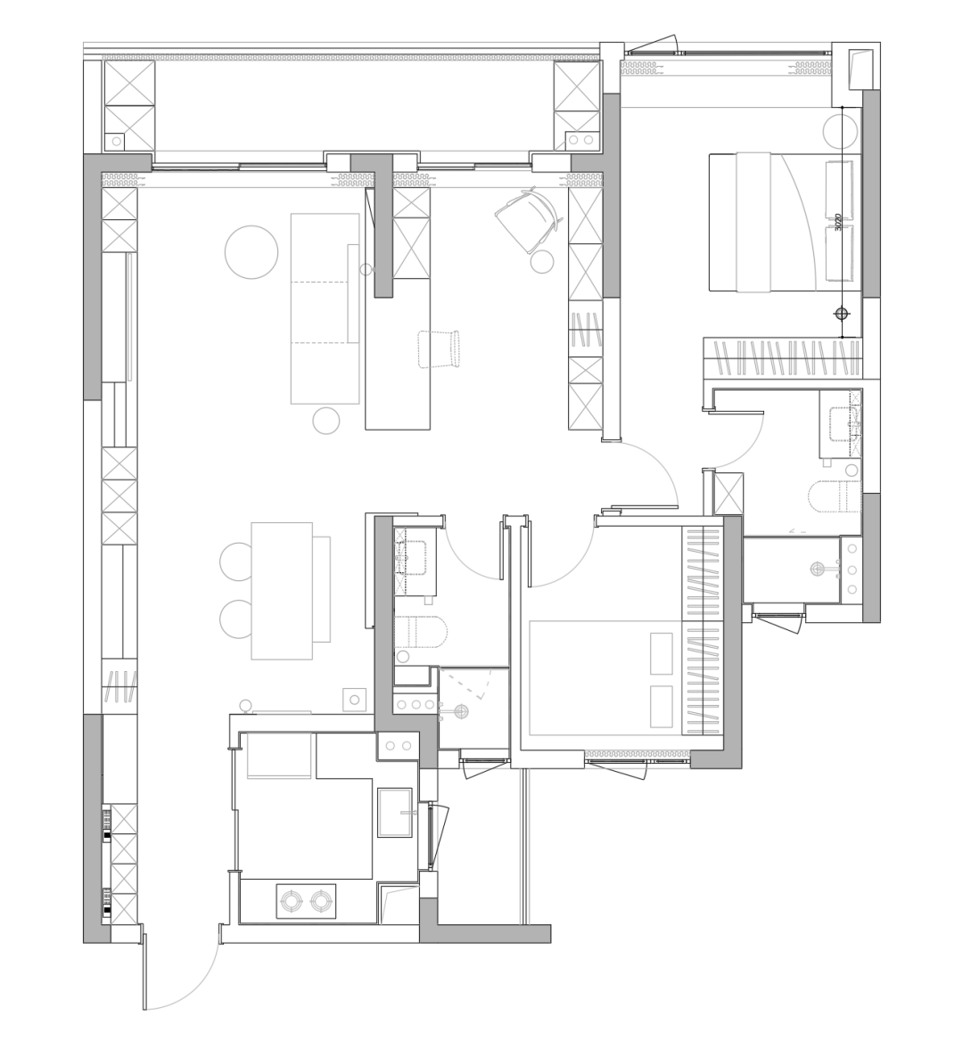
设计后平面图 —
让面对精装房的既定条件,我们选择不做过度的拆改,而是以“加法”介入——仅拆除一间次卧纳入客厅,形成一个集收藏展示、轻办公和猫屋于一体的开放式书房。其他区域则通过收纳系统的整合与材质的统一,在保留原有基底的前提下,重新梳理空间秩序,让这个家从标准化的交付转变为真正契合屋主生活的居所。
书房—
这里是屋主个人爱好的集中呈现。
玻璃展示柜内嵌灯光,层板高度根据手办尺寸进行差异化设置,每一件藏品都有了属于自己的位置。
两侧的高柜以洞洞板收纳雪板,下方抽屉则用于储物,藏露之间各得其所。
客厅 —
沙发背后是打通后的次卧边界,一张悬浮书桌置入其间,成为客厅与书房的过渡与纽带。无法拆除的承重墙以防水漆处理,两盏玻璃壁灯点缀,墙面材质与光影交织,成为空间中的视觉焦点。木饰面从沙发背景延伸至过道与餐厅,与电视柜和轨道灯遥相呼应,将原本零散的空间串联成一个和谐的整体。
餐厅 —
餐边柜选用不锈钢层板与仿水泥漆背景,材质的冷冽感与温润的木作形成对比,界定出专属的餐饮角落。原有的灯具被轨道灯取代,贯穿客餐厅,强化空间的连续性。
玄关 —
收纳体系的设定,没有采用统一的模块化处理,而是根据屋主物品的实际尺寸和使用习惯逐一确认。从玄关到书房,从展示柜中的手办到日常收纳的杂物,每一处柜体的分隔、每一格层板的间距,都经过丈量。让物品各归其位,空间自然呈现出一种秩序感。所有的改动,最终都回归到一个出发点:为生活本身而做。
拆改空间图 —
拍摄花絮图 —
About
Design Company丨设计机构:本空设计工作室
Main case designer丨主案设计:拽拽
Executive designer丨撰稿:本空君
本空设计事务所 本 空 B K O N S
年度最佳实景作品展 2026
2025
2024
2023
2022
2021
客服
消息
收藏
下载
最近















































