查看完整案例

收藏

下载

翻译
Architects:amass
Area:410m²
Year:2024
Photographs:Xinxin Guo
Manufacturers:NL 能亮现代手工砖
Category:Restaurant & Bar Interiors
Design Team:Ai LInzi, Fu Lei, Tian Jie
City:Chengdu
Country:China
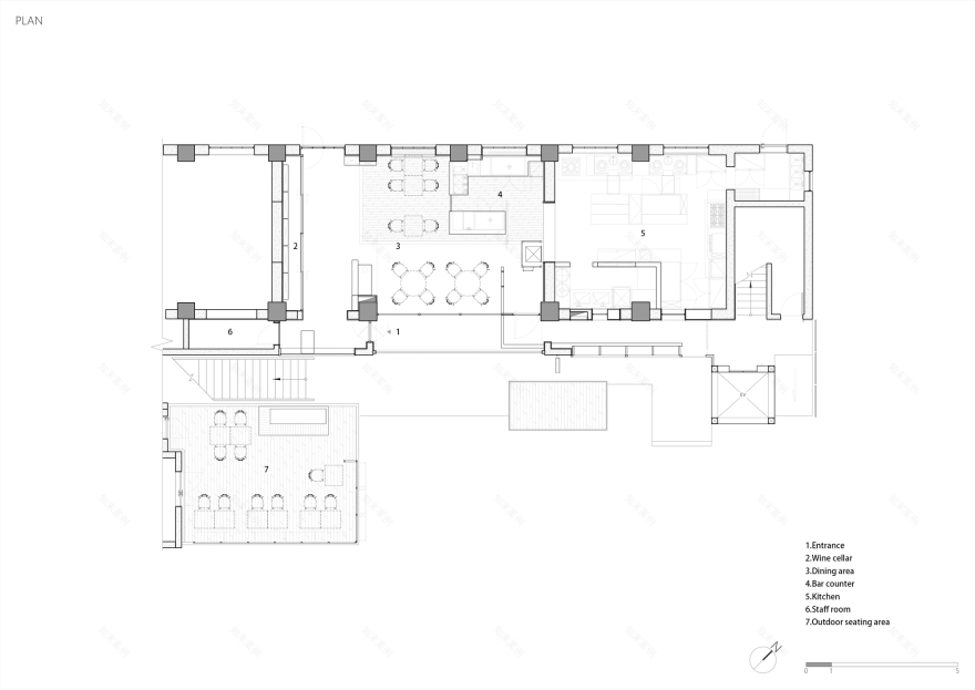
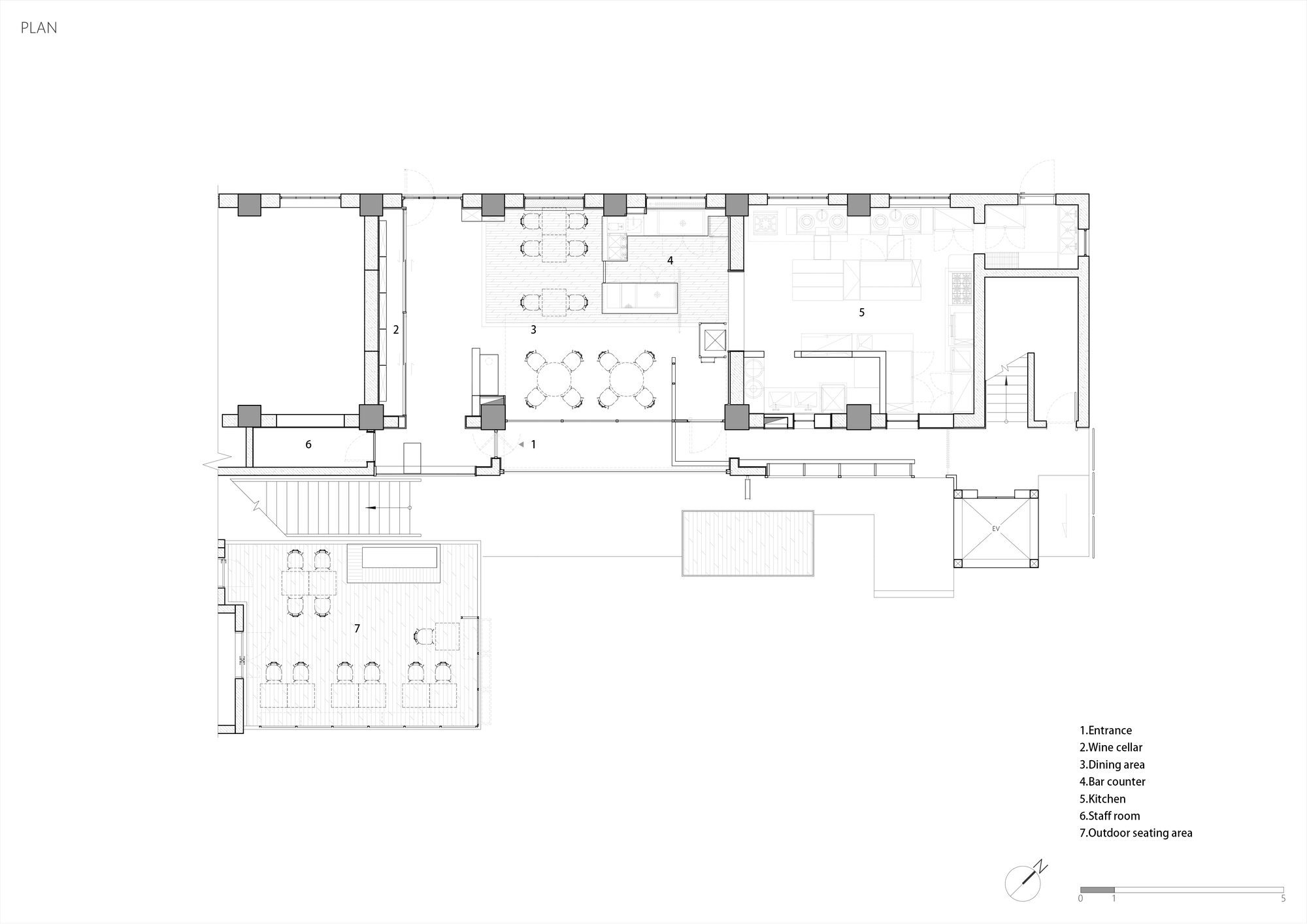
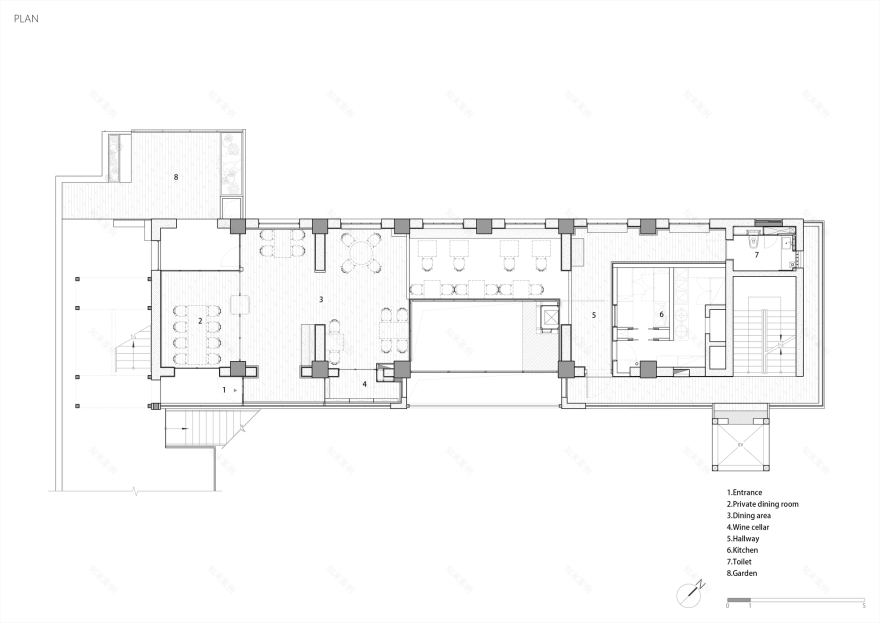
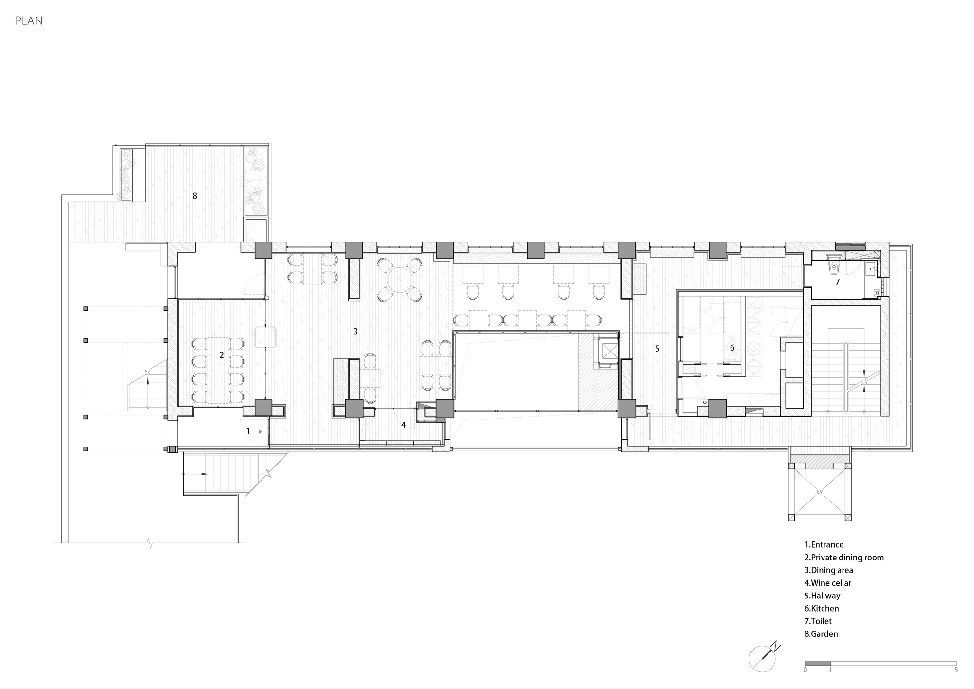
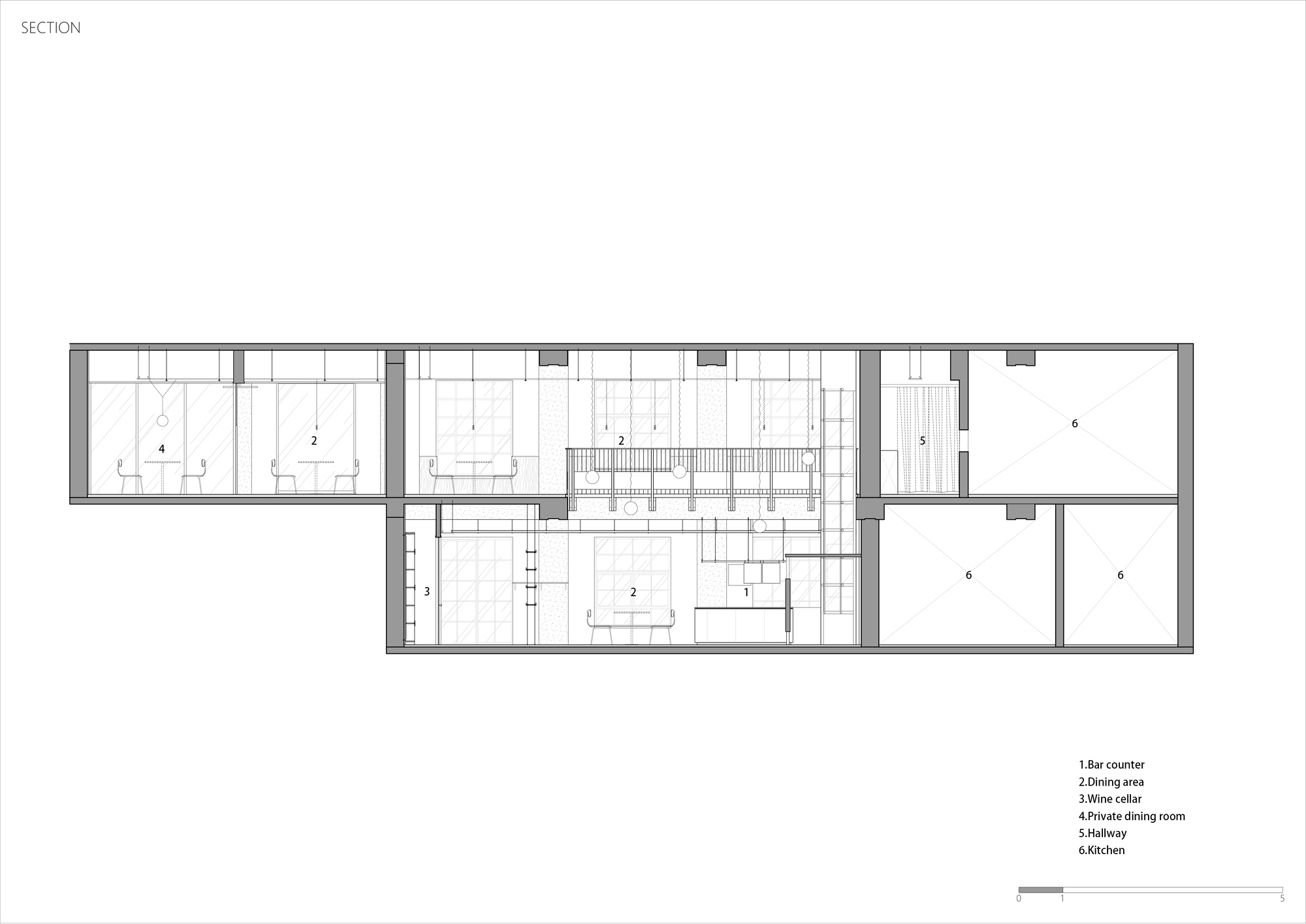
Text description provided by the architects. Located within the renovated commercial complex Temple Lane in Chengdu, Spring Patio is a Yunnan restaurant and bar designed by amass. The project explores how new spatial elements can grow lightly beneath the preserved structural framework of an existing building. The design strategy focuses on retaining and revealing the original structure. Exposed brick, concrete and structural elements remain visible, while the interior intervention is conceived as a light layer—almost like a sketch drawn over the existing architecture. Contemporary functions are inserted with restraint, and readily available industrial materials are widely used to establish a dialogue between new and existing elements.
The restaurant façade is recessed to create a double-layered system, with automated rolling shutters on the outer layer and floor-to-ceiling glazing inside. This arrangement maximizes daylight while strengthening visual connections between the interior and the street.
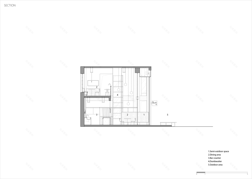
Due to spatial constraints, a service corridor extends beyond the façade line. Rather than concealing it, the corridor is incorporated into the façade design and given a dual role: one side offers pedestrians a small resting and waiting space, while the other maintains efficient back-of-house circulation. Inside, the removal of interior partitions reveals the building's structural skeleton. Mechanical and electrical systems remain exposed and are organized through cable trays, forming a rough yet ordered spatial expression.
Wood flooring alternates with cement-based self-leveling terrazzo to define spatial zones, while metal-glazed handmade tiles mark transitions between materials. Wine displays reinterpret simple storage cabinets and suspended cable trays to create floating shelves.
An exposed dumbwaiter connects the two floors, with its cabin painted as the only accent color in the space. At night, spherical pendant lights and softly illuminated wine cellars create a warm atmosphere that reflects Spring Patio's identity as a relaxed Yunnan dining and wine venue.
Project gallery
客服
消息
收藏
下载
最近



































