查看完整案例

收藏

下载
这是一场专业与专业的对话,行家与行家的合作。
故事的开头:甲方L先生,做了一辈子的装修工程,现退休又被返聘,继续负责精装房项目施工管理。甲方L女士即L先生的女儿,在成都一家知名建筑设计院工作,项目任务繁重。L先生工作在沿海省份,成都的L女士工作没日没夜,二人均无暇兼顾装修的繁琐与细节。在经过一番考察后,选择了有木设计来承接项目的设计与施工,并负责协调各方。
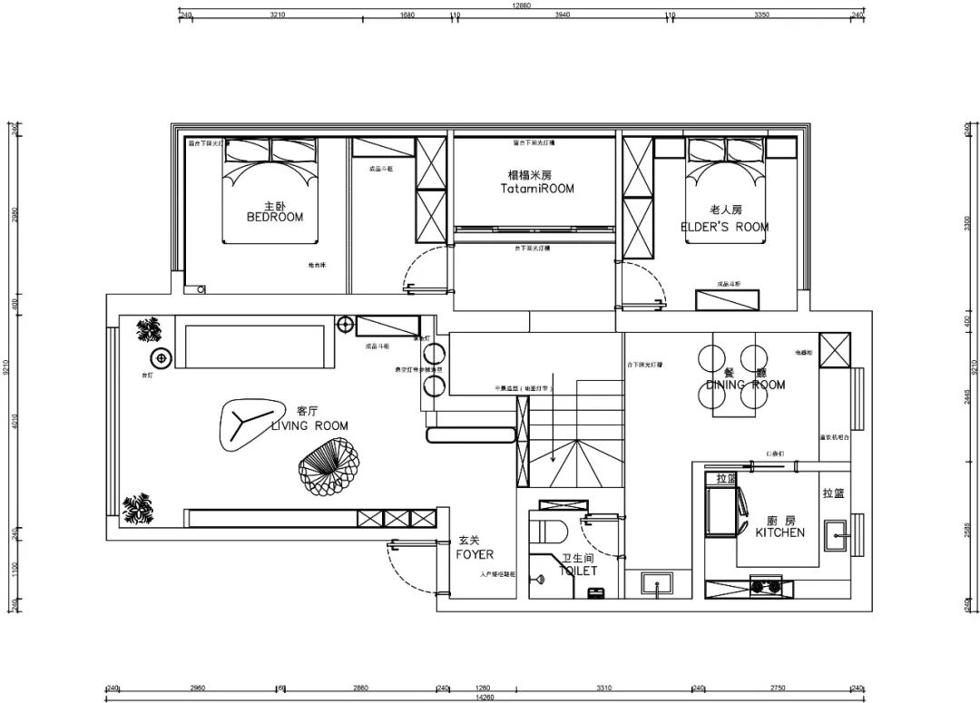
一楼平面布局图
本案为跃层住宅,一楼为起居室和卧室,二楼为书房和洗衣房。
业主的居住诉求:简洁、明亮、质感。全屋不需要任何墙面造型,只在必要的地方吊顶。客餐厅莱姆石瓷砖满铺,卧室柚木地板。
想拥有一个电影感的家其实,并不难。选一处老房,市井又生活。找到#有木设计 来设计和施工,室内装修不做复杂造型,色调要暖,光线要好,家具必须用实木。温润,质感,肌理……再搭配一些绿植,茶台也要有……冬日和春日的暖阳,倾洒进来,在成都,这就是最奢侈的东西。#想记录下此刻 为以后的生活
入户区域,一条老榆木用来提供置物平台。
全屋家具均为柚木打造,部分成品家具也是实木框架。
入户进来就是客厅与餐厅的楼梯分界,错层户型的高差,我们用阶梯来过渡。
电视柜采用了传统的高低柜设计,整屋古朴气息与都市生活兼备。全屋小米智能,居住体验更加舒适便利。
很多人都在追求定制衣柜的质感、天然性,然而真正的实木家具的质感和纹理却是无法被批量模仿,每一块都是独一无二的,颜色、纹路、质感。在屋里坐落着,自带气质与故事。
超像电视剧感的家
高低组合的电视柜。
从楼梯处俯瞰客厅,被框住的镜头很有画面感。
沙发一角,阳光洒在龟背竹与墙面上。
主卧室,百叶窗透下日光,也可以透下星光。
榻榻米冥想室。
二楼书房,工作、游戏、阅读,风光无限,也像一个飞船驾驶舱。
装修材料:莱姆石瓷砖、纯柚木门、地板和柜体、源氏木语沙发、小米智能、欧普、美的空调新风、电地暖、恒洁卫浴。
纯柚木的定制在我接触的客户群体里算比较少的,有夹心胡桃木做的,有橡胶木或桉木免漆板做的。柚木家具的表现却是比较出彩,其不易开裂的特性、丰富的纹理,氧化后不断加深的色彩,都是其他家具无法比拟的。相信随着居住时间的延续,柚木家具的表现会更加出色。
客服
消息
收藏
下载
最近






















