查看完整案例

收藏

下载

翻译
Architects:Sherpa
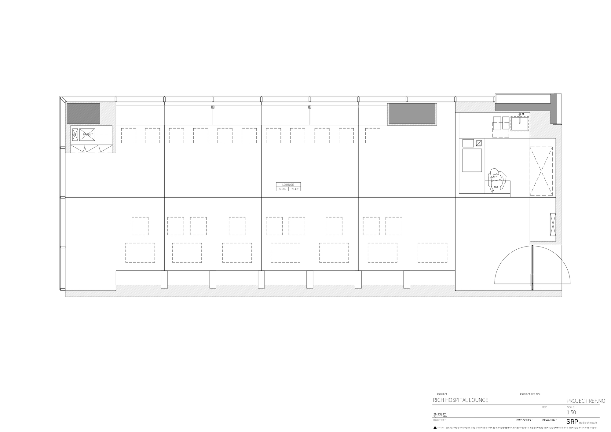
Area:83m²
Year:2025
Lead Architects:Shin Yeon Ho, Mo Byeong Guk
Category:Hospital,Interior Design
Lead Team:Shin Yeon Ho
Design Team:Park Young Min
City:Daejeon
Country:South Korea
Text description provided by the architects. The lounge at Rich Oriental Hospital is a space where patients reside. Many patients in hospital rooms share a common space with others, limiting their time and movement. We aimed to convey a sense of visual pleasure and liberation through spatial transitions that relieve the frustration patients may feel in their hospital rooms.
The high ceilings and the view outside, contrasting with the patient rooms, served as the starting point for our spatial design. The diagonal structure of the ceiling naturally directs the gaze to the outside, and the floating furniture reduces the weight of the space.
Furthermore, large-scale patterns and colors reflected in the outside view were incorporated into the interior to create a sense of freshness. We hope this space will provide patients with an emotionally comforting experience.
Project gallery
客服
消息
收藏
下载
最近












