查看完整案例

收藏

下载

翻译
Architects:Tésa architetture
Area:140m²
Year:2026
Photographs:Riccardo Sforzi
Category:Houses,Adaptive Reuse
Designers:Federico Sforzi, Riccardo Stermieri
General Contractor:Casaz
City:Carpi
Country:Italy
Text description provided by the architects. Casa NP is the renovation of an abandoned barn, part of the original nucleus of an old agricultural company founded at the beginning of the last century, located south of Carpi along the road towards Modena. The project, started in 2022 and completed at the beginning of 2026, transforms rural architecture into a contemporary habitable space without losing its original character.
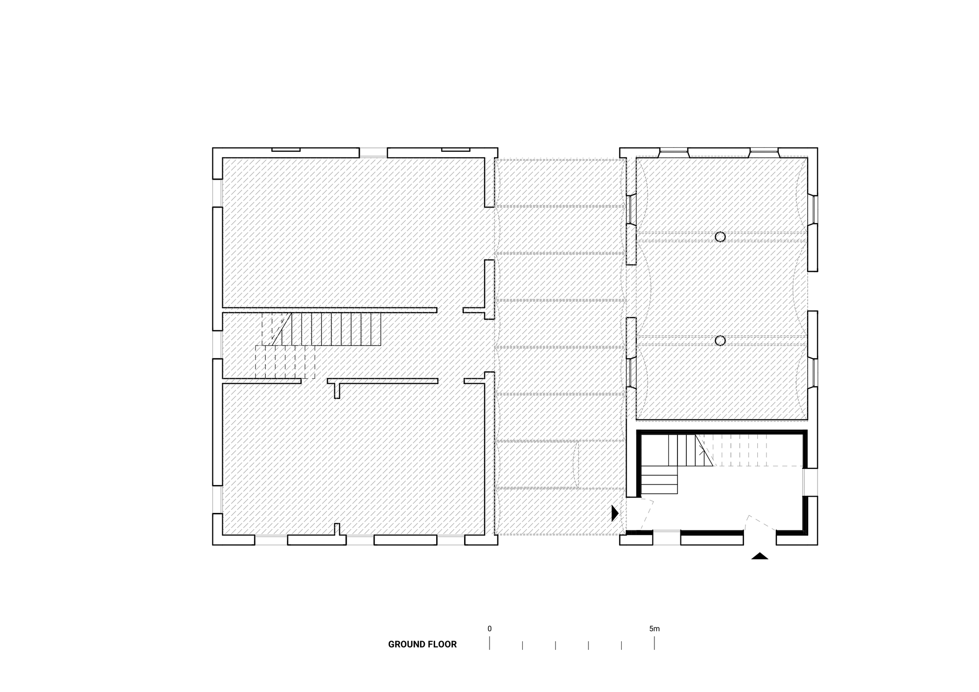
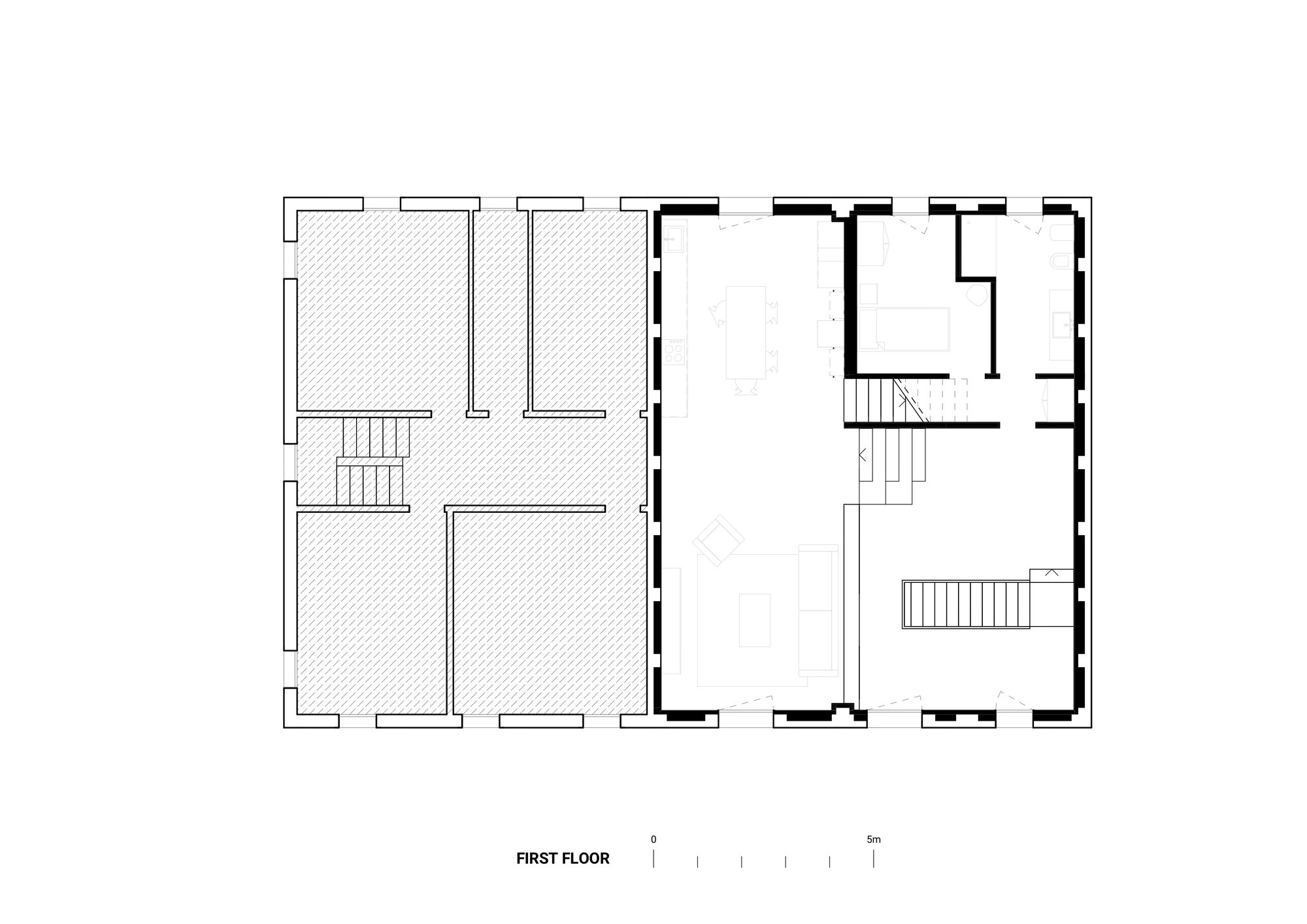
The typological context is the "Reggiano-Modenese" one, in which the living and working parts (stables and barn) coexist under the same roof, with a central portico that crosses the building, connecting and, at the same time, separating the two worlds. The intervention on the barn was born from a reading of the existing as a heritage of history and skills: the objective is not to replace, but to recognize the value of the construction elements and spatial qualities already present.
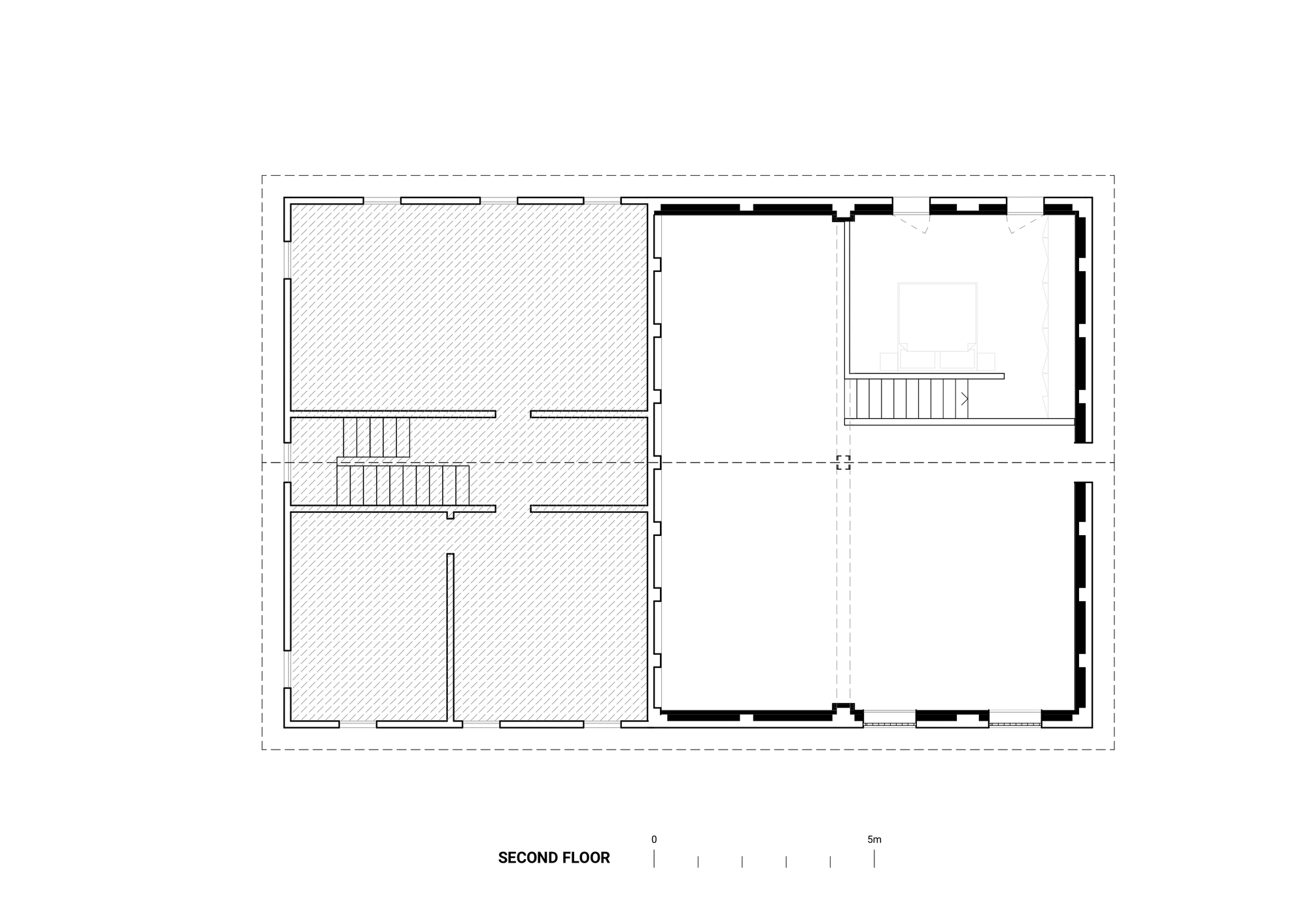
During the initial inspection, the large void of the barn — originally intended for hay storage — was assumed as the main resource. Hence, the guiding idea: to create a house within a large single space, avoiding traditional compartmentalization. The functions are organized on staggered levels, maintaining autonomy of use but without clear divisions; stairs and steps become devices of spatial continuity. On the north side, there is a service block with a bathroom and bedroom, surmounted by a more intimate space, a mezzanine, intended for the main bedroom.
An opening in the barn, preserved in its original position, today functions as a painting on the landscape: the view over the cultivated fields becomes the fulcrum around which the living room is organised, transforming an agricultural element into a domestic device for contemplation.
On a construction level, the checks confirmed the good condition of the existing vaulted structures, imposing a measured approach in the definition of the new packages and new heights to contain the loads and integrate the systems without altering the legibility of the original organism. On the ground floor, the choice of a continuous resin finish introduces a deliberately abstract contemporary layer: a neutral surface that amplifies the perception of volume and lets the materiality of the pre-existence emerge, by contrast. The intervention is completed with an essential palette of wood, concrete, and iron, used in a controlled way to highlight the dialogue between rural memory and new additions for contemporary living.
Project gallery
客服
消息
收藏
下载
最近





























