查看完整案例

收藏

下载
本项目是一对分别在东京与广岛两地从事模特与发型师工作的夫妇,在广岛开设一家美发沙龙的空间设计。由于两人分居两地,能够相处的时间十分有限,因此他们思考,是否可以将连接东京与广岛的生活方式投射到一个并非他们居所的空间之中——即这家店铺。
This project is for a couple who work as models and hairstylists in two locations, Tokyo and Hiroshima, to open a hair salon in Hiroshima. As they live apart from each other, they only have a short time to spend together, so they wondered if they could project the life that connects Tokyo and Hiroshima into the space of a store that is not their home.
▼美发沙龙室内空间,Interior view of the hair salon ©qiyu
▼H形木框架结构,H-shaped wooden frame structure ©qiyu
该物业位于广岛市并木通(Namiki-dori)沿街的一栋小型多租户建筑的五层。从街道上几乎无法被注意到,而从电梯出来后的公共空间也十分狭窄。最初看来,这样的条件似乎与这对夫妇所拥有的潜力略显不相称。因此,设计团队思考如何在尊重既有建筑格局的前提下,创造一个空间,使访客在打开店门的瞬间,便能立刻感受到这对夫妇所编织的独特世界观。
The property is on the fifth floor of a small multi-tenant building facing Namiki-dori in Hiroshima City. It is not noticeable from the street, and the shared space after getting off the elevator is narrow. At first, it felt a little lacking considering the potential of the couple. So, they thought about how they could create a space that would convey the world view that the couple has woven to visitors in an instant the moment they opened the door, while staying close to the building’s layout.
▼中央水吧台,Central water bar ©qiyu
▼洗发区,Shampoo area ©qiyu
在仅有42平方米的空间中,设计团队布置了可容纳的最大数量的理发工位(四个剪发位和两个洗发位),并在入口门内侧设置了一张体量较大的接待台,使其仿佛悬浮在空间之中。这个区域被命名为“yuqi table”,以便妻子在从东京返回时,可以在这里尝试各种活动,例如举办快闪店。此外,由于狭小的空间中已经摆放了体量较大的家具,如椅子和柜台,因此衣帽间采用亚克力材料制作,以呈现透明而轻盈的视觉效果。
They secured the maximum number of cutting spaces (four haircut machines and two shampoo machines) that could be accommodated in the 42 m² space, and placed a large reception counter beyond the entrance door to make it float. They named this place “yuqi table” so that the wife could try various things such as a pop-up store when she returned from Tokyo. Also, because the narrow space was packed with voluminous items such as chairs and counters, the cloakroom was made of acrylic to make it transparent and light.
▼剪发工位与镜面装置,Hair cutting stations with mirrors ©qiyu
▼透明衣柜,Transparent closet ©qiyu
设计团队将建筑结构的“骨架”恢复至原始状态,并利用木材仿照H型钢梁的形式构建了一个H形木框架。H形凹槽中容纳了电线、插座以及照明设备等基础设施,这些装置被整合为柱与梁的结构,并贯穿整个空间。
The skeleton of the structure was restored to its original state, and an H-shaped wooden frame was created using wood to imitate H-beams. The H-shaped recesses contained infrastructure such as electrical wiring, outlets, and lighting equipment, and these were assembled as pillars and beams and ran throughout the space.
▼收纳柜,Storge ©qiyu
▼悬浮桌板,Suspended table ©qiyu
▼木框架中的照明与设备,Lighting and services integrated in the wooden frame ©qiyu
“yuqi table”的柜台由这一框架支撑,并与丈夫的剪发工位相连接。镜子悬挂在梁架之上,而镜面支架与插座则安装在柱体上。电流在框架内部循环流动,如同血液一般。设计者希望,这对生活在不同城市、从事不同职业的夫妇,能够在这里作为伴侣一同工作,并在潜意识中感受到一种如血液般流动的联系。
The counter of the “yuqi table” is supported by this frame, which is connected to the husband’s cutting space, and a mirror is hung from the beam frame, with a mirror stand and outlets attached to the pillars. By circulating electric current inside the frame like blood, we hope that the two people, who live in different places and have different occupations, will be able to work here as a married couple while feeling a subconscious connection as if blood is flowing through them.
▼串联的结构,Series structure ©qiyu
当人们打开入口门的那一刻,映入眼帘的场景,正是这对相隔两地生活的夫妇重新连接的瞬间。这是一项由一种在广岛仍较为少见的生活方式所编织出的新事业。设计希望营造一个空间,使这对夫妇在工作中能够更加紧密地联系在一起。通过在这个往返于东京与广岛之间工作的空间中建立一个枢纽,他们共同编织的生活方式将逐渐发展为一种独特的文化,并在广岛以多种形式延展与传播,也将使这座城市变得更加有趣。
The moment you open the entrance door, the scene that jumps into your eyes is a moment when a couple living far away can connect. This is a new business woven by a lifestyle that is still rare in Hiroshima, and we aimed to create a space where the couple can connect more closely while working. By creating a hub in the space where the couple works while commuting between Tokyo and Hiroshima, the lifestyle they weave together will become a unique culture that will branch out and spread in various ways in Hiroshima, which I think will make the city more interesting.
▼日常瞬间,Daily moments ©qiyu
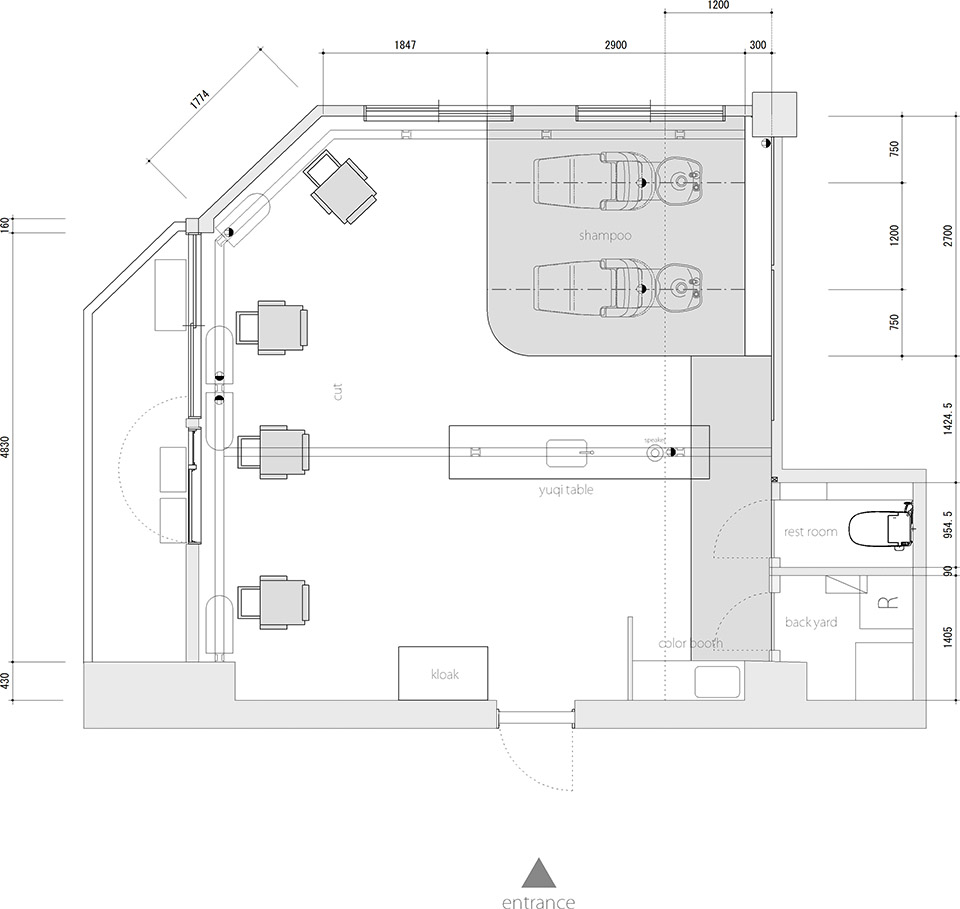
▼平面图,Plan ©Fathom
LOGO: Kentaro Ooi(Listen)
Address: 4-17sankou Bld.5F, Mikawacho, Hiroshima City Naka Ward, Hiroshima Prefecture, 730-0029, Japan
Area: 43.0㎡
OPEN: 10:00 〜 20:00
CLOSE: Monday
TEL: 070-9141-0667
URL:
客服
消息
收藏
下载
最近

























