查看完整案例

收藏

下载
新的哈莱姆工作室博物馆是一座体现身份、创造力与社区精神的大胆建筑表达。建筑由Adjaye Associates设计,Cooper Robertson担任执行建筑师,新馆建造在西125街原博物馆旧址之上。作为一座文化桥梁,博物馆连接了哈莱姆的历史根基与全球艺术界。其设计回应了机构长期以来的使命——既是非洲裔艺术家的家园,也是面向所有公众的活跃城市文化资源。项目通过公私合作模式推进,并获得纽约市政府的重要投资,因此既是一项建筑实践,也是一种城市公共宣言。
The new Studio Museum in Harlem is a bold architectural expression of identity, creativity, and community. Designed by Adjaye Associates, with Cooper Robertson as executive architect, this new purpose-built home is built on the site of the previous museum on West 125th Street. Acting as a cultural bridge, the museum connects Harlem’s roots to the global art world. Its design reflects the institution’s long-standing mission to be both a home for artists of African descent and a dynamic civic resource for all. Developed through a public-private partnership with significant investment from the City of New York, the project is a civic statement as much as an architectural one.
▼项目概览,overall of the project© Dror Baldinger
▼街景,street view© Dror Baldinger
在外观上,建筑与哈莱姆的城市肌理建立了深刻联系。由预制混凝土构成的多孔雕塑式立面采用喷砂与抛光处理的不同表面效果,呼应了当地建筑丰富的材料质感。建筑由层叠、交错的体量构成,映射出社区的节奏与活力。立面上分布着框架、开口与门洞,形成一种视觉语言,既回应哈莱姆街道景观,也在不经意间展现出建筑内部的活动。立面的通透性强化了博物馆与社区之间的联系,使人们能够从内部望向城市,同时也邀请公众进入其中。建筑外立面设置了四个雕塑展示壁龛,其中三个位于125街一侧,另一个位于124街一侧。▼草图与项目区位,sketch and site plan© Adjaye Associates
Externally, the building is deeply attuned to Harlem’s architectural fabric. Its porous sculptural façade of precast concrete with distinct sandblasted and polished finishes echo the material richness of local buildings. Its bold composition of stacked and interlocking volumes mirrors the neighborhood’s rhythm and vitality. Frames, apertures, and doorways appear across the façade as a visual language, referencing Harlem’s streetscape while revealing glimpses of the activity within. This permeability celebrates the connection between the museum and its community, offering views out to the city and inviting the public to step inside. Four external art niches provide spaces for sculpture installations. Three are on the 125th Street side, and the other on 124th side.
▼立面,facade© Dror Baldinger
▼街道立面,facade along the street© Dror Baldinger
建筑总面积约82,000平方英尺,共五层(其中包含两个双层通高空间),展览面积较原馆增加近50%,公共空间增加约60%。新馆不仅是艺术展览场所,也包含档案空间、艺术家工作室与教育空间,并成为社区与访客共享的公共客厅。
Internally the 82,000 sq ft building is set out over five floors (including two double-height), representing an increase in exhibition space of almost 50% and almost 60% more public areas. The new building serves as an art exhibition gallery, an archive, a working studio for artists and education, and a living room for the community and visitors.
▼双层通高空间,double-height space© Dror Baldinger
▼底层空间,ground floor space© Dror Baldinger
进入建筑的序列从一层与地下层贯通的明亮大厅开始,其空间特征由“反向门阶”(reverse stoop)定义——一组由木材构成的阶梯式空间景观向下延伸至博物馆内部核心。地面采用工程木地板,以其可持续性、温暖质感与良好声学性能为特点。木材饰面为空间带来触感上的柔和,同时具备公共空间所需的耐久性。“反向门阶”既是聚集空间,也可作为灵活的活动场地;当全长声学剧院帘幕关闭时,开放大厅可转变为私密的表演空间。一层还设置零售商店、展览项目空间与信息台以及装卸区,而咖啡厅与公共服务设施则位于地下层。
The arrival sequence begins in a generous, light-filled lobby on the first and lower floors, defined by the reverse stoop – a stepped landscape of timber that extends down into the heart of the museum. Engineered wood flooring was chosen for its sustainability, warmth, and acoustic performance. The timber finish lends a tactile softness to the space while offering durability for public use. The reverse stoop functions as both a gathering area and a flexible event venue. A full-length acoustic theater curtain closes to transform the openness of the lobby into an intimate performance space. The retail store, a project space for exhibitions and information desk are also on the first floor, as well as the loading dock, whilst the café and public amenities are on the lower level.
▼“反向门阶”,the reverse stoop© Dror Baldinger
▼由木材构成的阶梯式空间,a stepped landscape of timber © Dror Baldinger
▼“反向门阶”既是聚集空间,也可作为灵活的活动场地,the reverse stoop functions as both a gathering area and a flexible event venue© Dror Baldinger
一座覆以水磨石的雕塑式楼梯从大厅升起,将地下层与四层连接,并在沿途形成多个观景节点。其富于表现力的形态强化了建筑的垂直节奏,在空间与体验层面连接各个楼层。每层的走廊展厅以及从四层通往六层屋顶露台的楼梯均采用预制混凝土构造,与楼面材料保持一致,并配以缎面黄铜栏杆。
A sculptural staircase clad in terrazzo rises from the lobby, connecting the lower level to the fourth floor with look at points along the way. Its expressive form reinforces the building’s vertical rhythm, connecting floors both spatially and experientially. The corridor galleries on each floor and staircase from the fourth floor to the roof terrace on floor six, are crafted from precast concrete to match the floors, with a satin brass railing.
▼水磨石的雕塑式楼梯,sculptural staircase clad in terrazzo © Dror Baldinger
博物馆的展览动线以二层和三层的展厅为核心。一个双层通高、白色墙面的拱形展厅成为展示馆藏作品的空间焦点,其弧形形态柔化了平面几何,营造出平静的空间氛围。与之相辅的是南侧展厅——宽敞且层高较高的空间,为大型装置艺术与轮换展览提供灵活的展示场所。两类展厅共同在亲密尺度与纪念性之间取得平衡,以回应当代艺术家不断变化的创作需求。
The Museum’s exhibition journey is anchored by the galleries on the second and third floors. A double-height white-walled vaulted gallery space creates a focal point for the display of works from the Museum’s collection. Its curvature softens the geometry of the plan, creating a spatial calm. Complementing this are the South Galleries, expansive, high-ceilinged rooms that provide flexible settings for large-scale installations and rotating exhibitions. Together, these galleries establish a balance between intimacy and monumentality, responding to the evolving needs of contemporary artists.
▼展厅,the exhibition hall© Dror Baldinger
▼白色墙面的拱形展厅,white-walled vaulted gallery space© Dror Baldinger
▼展厅,the exhibition hall© Dror Baldinger
教育工作室分布在二层和三层,以错层方式组织,配备先进的视听技术与可灵活调整的空间布局。这里既是课堂,也是活动空间,用于举办工作坊、讨论和面向不同年龄群体的创意项目。空间布局鼓励协作式学习与直接参与艺术创作,在博物馆的教育使命与展览项目之间建立联系。
The Education Studio is set over the second and third floors. Arranged on split levels, it is equipped with advanced audio-visual technology and flexible layout. It functions as both a classroom and an activity space, supporting workshops, discussions, and creative programs for all ages. The layout encourages collaborative learning and direct engagement with art-making, bridging the gap between the museum’s educational mission and its exhibition program.
▼空间配备先进的视听技术与可灵活调整的空间布局,the space is equipped with advanced audio-visual technology and flexible layout© Dror Baldinger
四层的驻留艺术家工作室体现了博物馆核心的创作精神。该空间为错层结构,通过通高窗户引入充足自然光,并将周边城市景观纳入视野,强调开放与透明。工作室设计具有高度灵活性,可容纳绘画、雕塑及多媒体装置等多种艺术实践,鼓励实验与跨学科创作。四层还设有非正式公共交流区与阅览室。
The Artist in Residence Studio on the fourth floor embodies the spirit of making at the Museum’s core. This split-level space is flooded with natural light through full-height windows that frame the surrounding cityscape, emphasizing openness and transparency. Designed with adaptability in mind, the studio can accommodate a range of artistic practices, from painting and sculpture to multimedia installations, encouraging experimentation and cross-disciplinary work. An informal communal area and a reading room also occupy the fourth floor.
▼高窗户引入充足自然光,space is flooded with natural light through full-height windows © Dror Baldinger
五层为可灵活使用的空间,可举办项目活动、会议与特别活动,并通往屋顶露台。露台作为面向公众的户外空间,可俯瞰哈莱姆与曼哈顿景观,为博物馆提供一个充满光线的观景平台,使其在更广阔的城市语境中定位自身。
Flexible space for program, meetings, and special events on the fifth floor leads out to the roof terrace, a public outdoor space with views across Harlem and Manhattan, providing a light-filled vantage point that situates the Museum within its broader urban context.
▼屋顶露台,the roof terrace© Dror Baldinger
“从建筑层面来说,这个项目的核心是将‘创作、生产与学习’这一文化三联体汇聚在一起,同时回应其多重身份:既属于黑人社区,也属于纽约市,更是国际艺术界的一部分。”
“Architecturally, the essence of the project was to bring this cultural triptych together, making, producing, and learning, in tandem with the plurality of being part of a Black neighborhood, part of New York City, and part of the international art scene.”
—— David Adjaye
▼楼梯,staircase© Dror Baldinger
项目通过公私合作模式推进,并获得纽约市政府的重要投资,因此既是一项建筑工程,也是一种城市公共宣言。博物馆对公平与包容的承诺同样体现在建造过程中:项目在劳动力多样性以及少数族裔、女性和本地企业参与方面均达到或超过既定目标。
Developed through a public-private partnership with significant investment from the City of New York, the project is a civic statement as much as an architectural one. The Museum’s commitment to equity and inclusion is reflected in its construction process, meeting or exceeding goals for workforce diversity and participation by minority-owned, woman-owned, and locally based firms.
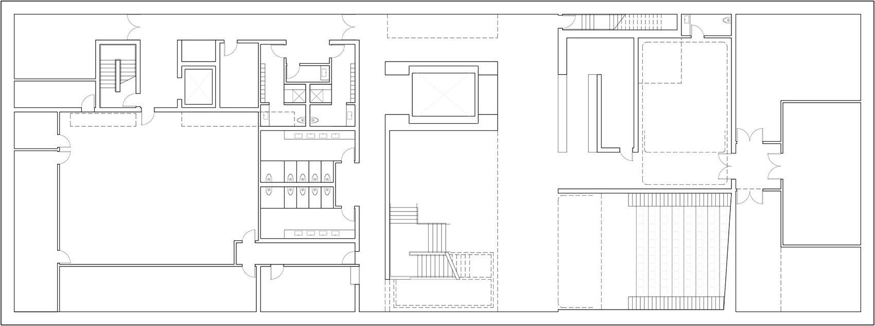
▼地下层平面图,level 0 plan© Adjaye Associates
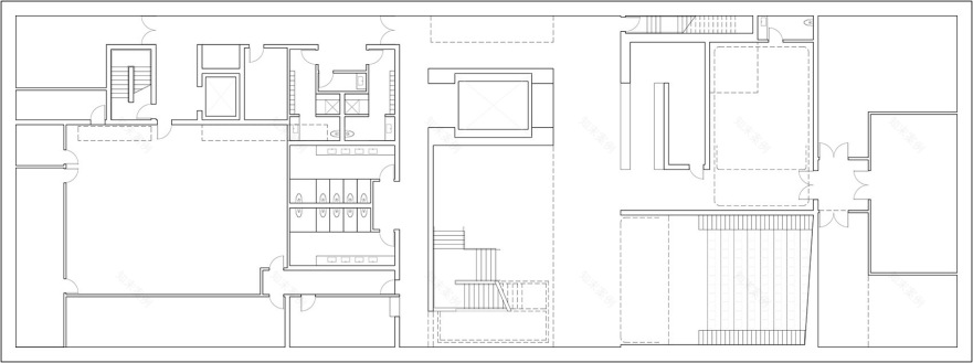
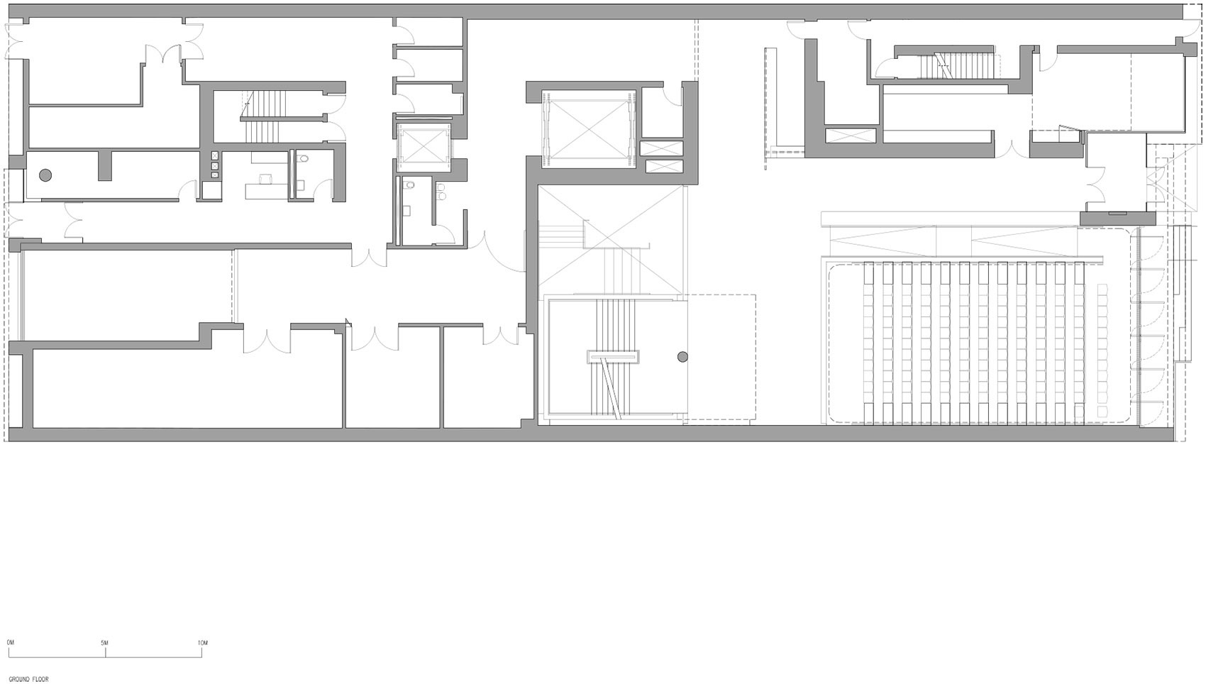
▼一层平面图,level 1 plan© Adjaye Associates
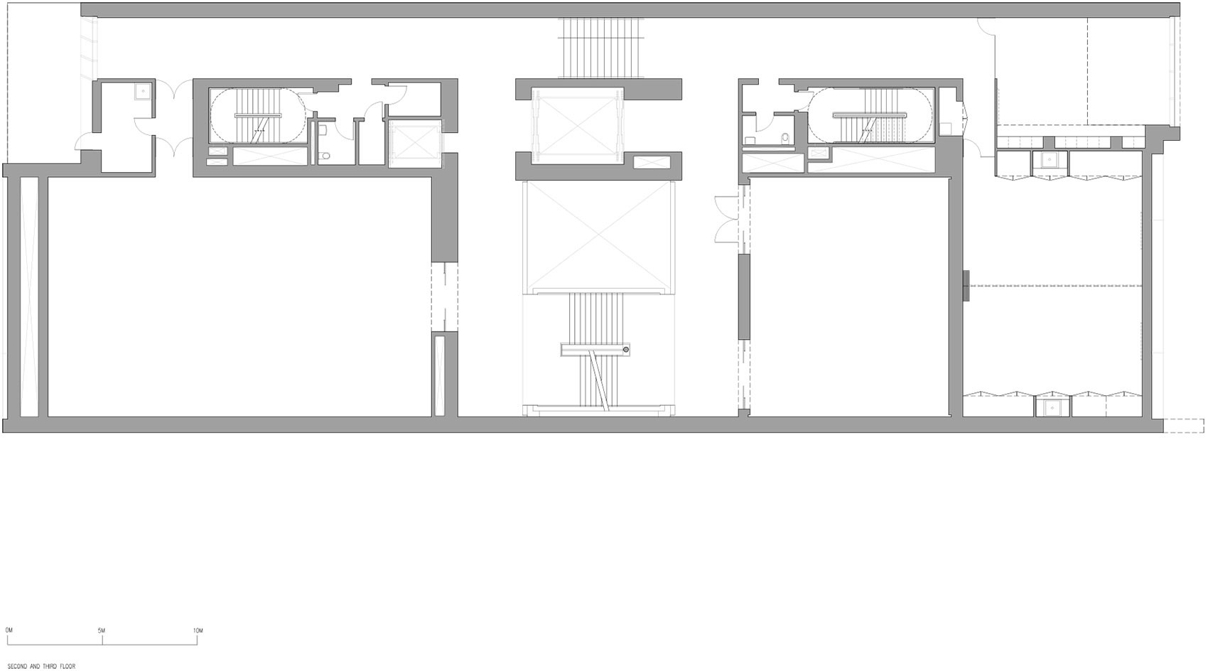
▼二三层平面图,level 2&3 plan© Adjaye Associates
▼四层平面图,level 4 plan© Adjaye Associates
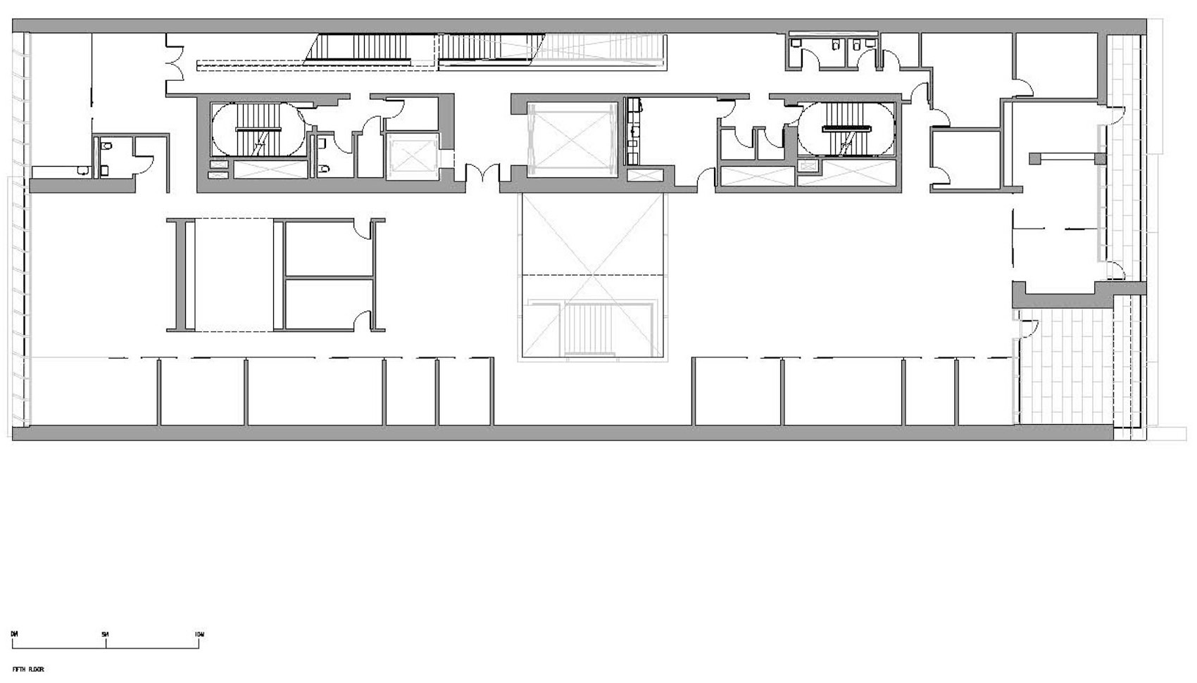
▼五层平面图,level 5 plan© Adjaye Associates
▼六层平面图,level 6 plan© Adjaye Associates
▼七层平面图,level 7 roof plan© Adjaye Associates
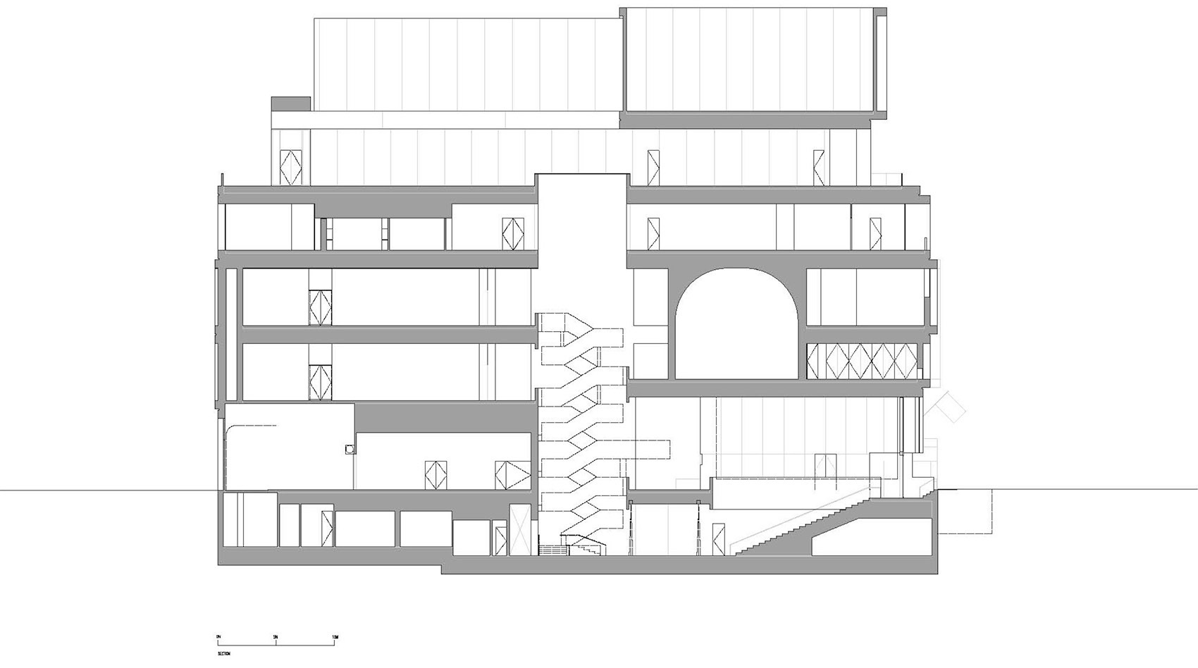
▼剖面图,sections© Adjaye Associates
Size: 82,000 sqft / 7,618 sqm
Location: Harlem, New York, USA
Artist-in-Residence studios and artist lounge: 14,000 sqft
Education Spaces: 1,800 sqft
Visitor Amenities: 8,900 sqft
Outdoor Spaces: 8,00 sqft
Design Architect: Adjaye Associates
Architect of Record: Cooper Robertson
Façade: Thornton Tomasetti
Structural (Design): Guy Nordenson & Associates
Structural (EOR): Simpson Gumpertz & Heger
Civil Engineer: Langan
Facade Maintenance: Entek
Construction Manager: Sciame Construction LLC, with McKissack & McKissack
MEP/FP, Security: WSP
Security/IT: WSP
AV: Harvey Marshall Berling Associates
Wayfinding and Donor Signage: Harvey Marshall Berling Associates
Lighting: Fisher Marantz Stone
Sustainability: Socotec
Theater: Fisher Dachs Associates
Acoustic: Longman Lindsey
客服
消息
收藏
下载
最近































