查看完整案例

收藏

下载

翻译
Architects:Ha Architecture
Year:2023
Photographs:Tom Ross
Builder:Frameworks
Landscape:Pop Plant
Category:Houses
Principal, Design Architect:Nick Harding
Project Architect:Madeleine Hodge
Architectural Graduate:Chris Mark, Alice McColl
Structural And Civil Engineer:RI Brown
Building Surveyor:Floreancig Smith
City:Melbourne
Country:Australia
Text description provided by the architects. Conceived during the pandemic through a series of discreet meetings, Barkly House is a brick home designed for the son of a bricklayer.
From the street, the silhouette of the addition presents as a seemingly blank backdrop to the existing home. Strategically set apart, this extension allows solar access over the original home into the living spaces while also creating a discreet side entrance - leading directly to the heart of the house.
A proud Italian heritage inspired this masonry family home, centered around a sunken lounge and adorned with marble and granite. Designed to embrace its south-facing outlook while maximizing natural light, the home frames select views—extending from the backyard to the city skyline.
A lush side-entry 'greenhouse' floods the living spaces with winter sun, enhancing the home's warmth and character. The checkerboard floor plan balances function and flow: a south-facing kitchen and dining area seamlessly connect to the rear yard, while the north-facing lounge invites light and openness.
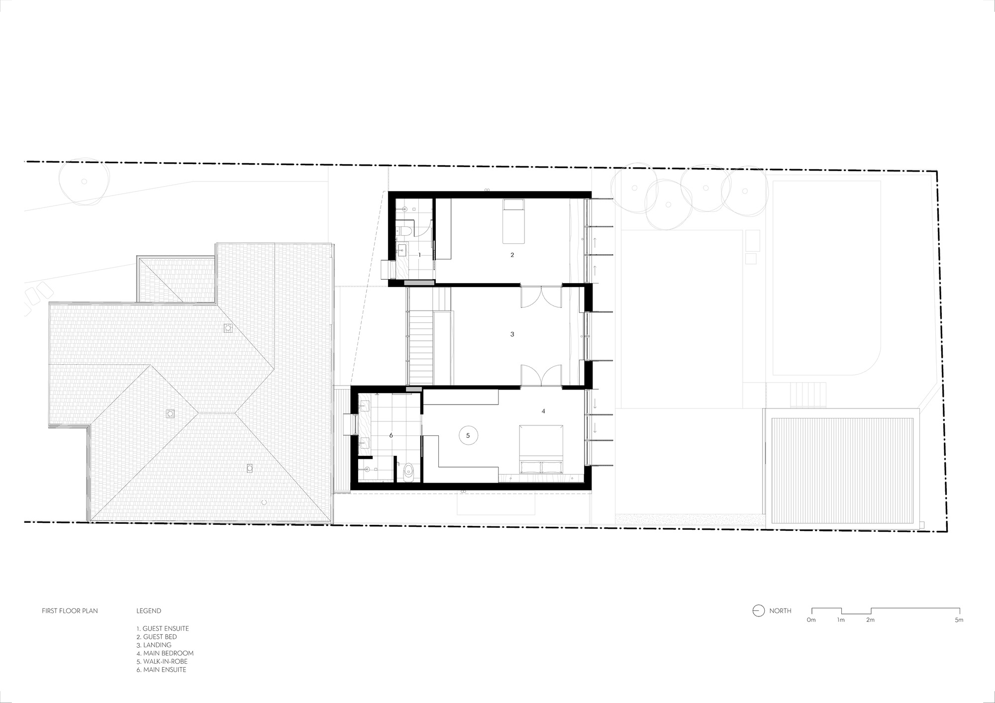
The bathrooms at Barkly House are designed to be their own experience—a moody palette of stone in select areas and Venetian plaster, which encapsulates the room. The vibe is created by warm, functional lighting, articulated by brass details.
Project gallery
客服
消息
收藏
下载
最近




































