查看完整案例

收藏

下载

翻译
Architects:YH2 Architecture
Area:4530ft²
Year:2024
Photographs:Maxime Brouillet
Lead Architects:Marie-Claude Hamelin, Loukas Yiacouvakis
Category:Residential Architecture,Houses
Design Team:Marie-Claude Hamelin, Loukas Yiacouvakis, Karl Choquette, Lisa Busmey
General Contractor:Construction Alain Pouliot Inc.
Engineering & Consulting > Structural:GénieX
City:Potton
Country:Canada
Text description provided by the architects. Situated on the southern shore of Lake Memphremagog, in the region of Potton, this residence engages with a landscape of striking geographical and atmospheric intensity. The site, defined by a steep incline descending toward a narrow strip of shoreline, is frequently cast in the shadow of the surrounding mountains, generating an ambiance at once archaic and contemplative. The architectural project emerges as a response to this dramatic setting — an attempt to co-inhabit the terrain with discretion and reverence.
The architectural approach is governed by a logic of strategic withdrawal — not as erasure, but as an intentional softening of built presence. Two distinct yet interrelated volumes are articulated in a fragmented composition. Each is topped with a dual-sloped roof (pitch and counter-pitch), a morphological gesture that establishes a quiet dialogue with the site's natural geometries while breaking down the overall scale of the construction. The project is not placed upon the land, but rather appears to be lightly set into it, suspended in topographic conversation.
The roof of the main volume becomes a liminal surface — a terrace-belvedere that acts as both threshold and viewpoint. This rare horizontal plane, within a site otherwise governed by descent, serves as a spatial and symbolic hinge between architecture and landscape. It is a space of reception and transition, a moment of pause that reorients the act of entering into one of visual and spatial contemplation.
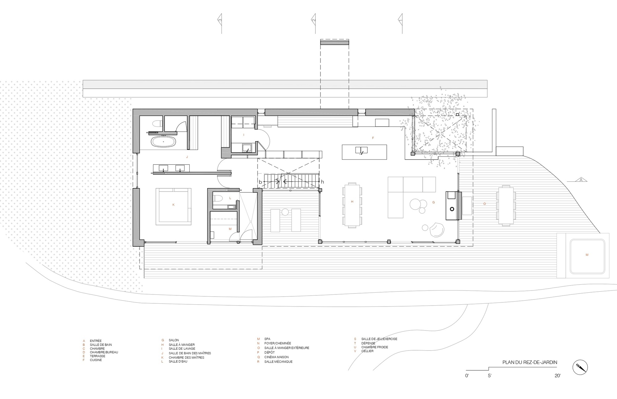
The main body of the house unfolds along a natural plateau, following the terrain with measured restraint. This longitudinal placement minimizes excavation and promotes a passive integration into the existing morphology. The living spaces, fully open toward the lake via expansive glazed apertures, invite visual and spatial porosity. Extending outward, the floors become terraces, blurring the lines between interior and exterior and reinforcing a continuous sensorial dialogue with the landscape.
Materiality is central to this contextual strategy. Naturally weathered cedar clads the exterior, harmonizing chromatically with the vegetal and mineral tones of the surroundings. Inside, white oak brings warmth and a sense of domestic calm, contrasting with the untamed presence of the landscape beyond. Black architectural elements — framing devices, openings, details — punctuate the spatial sequence. These components act as visual instruments, framing views and structuring the occupant's relationship to depth, space, and the pictorial dimension of the landscape.
This residence can be read as a meditation on landscape through architecture — not through mimicry, nor through rupture, but through a calibrated tension between presence and absence, between architectural affirmation and humility. It explores how architecture can inhabit a site not merely as object, but as condition and catalyst for the experience of place — an architecture that reveals more than it impose.
Project gallery
客服
消息
收藏
下载
最近



























