查看完整案例

收藏

下载

翻译
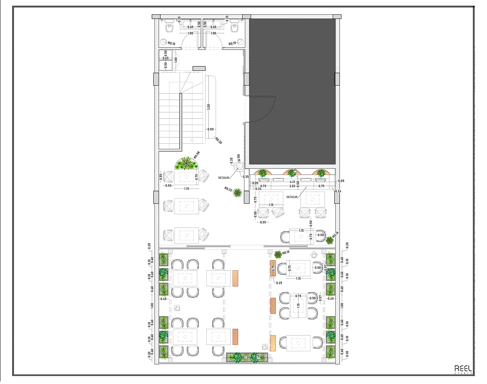
Cafe & Restaurant ShopdrawingsCategory: CommercialType: Interior DesignLocation: Alkhobar, KSADrawing By: Reel StudioSoftware: Autocad 2022Year: 2025
FACEBOOK About us
Premium interior and architectural designsINSTAGRAM Distinguished in interior design,
Residential, Commercial, and Administration
LINKEDIN
TWITTER
WHATSAPP
COOPERATION
IF YOU ARE INTERESTED IN WORKING WITH US, PLEASE SEND US THE INFORMATION REGARDING YOUR PROJECT
客服
消息
收藏
下载
最近




























