查看完整案例

收藏

下载

翻译
Architects:HAGISO
Area:103m²
Year:2025
Photographs:Tomoyuki Kusunose
Manufacturers:Flos
Lead Architects:Mitsuyoshi Miyazaki
Category:Houses
Lead Team:Mitsuyoshi Miyazaki
Design Team:Keito Kubota
Engineering & Consulting > Structural:Ryotaro Sakata Structural Engineers
General Contractor:Yasumatsu Takken
City:Maebashi
Country:Japan
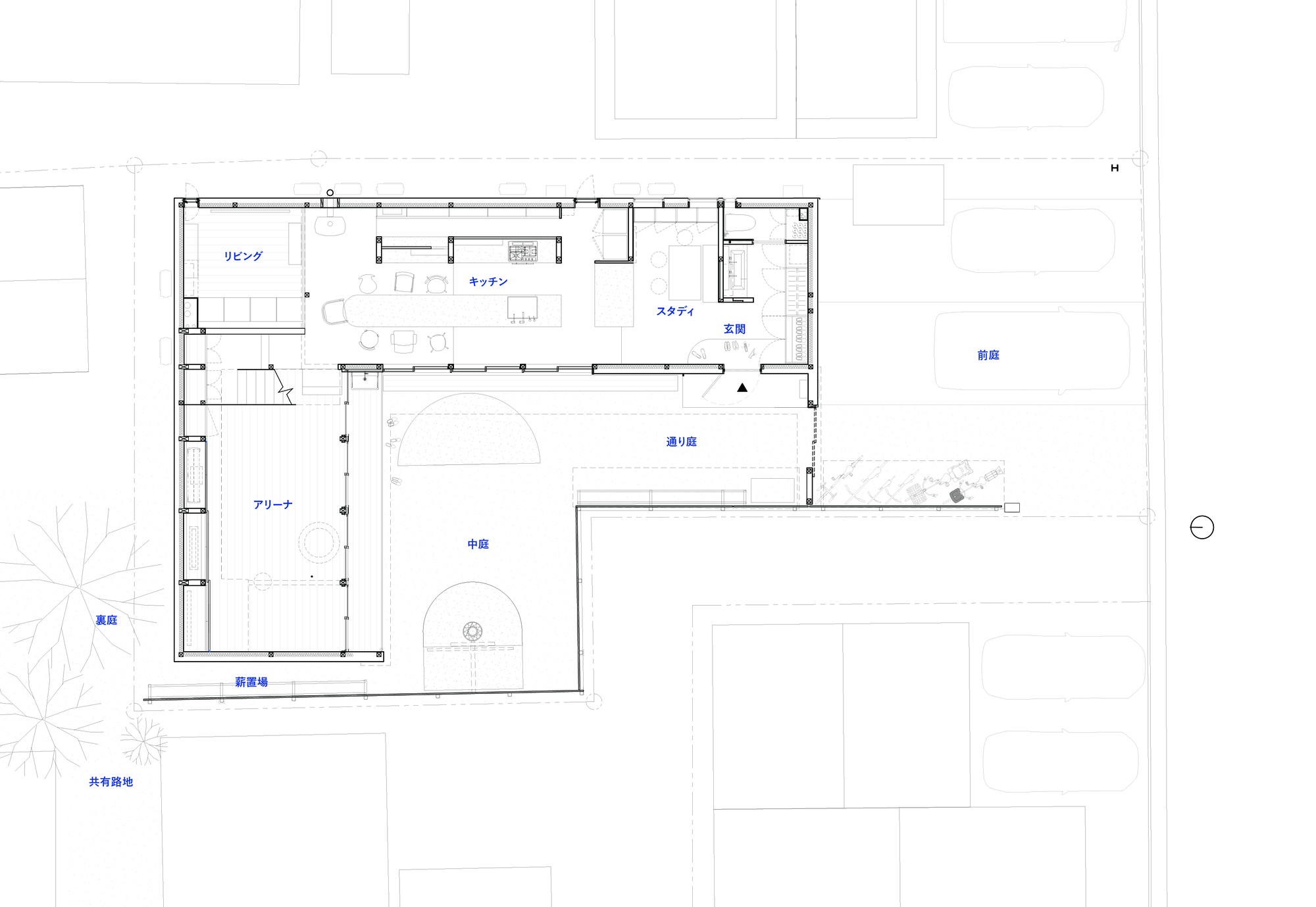
An envelope embracing the city and a family – This residence explores the theme of reconciling family time with architectural time. Situated in a residential neighborhood near Maebashi Station, it envelops the life of a family of seven—a couple and their five children. Featuring curved exterior walls that encircle a central courtyard to shield against the dry winds characteristic of northern Kanto, the design places an ample, gymnasium-like space called the "Arena" within this enclosure. This configuration generously accommodates the family's changing needs while embracing the light and breezes of each season. The house is conceived not merely as a "machine for living," but as an envelope that softly cradles the time spent by the family and the community. (Mitsuyoshi Miyazaki / HAGISO)
A Spatial Anthropology of a Large Family – Throughout the design process, our focus remained on two key aspects: the spatial volume (air volume) required for a large family to coexist, and the maintenance of appropriate distances between individuals. Given the surrounding environment with its high ratio of open space, our initial explorations sought a spatial image where seven people could live freely by scattering visual and environmental connections. However, after recognizing the critical need for sightlines to supervise young children and witnessing their boundless energy firsthand, we shifted the final design toward a bolder spatial configuration centered on the courtyard. (Keito Kubota / HAGISO)
Following this shift, we carefully refined the interior fittings to ensure a "comfortable distance" between residents. This was achieved through several measures: adjusting sound and privacy in the private rooms—kept to a minimal 5.7 square meters—using glass sliding doors combined with curtains; managing the microclimate of the vast space via thermal circulation ducts to reduce air conditioning loads; and creating multiple circulation paths using the pantry, furniture placement, and even athletic equipment. Furthermore, the single large room is experientially segmented through variations in floor and ceiling levels, providing a nuanced sense of boundary within a unified space.
Structural System of the Arena with a Semi-Vaulted Roof – The "Arena," an expansive, high-ceilinged space, is connected in an L-shape to the three-story residential wing (including a loft). The Arena's roof is supported by 7.2-meter-span wooden parallel chord trusses positioned at the setback above the second floor. From the top chord of these trusses to the exterior wall, a semi-vaulted roof is suspended. This vaulted structure is composed of arc-shaped CT-sections (CT-100×100×5.5×7) spaced at 1,820mm intervals. Along this arc, 105mm square purlins are arranged and covered with 9mm structural plywood, creating a thin, curved shell. Since the connection between the arc-shaped CT-sections and the wall columns is a pin joint, the columns act as cantilevers from the second-floor level to resist horizontal forces in the transverse direction. (Ryotaro Sakata/ Ryotaro Sakata Structural Engineers)
Project gallery
客服
消息
收藏
下载
最近


























