查看完整案例

收藏

下载
前叙
Foreword
在上海南部科创中心的版图上,一颗璀璨的“明星”正在冉冉升起 ----漕河泾颛桥科技绿洲。继2023年6月,一期竣工后,去年,二期竣工,三期在不远的将来也即将竣工。这个由德国gmp建筑事务所与联创设计集团合作设计,承袭漕河泾开发区国家级战略基因的新一代产城融合的标杆园区将点亮对未来科创生产、生活的美好想象。
在传统语境中,工业园区往往被视为冷峻的生产机器,强调效率而忽视体验。随着全球科创范式的转型,产业园建筑不再仅仅是生产的容器,而是激发创新的场域。漕河泾颛桥科技绿洲的设计实践,正是在这种背景下,探索如何通过“融合城市”、“融入自然”与“融入生活”,在南上海的版图上构建一座充满创新活力,生活气息与人文关怀的科创高地。
概况 / 愿景定位
漕河泾开发区本部位于上海市西南部,是上海科创中心重要承载区之一。自1992年建设以来,园区在政府政策支持下,集聚人工智能、集成电路生物医药等多元产业,汇集研发机构、高校与孵化平台,吸引大量国内外人才和跨国企业,逐步形成开放、高效、具有核心竞争力的创新型产业集群。
漕河泾颛桥科技绿洲一期
漕河泾颛桥科技绿洲地处闵行区中部要地。基地四周环路环绕,其中北侧元江路为城市主干道,西侧都会路为城市次干道,对外交通便捷;基地东北角已建成地铁15号线。项目通达机场仅需约半小时。同时,基地北、东、南三侧均毗邻天然河流,自然生态条件优越。颛桥园区有着较高的定位:
漕河泾颛桥科技绿洲上海南部科创中心以全要素集聚为基础,以科创项目联动为抓手,推动创新资源在区域内高效整合与协同发展,带动片区产业结构与城市功能的整体升级,打造上海南部科创中心的重要承载平台。
科创服务载体:通过引入行业龙头企业,联动区域既有产业资源,构建上下游协同、产学研融合的产业生态圈,持续放大集聚效应,着力打造工业互联网产业高地。
生态综合园区:以功能复合与载体多样为特征,融合绿色生态与开放互动的空间理念,构建集生产、研发、服务于一体的综合型园区形态,塑造新一代产品创新的示范典范。
产业创新载体:以多层厂房和高层厂房为主要载体形式,形成高效集约的产业空间体系,精准对接智能制造与生命健康产业的发展需求,为产业创新提供坚实的空间支撑。
园区形象
地块属性为一类工业用地。设计在充分研判周边交通体系、景观条件及配套设施规划的基础上,对园区整体进行结构化梳理,将其划分为南、北两个片区,并进一步细化为四个功能分区,对应四个建设阶段有序实施。
四个功能分区©gmp
北侧布局为高层研发厂房—工业研发—配套服务的复合组团;南侧则以厂房组团与定制化厂房为主。高层厂房组团内部进一步拆分为两个功能单元,涵盖厂房、工业研发、宿舍、停车楼及配套综合体等功能。
建筑群鸟瞰
理念 / PARK + X
在产业空间不断向复合化与场景化演进的背景下,项目以 PARK+ 为核心方法论,从开放、交流与自然三个维度出发,重构园区空间逻辑,塑造兼具开放活力与便捷高效的创新场域。
园区内部
PARK + Communication|聚合 · 开放办公
以开放办公为空间载体,突出“聚合”而非分隔,营造轻松惬意且富有吸引力的合作交流环境。办公空间在功能之外承载沟通与共享属性,成为促进互动、激发灵感的日常发生地。
建筑围合
PARK + Technology|缝合 · 活力街区
项目以“缝合”为核心空间策略,通过活力共享、智慧创新的景观节点,将分散的园区单元有机串联,形成连续、开放且富有动感的街区体系,构建科技生产效率与公共活力并存的人性化场景。
二期建筑与景观绿化
PARK + Ecology|融合 · 自然生态
以“融合”为导向,引入系统而多元的生态可持续景观,充分发挥河道景观资源,使自然环境渗透并沉浸于园区整体之中。自然生态不再是附属要素,而成为组织空间、调节环境、提升体验的重要组成部分。
建筑与景观绿化
通过 PARK+ 体系的整体构建,园区实现了办公、街区与自然的协同融合。在理性技术框架之上注入开放性与生态价值,项目由此呈现出面向未来的,注重生活品质的产业空间范式。
建筑群与河道
产品 / 多样灵活
规划明确了从“绿洲厂房”到“总部办公”再到“高层科技办公”的梯度演变。这种多元化的空间形态,通过几个组团花园,景观通道进行组织、串联,形成了从生产到研发、再到生活服务的完整空间链条。
总平面布置示意
一期/绿洲厂房
南区多层厂房组团沿河展开,小尺度建筑自由布置,中部形成共享内庭院,各组团内部均配置独立庭院空间,享有良好的自然景观条件。
一期/绿洲厂房 单体平面规整高效,可分可和,灵活多变,满足多样需求。
一期典型平面图
二期/总部办公
总部办公区,建筑密度较小,绿化环绕。设计尽量增加临河界面,并充分向河面开放。
沿河建筑群
二期总部办公
总部办公采用自由错落布局方式,与绿化和自然景观充分咬合,打造宜人环境。单体平面契合市场主体需求,可灵活划分,更增加适配度。
二期典型平面图
三期/高层研发办公
综合体位于地块东北角,毗邻地铁站,整体朝向地铁方向敞开,承接城市人流,内嵌630套人才公寓,形成集配套服务与形象展示于一体的园区门户界面。
三期/高层研发办公综合体
设计打开园区与城市之间的边界,在此关键的城市交界节点设置承载城市功能的公共广场,使城市绿化、城市公园与日常生活场景得以渗透并融入园区空间。
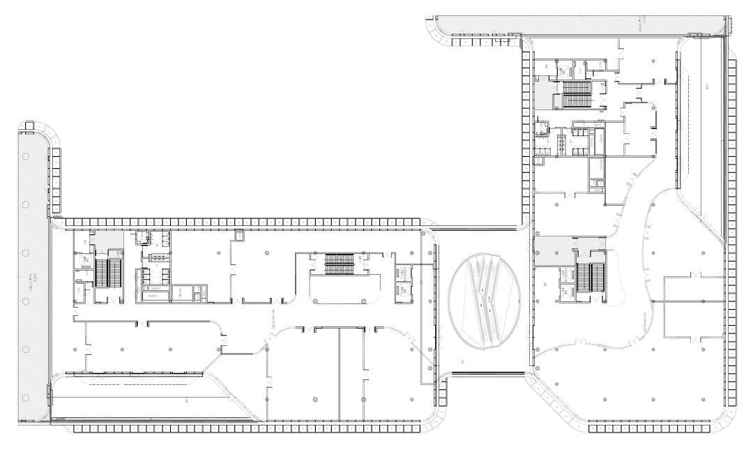
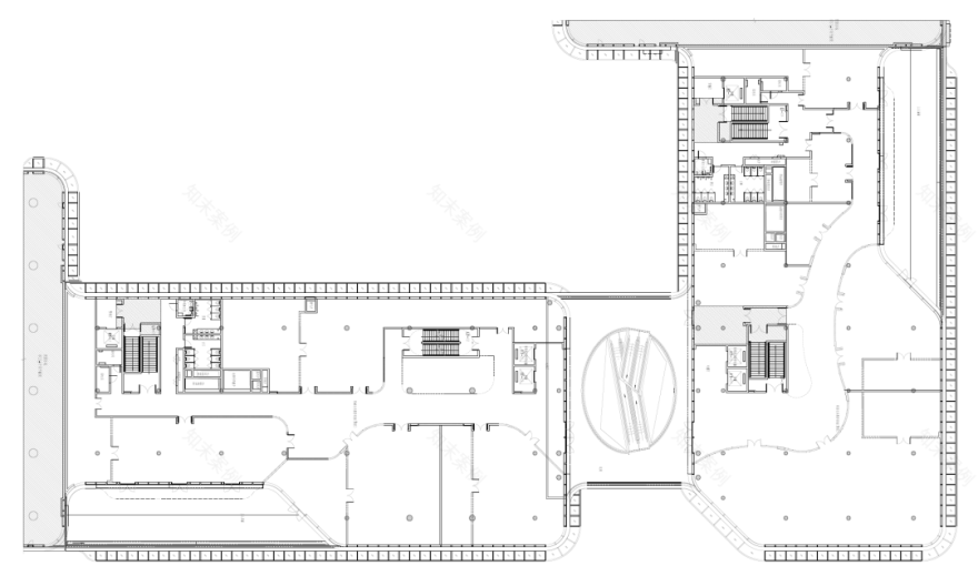
三期综合楼塔楼平面图
三期综合楼裙房平面图
三期建筑细部 /
结语
漕河泾颛桥科技绿洲,不仅是漕河泾开发区在南上海落下的重要一子,更是一次关于“生产、生活与生态”的思考探索。通过高效的空间规划、严谨理性的技术指标以及对自然环境和城市生活的关注,成功地将一块传统的M1工业用地转化为一个充满活力的科创生态场。在这里,建筑不再是冰冷的钢筋混泥土叠加,唯效率和理性的产物,而是一个生产与生活的载体,一个可以与光影、自然、科技创新、日常生活共同呼吸、生长的有机体。
生产 · 生活 · 生态 | 多元融合
Production · Life · Ecology / Integration -
客服
消息
收藏
下载
最近

































