查看完整案例

收藏

下载

翻译
__DOKE CAFE__
Type| Design & Working Drawings Design | Visualization PROP & AERMES ARCHITECTS
PROP & AERMES ARCHITECTSLocation | Saudi Arabia (KSA).
Used Software | 3ds Max | CORONA 9.
Project Year: 2025.
"Clean Lines, Bold Branding — Dok Café Makes A Statement Before You Even Step Inside."
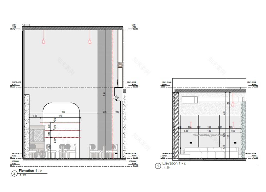
" From Vision To Construction—Dok Café’s Working Drawings Make It Real."
PROP & AERMES ARCHITECTS AND MORE...
IF YOU ARE INTERESTED IN WORKING WITH US,
PLEASE SEND US THE INFORMATION REGARDING YOUR PROJECT.
+02 010 94 30 9894
客服
消息
收藏
下载
最近



























