查看完整案例

收藏

下载
现在,项目对接服务迎来了全新版本:我们重新梳理了设计公司与业主的实际需求,推出更灵活、更高效的服务模式:
☑ 有效协调,告别拥挤:每条信息最多销售给5-7个会员,避免激烈竞争。
☑ 成本可控,按需选择:按需购买项目线索信息。
☑ Effective Coordination, Say Goodbye to Crowding: Each project lead is sold to a maximum of 5-7 members to avoid intense competition. ☑Cost Control, Choose According to Demand: Project leads are available for purchase on an as-needed basis.
本次介绍的项目是 又山建筑 在平台上接到的胡同住宅改造项目。
This time we will introduce the Hutong House Renovationproject completed by Yosaan Architects. (the interview is only in Chinese)
▼客厅和庭院的渗透,The infiltration of the living room and the courtyard © 王俊
▼夹层公共区,Mezzanine public area © 王俊
▼咖啡区看向夹层公共区,The coffee area looks towards the mezzanine public area © 王俊
设计师会员回访
业主问答
1.请问在决定设计公司之前您与多少家公司进行过比较深入的沟通?
之前有五家进行了沟通。
2.请问选中的设计公司的哪些优点或者特点是您中意的?
设计师有想法、经验丰富,我们沟通很顺畅,在设计风格,审美上双方很契合。另外在房子落地过程中,设计师非常的认真执着。最后完工的房子我们也很喜欢。
能接触到优秀的设计师,但也需要花时间筛选。
项目展示
Project Description
胡同住宅改造,“伞”下连通的居住空间
Hutong House Renovation: A Home Connected Under One Roof
这是胡同里一对年轻的夫妇的家。业主豪爽仗义,朋友多,家中聚会也多。
This is the home of a young couple living in hutong. They often host friends, filling the home with warmth and laughter.
▼庭院视角,Courtyard perspective ©朱伶俐
01.年久失修的老宅
An old house in disrepair
原有场地建筑是由四栋独立的老房子、 三个院子和一棵核桃树组成。房子是多年前盖的。墙面漏风,屋顶漏水,雨天需要拿盆子接着漏进来的雨水,墙面能看到水渍和霉印。业主找到我们想解决这些基本的居住问题,同时也提出改造后室内都要连通起来。
Originally, the site was composed of four isolated old houses, three small courtyards, and a walnut tree. Built decades ago, the houses had draughty walls, leaky roofs, and traces of water damage. The client hoped to fix these fundamental living problems and to connect the fragmented interiors after renovation.
▼主卧看向公共空间,The master bedroom looks towards the public space© 王俊
▼夹层连廊看向次卧,The mezzanine corridor leads to the secondary bedroom ©王俊
▼夹层连廊区,Mezzanine corridor area ©王俊
在这个项目中,我们除了完成业主的要求,也想探索如何在内向、注重私密性的胡同空间生出一片自由的恣意生长的天地来?
Beyond meeting these needs, we also wanted to explore how to bring a sense of lively openness into the typically inward-looking hutong home.
▼年久失修的老宅在施工,Old house is under construction © 又山建筑
02.连通的新家
Connected Living
我们将各功能房间调整为室内可顺畅穿行的连续空间,同时兼顾空间与视线的双重连通性。在完成功能梳理与优化后,我们将主卧、次卧、茶室及卫生间之外的区域,均设计为无门开敞的、相互连通的空间。连通的空间实现了业主对室内动线的需求,也让房子看起来格外宽敞、通透。
The functional rooms were reorganized into a continuous interior, allowing smooth circulation and visual connections. After sorting out and optimizing the functions, we designed all areas—except the master bedroom, secondary bedroom, tea room, and bathroom—as open, no door spaces that connect to one another. These interconnected spaces meet the homeowner’s needs for indoor circulation and also make the house appear exceptionally spacious and airy.
▼客厅,Living room © 王俊
03.感知“天”和“地”
Feeling Sky and Earth
对于多数生活在钢筋水泥的楼房里的人来说,能接触到天地的平房尤为珍贵。在这个胡同项目中,我们的核心思路是保留并强化人们对屋顶与地面的感知:一方面完整保留原建筑坡屋顶形态与朝外屋檐高度,仅依据功能需求微调局部朝向内院的屋顶坡度,最终形成连绵且富有变化的屋面轮廓 —— 这种连贯的屋顶覆盖,为原有建筑边界框定的空间注入了自由气息,而吊顶选用的厚重木色,更让屋顶的存在感得以凸显;另一方面,我们在一层与夹层地面设置差异化标高,整体呈现从外院到内院逐步抬升的趋势:一层地面的适度降低,既为夹层空间的打造创造了高度条件,又能借由高差,自然划分出相互连通的各个开敞区域,让空间边界更具层次。
For most people living in concrete apartment blocks, a single-story house that directly connects to the sky and ground is a rare luxury. In this hutong renovation, our focus was to preserve and strengthen the sense of connection between roof and ground. We retained the original pitched roof and the height of its outward eaves, adjusting only the slopes facing the courtyard to meet functional needs. The roofline remains continuous yet varied, softening the building’s rigid boundaries and adding a sense of openness. The use of dark timber for the ceiling further accentuates the roof’s weight and presence. On the ground level, we introduced subtle height variations between the floor and mezzanine, creating a gradual rise from the outer courtyard toward the inner one. Lowering the main floor provided room for the mezzanine while allowing the height difference to naturally define the open, interconnected zones—bringing depth and rhythm to the spatial experience.
▼夹层公共区看向主卧,The mezzanine public area looks towards the master bedroom © 王俊
▼主卧和公共空间的渗透,The infiltration of the master bedroom and public Spaces © 王俊
▼主卧和主卧套间的渗透,The infiltration between the master bedroom and the master bedroom suite © 王俊
▼主卧,Master bedroom © 朱伶俐
▼主卧套间,Master bedroom suite © 王俊
▼主卧套间,Master bedroom suite © qiu
▼次卧,Secondary bedroom © 王俊
▼次卧与公共空间的渗透,The infiltration between the secondary bedroom and the public space ©王俊
▼茶室,Tea room © qiu
不同的高差划分出连通起来的不同的领域。屋面就像是由一个巨大的、被展开的伞覆盖下来,整体的包裹感暗示的统一性非常的强烈。游走在里面,你能感受到空间的不同归属,又能体会到融合在一个空间的奇妙感觉。屋顶的浓烈的木色,让空间连通这件已经实现的布局更加显化,完成了对家的记忆。
Subtle floor height changes create distinct yet connected zones. The roof, like a large umbrella overhead, creates a strong sense of unity and enclosure. As you move through the space, you can feel both the individuality of each area and the gentle continuity that links them together. The warm timber ceiling emphasizes this connection, rooting the space in a sense of familiarity and evoking the memory of home.
▼从主卧窗户看公共空间,View of the public space from the master bedroom window © qiu
▼夹层公共区看向通高空间,The mezzanine public area looks towards the full-height space © 王俊
▼夹层公共区,Mezzanine public area © 王俊
▼由楼梯上到夹层处,Go up the stairs to the mezzanine © 朱伶俐
▼客厅,Living room © 王俊
▼餐厅,Restaurant © 王俊
▼被高差划分的连通空间,A connected space divided by height differences © 王俊
04.相互渗透的房子
Interwoven Spaces
胡同里的房子相对闭塞内向,我们希望这个房子向四周打开、借光。我们在所有可开窗的朝向均设置窗洞,让自然光线与流动空气能渗透进来,贯穿室内每个角落。同时,我们也注重室内空间之间的渗透性 — 公共区域之间保持 “隔而不断” 的通透感。即使是相对独立的卧室,也未与公共空间完全割裂,而是通过设计保留了功能分区的独立性,又破除了封闭感,让空间彼此穿透,整个房子更加一体。
Hutong houses are often inward-looking; here, we aimed to open the home to borrow light from its surroundings and let in air. Windows were added wherever possible, allowing daylight and breezes to flow through every corner of the interior. We also focused on the permeability between spaces: the shared areas remain visually connected — separated but not cut off. Even the more private bedrooms are not fully isolated, maintaining their function while breaking the sense of enclosure, making the whole house open and cohesive.
▼分析图,Analysis diagram ©又山建筑
▼轴测图,Axonometric ©王俊
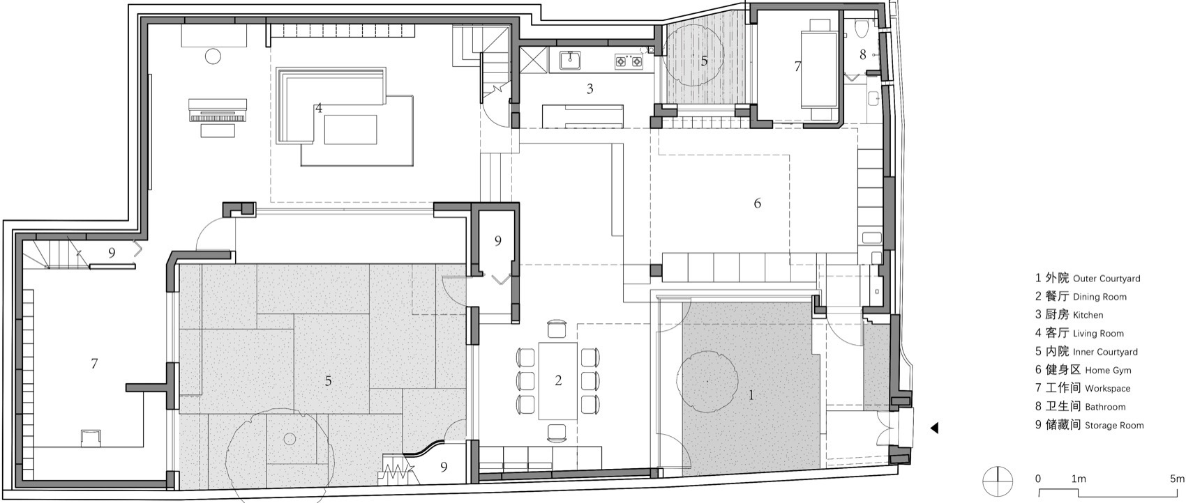
▼一层平面图,Floor plan of the first floor ©又山建筑
▼夹层平面图,Mezzanine floor plan ©又山建筑
▼屋顶平面图,Roof plan ©又山建筑
▼剖面图,Sectional view ©又山建筑
项目名称:胡同住宅改造
项目类型:住宅建筑
设计方:又山建筑
项目设计:2022
完成年份:2023
设计团队:朱伶俐、王俊、张雄迪(结构)、刘洞阳(给排水)
项目地址:北京市
建筑面积:200㎡
摄影版权:王俊、朱伶俐
客户:私人
材料:青砖、青瓦、艺术涂料、木纹吊顶板、瓷砖
Project name:Hutong House Renovation
Project type:Residential buildings
Design:Yosaan Architects
Design year:2022
Completion Year:2023
Leader designer & Team:Zhu Lingli、Wang Jun、Zhang Xiongdi、Liu Dongyang
Project location:Beijing
Gross built area:200㎡
Photo credit:Wang Jun、Zhu Lingli、qiu
Clients:Private client
Materials:Blue bricks, blue tiles, artistic coatings, wood-grain ceiling panels, ceramic tiles
客服
消息
收藏
下载
最近











































