查看完整案例

收藏

下载
本项目坐落于哈尔滨市松北区核心区域,雪花广场西北侧,与哈投大厦呈对称布局,紧邻松花江,拥有优越的地理位置与景观资源,具备得天独厚的区位竞争力。
▲对面哈投大厦高层视野
项目核心指标明确:总用地面积1.44公顷,建筑高度140米,定位为集金融办公、商业配套于一体的高端办公综合体,旨在填补区域内高端办公配套的需求空白,提升区域商务能级。
一、项目规划与设计构思
项目建筑设计以城市整体规划为出发点,重点考量项目与周边三栋既有建筑的协同性,兼顾城市天际线的丰富性与区域展示性,核心目标是打造一座与周边环境和谐共生、兼具特色与标志性的地标性建筑。
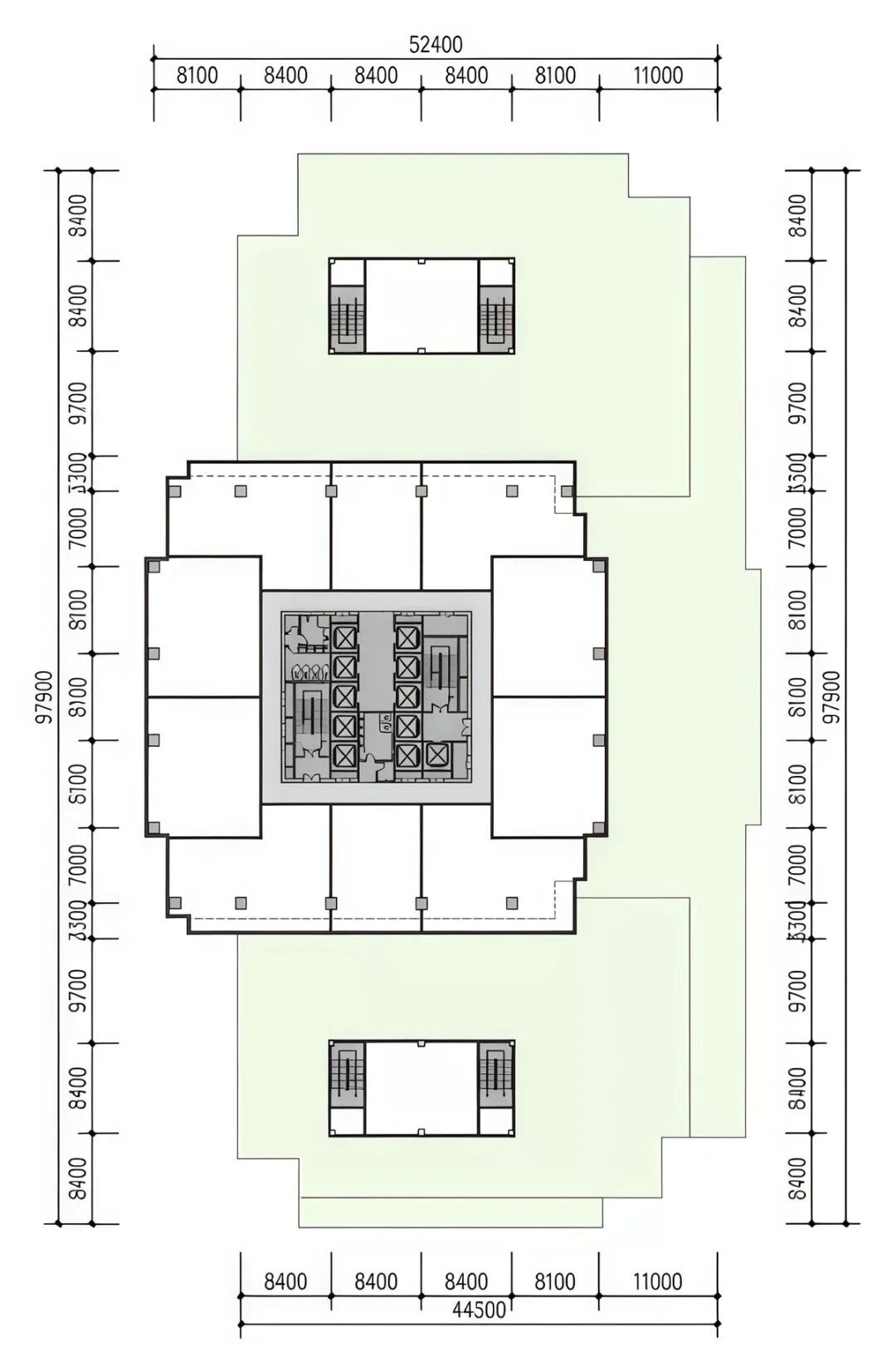
▲整体场地的规划格局
▲城市各个角度的展示面
▲建筑与已有建筑的形体关系
基于对项目用地的全面解读与分析,设计方案围绕以下核心要点展开构思,确保设计的科学性与合理性:
① 依据地块两大主要轴线布局,进行建筑形体的精细化推敲,确保建筑布局与场地条件高度适配;
② 结合人流走向及实际使用需求,设计单元式主次入口,实现人流的有序分流,提升使用便捷性;
③ 通过建筑体块的进退设计,丰富建筑形体层次,同时打造花园办公空间,提升办公舒适度与品质。
▲根据地块的两个主要轴线布局,进行形体的推敲
▲根据人流方向及使用需求,设计单元式主次入口
▲通过体块的进退,丰富建筑形体及打造花园办公
▲项目建成实景
二、设计理念、规划与核心亮点
(一)设计理念
依托项目得天独厚的区位优势,本项目致力于打造集办公配套服务、金融办公和商务休闲三大功能于一体的高端办公中心,满足金融企业及精英人群的高品质办公需求。
▲项目全景实景
建筑立面设计秉持“融合创新”原则,充分借鉴哈尔滨当地建筑文化、俄罗斯建筑元素,同时呼应周边现有建筑的立面形式,确保与整体建筑环境的协调性。在竖向元素基础上采用折线设计手法,增强建筑的高耸挺拔感;细节上通过竖向装饰柱渐变、缩小立面开窗比例等设计,兼顾建筑的实用性、节能性与形态多样性,最终打造出简洁大方、优雅精致的地标性建筑形象。
▲提取当地建筑立面元素
▲提取俄罗斯建筑立面元素
▲提取周边建筑立面元素
▲运用折线手法,立面设计求同存异
(二) 规划设计
项目整体规划以雪花广场为轴心,采用中轴对称式布局:用地西侧中部建设一栋超高层办公楼,南北两侧设置五层办公裙房;结合景观布局,合理规划不同人群的入口位置,实现功能与景观的有机结合。
▲项目整体实景鸟瞰
入口规划方面,主入口设置于用地东侧,结合前广场设计与雪花广场形成联动,强化人流互动;次入口位于用地西侧,主要服务于建筑内部使用人群,实现内外人流的有效分离。
▲项目正立面实景
▲项目主入口实景
办公裙房采用各层屋顶退台设计,配套打造屋顶花园,有效提升办公品质,为办公人员提供良好的景观视野与休闲空间,实现办公与生态的融合。
▲项目总平面图
▲车行流线 与 人行流线图
▲项目裙房实景
(三)设计亮点
现代办公建筑设计需兼顾传统办公功能与时代发展需求,本次设计围绕“高效开放、绿色生态、人文关怀”三大核心理念展开,全面提升办公品质,塑造高水平、高品质的办公形象,助力项目成为哈尔滨市全新商务地标。
▲项目顶部与立面细节
1. 高效开放
现代办公建筑设计需兼顾传统办公功能与时代发展需求,本次设计围绕“高效开放、绿色生态、人文关怀”三大核心理念展开,全面提升办公品质,塑造高水平、高品质的办公形象,助力项目成为哈尔滨市全新商务地标。
① 灵活布局:采用灵活多变的平面功能布局,结合三个交通核设计,实现办公空间的合理分区,为员工提供便捷高效、舒适宜居的办公环境,提升办公效率。
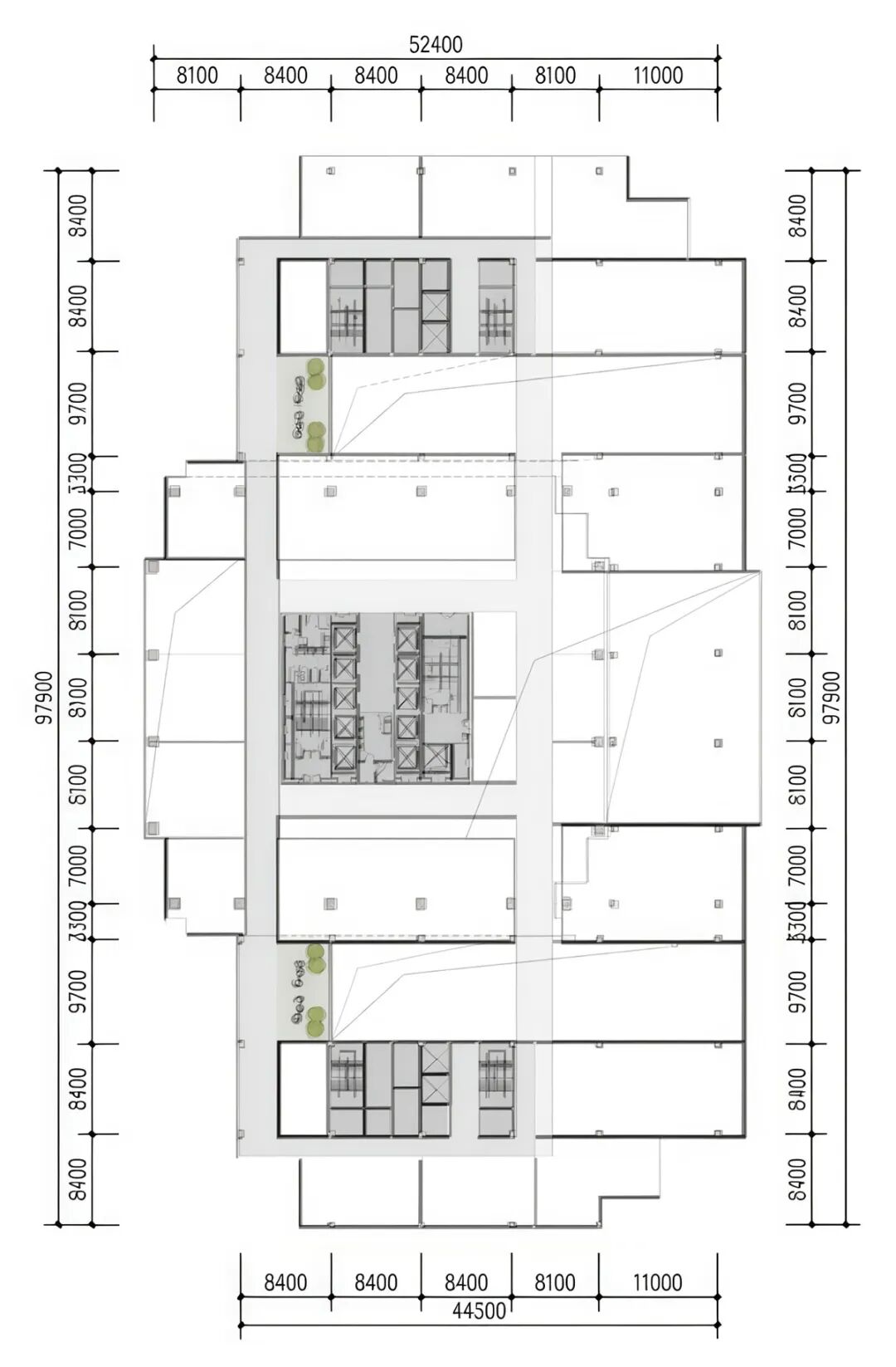
▲首层平面
▲三层平面
▲二层平面
▲六层平面
② 竖向交通:结合建筑140米的高度特点,设置两个避难层,将电梯划分为高区、低区两大系统,实现不同楼层人流的竖向分区管理,大幅提升建筑运行效率,保障人员通行便捷性。
▲整体场地的规划格局
2. 绿色生态
① LEED金级认证:本项目以LEED金级认证为绿色建筑目标,秉持健康、简约、高效的设计理念,通过太阳能利用、雨水收集利用、种植屋面、外墙节能等多项技术措施,最大限度降低建筑对自然环境的影响,实现人、建筑与自然的和谐共生;同时引入智能商务服务,进一步提升办公品质。
▲项目建成实景
② 生态办公:针对城市化进程中环境污染、工作压力增大的现状,将自然生态引入办公空间,提升办公舒适度与品质。通过在裙房每层退台空间设置屋顶花园,打造开放、休闲、生态的景观体验;设计生态中庭,将绿色景观融入建筑内部,为企业打造可持续发展的生态办公空间,为精英人士提供有氧、绿色的工作环境。
▲项目建成实景
▲退台式屋顶花园
3. 人文关怀
① 共享大堂:在楼宇之间设计通高超级大堂作为共享空间,兼具休憩、交流、活动、展览等多种功能,促进楼宇间人员的沟通与交往;挑高大堂设计以大气的空间尺度,彰显商务气质,打造与世界比肩的高端商务形象。
▲室内效果图
② 完善配套服务:聚焦人员使用需求,全面完善办公配套设计,提升整体办公品质。卫生间采用分类设计,增设行政卫生间与母婴卫生间,兼顾不同人群需求;地下一层规划健身房、影音室、棋牌室等休闲娱乐空间,公共走廊设置休息交流区、共享开放会议区等人性化功能空间,全方位提升人员使用体验,完善办公建筑的配套服务能力。
项目信息
项目名称:哈尔滨中融信托大厦项目
总用地面积:14402.77㎡
总建筑面积:94891.00㎡
项目容积率:5.0
项目绿地率:20%
建设单位:哈尔滨中融鼎新置业有限公司
方案设计单位:北京维拓时代建筑设计股份有限公司
主创建筑师:郭 讯
建筑师:李甜甜、刘少鹏
设计指导:雷 霆、靳天倚 JASON ANTHONY BALINBIN
施工图设计:哈尔滨工业大学建筑设计研究院有限公司
建筑摄影:波粒建筑摄影工作室
客服
消息
收藏
下载
最近


































