查看完整案例

收藏

下载
位于伊维萨镇南部普拉亚德恩博萨(Platja d’En Bossa)的一个包含24套公共住房的项目,该区域是一个主要以大规模旅游开发为导向的城市环境。建筑位于一块43×43米的方形地块上,地势基本平坦,海拔约5米,并相对于正南北方向旋转了45度。
Project of 24 public housing units located in Platja d’En Bossa, south of Ibiza town, an urban environment mainly dedicated to exploiting mass tourism.The building is located on a square plot of 43x43m, practically flat, about 5m above sea level and rotated 45º with respect to the cardinal axes.
▼建筑外观,方形体量围合四个庭院,
Exterior view of the square volume enclosing four courtyards © Pol Viladoms
▼建筑街景,Building street view© Pol Viladoms
基于温暖气候地区的居住建筑传统——如古典罗马住宅(domus)、伊斯兰住宅以及伊维萨传统建筑等——本项目通过塑造一个相对独立的四层体量,使建筑在其周边环境中获得一定的自主性。该体量几乎达到地块允许的最大占地与容积率。建筑围绕四个庭院组织,这些庭院在提升居住舒适度方面发挥着关键作用,并通过显著增加建筑形体系数,使所有起居室与卧室均可实现双向朝向。
▼概念生成,Concept generation © estudi08014
Based on the tradition of domestic architecture in warm climates -with references such as the classical domus, the Islamic house or the traditional Ibizan architecture- the location of the building aims at achieving a certain autonomy with respect to its immediate surroundings by defining an isolated, four-storey volume, which practically reaches the maximum occupancy and buildability of the plot.The building is organized around four courtyards that play an essential role in the comfort of the dwellings and exponentially increase its form factor so that all living rooms and bedrooms have double orientation.
▼建筑与自然,Architecture and nature © Pol Viladoms
▼立面细部,热工墙体与开口控制结合,
Façade detail with thermal mass walls and controlled openings © Pol Viladoms
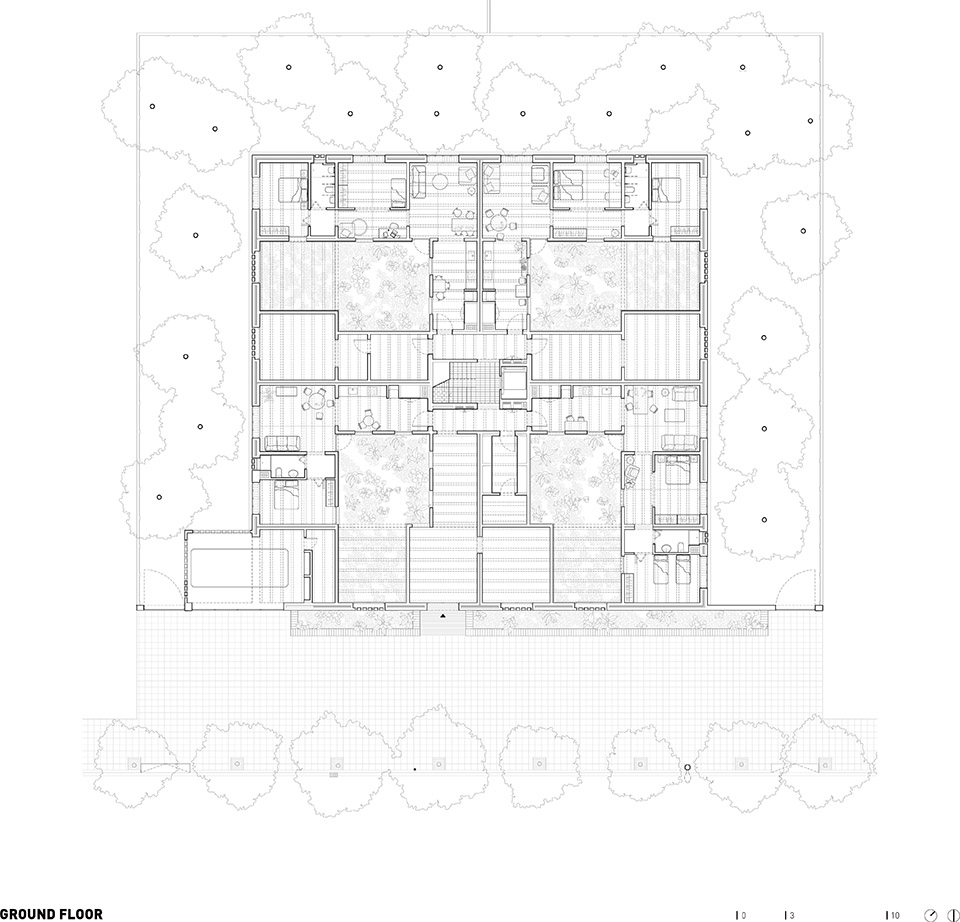
建筑结构采用承重墙体系,形成一个近似正方形比例的空间网格,实现结构体系与空间体系之间的对应关系。这些空间被组织为两道同心带状区域——外圈布置起居室、卧室与卫生间,内圈则布置厨房及四个庭院——共同围绕建筑的中心展开,中心位置设有交通核心筒,每层服务八套住宅,包括四套一居室和四套两居室。
▼轴测图,Axonometric diagram© estudi08014
The structure of the building is solved with load-bearing walls that form a mesh of spaces of approximately square proportion, establishing a correspondence between the structural and the spatial systems of the project. These spaces are organized in two concentric strips -the exterior one with the living rooms, bedrooms and bathrooms and the interior one with the kitchens and the four courtyards- that surround the center of gravity of the building, where the circulation core is located, giving access to eight apartments per floor, four one-bedroom and four two-bedroom.
▼一层入口与窗口,First floor building entrance and window© Pol Viladoms
▼面对庭院的厨房与客厅空间,
The kitchen and living room space facing the courtyard © Pol Viladoms
八套住宅以成对方式“环抱”庭院,每户均拥有两面朝向庭院的立面。这种布局定义了一种居住方式,使室内空间与室外及半室外空间之间形成紧密联系。住宅沿庭院展开的长向布局,使得一系列过渡空间得以形成,这些空间始终具备良好的自然采光和充裕的尺度,从而超越单纯的交通功能,成为可灵活使用的多功能空间。
The eight dwellings ’embrace’ the courtyards in pairs so that each has two facades facing the courtyard. This layout defines a way of inhabiting that intimately ties the interior spaces to the exterior and semi-exterior ones.The long development of the dwellings around the courtyards implies the emergence of transition spaces always with good natural lighting and generous dimensions that enable them as multipurpose spaces beyond their mere transitional role.
▼屋内过道,Corridor inside the house © Pol Viladoms
▼室内阳台,Indoor balcony © Pol Viladoms
本项目在可持续性与能源效率方面达成了多项指标,整体性能显著优于现行规范要求。首先,通过实施被动式设计策略,将不可再生一次能源消耗降低至10.7 kW/m²·年。这些策略包括:构建高热惰性的围护结构——采用填充挖方土的热工黏土墙体;实现所有房间的穿堂通风;通过对庭院加设玻璃围护系统及可开启的遮阳装置,使其转化为生物气候中庭,从而在冬季成为蓄热空间,在夏季则成为通风遮荫空间,以调节住宅内部热环境。▼生物气候中庭,bioclimatic atriums© estudi08014
▼热力剖面图,Thermodynamic section © estudi08014
The project fulfills many sustainability and energy efficiency indicators, significantly improving on the values set by current regulations. Firstly, by implementing passive design strategies that reduce non-renewable primary energy consumption to 10.7 KW/m2/year. These strategies include: the definition of an envelope of high thermal inertia with thermo-clay walls filled with earth from the excavation; the cross ventilation of all the rooms; the thermal regulation of the interior of the houses through the covering of the patios with a system of glazed enclosures and practicable solar protections that turn them into bioclimatic atriums, that is, into heat accumulators in winter and ventilated shaded areas in summer.
▼庭院绿化,改善微气候与居住环境,
Courtyard greenery improving microclimate © Pol Viladoms
这些建筑策略使得在无需安装集中供暖系统的前提下,即可在室内实现舒适的温湿度条件,从而为居住家庭显著节省能源开支。其次,通过控制建筑材料与施工技术所产生的二氧化碳排放量至438.91 kgCO₂/m²,相较于常规建造方式降低约30%。这一显著优化得益于多种材料策略:采用以生物质为燃料烧制的陶瓷材料;在梁、庭院结构及门窗中使用木材;立面保温采用再生棉;屋面保温则使用干燥的海神草(posidonia),同时也延续了当地传统建筑的古老做法。
▼材料分析图,Material analysis© estudi08014
These architectural strategies make it possible to achieve comfortable conditions of humidity and temperature inside the dwellings without installing a centralized heating system, which means significant savings in energy bills for the families living in the building. Secondly, by limiting to 438.91 kgCO2/m2 the CO2 emissions generated by the materials and techniques used for the building construction, a reduction of approximately 30% over the ones generated with conventional methods. This remarkable improvement was made possible by using ceramics manufactured in kilns with biomass; wood for the beams, the structure of the atriums, and carpentry; recycled cotton for the facade insulation; and dried posidonia for the roof insulation, rescuing an ancestral tradition of local architecture in doing so.
▼屋顶空间,采用自然材料进行保温处理,
Roofscape with natural insulation materials © Pol Viladoms
▼楼顶室内平台,Rooftop indoor platform© Pol Viladoms
最后,需要特别强调的是,庭院、场地环境、屋顶及种植区域中大量绿化的运用,有效缓解了城市热岛效应,并营造出更加宜人的居住环境。同时,通过选择低需水量的植物种类,并利用从屋顶收集并储存在建筑前方地下蓄水池中的雨水进行灌溉,确保了在伊维萨干旱气候条件下植被系统的可持续性。
Finally, it is crucial to highlight the extensive use of greenery in the courtyards, urbanization, roofs and planters to mitigate the heat island effect and create more pleasant living conditions. Furthermore, carefully selected plant species with low water requirements and reusing rainwater collected from the roof (stored in an underground cistern in front of the building) for irrigation guarantees vegetation sustainability in Ibiza’s arid climate.
▼楼顶室内平台,Rooftop Outdoor platform© Pol Viladoms
▼总平面图,Site plan © estudi08014
▼项目区位图,location plan © estudi08014
▼一层平面图,First level floor plan © estudi08014
▼标准层平面图,Standard floor plan © estudi08014
▼第三层平面图,3Fplan © estudi08014
▼1B,2B平面图,3Fplan © estudi08014
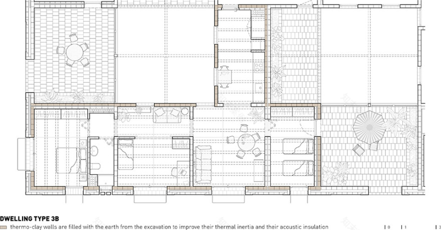
▼3B平面图,3Fplan © estudi08014
▼剖面图,Section© estudi08014
▼细节大样图,Detail © estudi08014
Location:Platja d’en Bossa, Eivissa
Project: 2018-19
Construction:2020-22
Built surface: 2.596,3m2
Authors: 08014 arquitectura (Adrià Guardiet, Sandra Torres)
Collaborators project phase:
Sustainability:Societat Orgànica
Acoustics:Àurea Acústica
Structure:Masala Consultors
Budget control:Arquitectura técnica Sequoia
Engineering:Quadrifoli
Agronomy:Roser Vives
Collaborators construction phase:
Building coordination: 08014 arquitectura (Adrià Guardiet, Sandra Torres)
Construction management:José Luís Velilla
Installations management:Javier Colomar
Structure:Xavier Gimferrer
Photographer:Pol Viladoms
Contractor company:UTE Serrano Aznar Obras Públicas, SLU – Construcciones y Desarrollos Tudmir, SL
Client:IBAVI, Institut Balear de l’Habitatge
客服
消息
收藏
下载
最近















































