查看完整案例

收藏

下载
Shabu Shabu是河内的一家日式火锅店,致力于成为越南最具标志性的涮肉餐厅。该餐厅以正宗和匠心为特色,提供全新的火锅体验,打造独特的用餐之旅,并提供周到的顶级服务。
实验室设计了品牌标识和空间体验,以表达关怀、匠心以及对日本餐饮的当代诠释。火锅升腾的蒸汽成为核心设计语言,被转化为各种形式和材料,贯穿整个空间。
渐变式木条板、过渡性表面处理、半透明材料和柔和灯光营造出一种轻盈动感,与蒸汽缓缓消散相呼应,营造出更加舒适的用餐氛围。
空间设计还借鉴了日式建筑元素,如障子门和圆形窗户。这些元素被精心提炼并以更轻盈、更现代的方式重新诠释,营造出一个既新颖又根植于传统的空间。
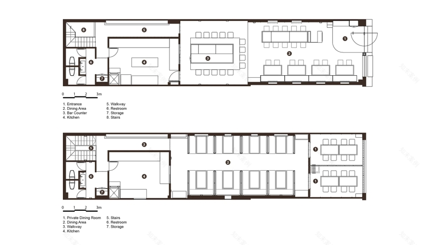
除了用餐,涮涮锅还被设计成一个增进交流的场所。座位经过精心布置,以鼓励互动。除了为小团体准备的桌子外,餐厅还提供公用餐桌、为独自用餐者准备的酒吧座位、为大型团体提供的灵活座位安排以及私人包间,营造出一个多元化且具有社交吸引力的环境。
玻璃纤维板被引入,作为传统日本障子门中宣纸的现代替代品。它们被层压在丙烯酸材料上,用于墙面覆盖和隔断,成为空间的一大特色。
Interior Architecture: Nam Hoai, Gia Tu
Draftsman: Nam Hoai, Thuy Linh
Spatial Support: Hung Le
Brand Design: Xuan Phan, Thinh Tran, Rosie Mai, Phuc Hy
Strategic Partnership: Anh Nguyen
Contractor: ABC Architecture & Built
Photographer: Wuyhoang Studio
客服
消息
收藏
下载
最近


























