查看完整案例

收藏

下载
原有建筑外壳得以保留;一个轻质内核承载了餐厅的功能。该内核被构想为一个完全由木材建造的独立模块,虽不追求在现场直接实现可逆性,但设计上考虑未来可在不损害历史外壳的前提下进行拆卸。服务空间、仓储和后厨区域都被整合进这个内核中,从而保持了跨度的清晰和屋架的可读性。
The original envelope remains; a lightweight core delivers the restaurant programme. Conceived as an independent module built entirely in timber, it is not intended to be immediately reversible in situ, but is designed for future demounting without harm to the historic shell. Services, storage and back-of-house are consolidated within the insert to keep the span clear and the truss legible.
▼项目鸟瞰,Aerial-view of the project © Mathias Sæther
▼周边环境,Surrounding environment © Mathias Sæther
▼建筑外观,Exterior of the building © Mathias Sæther
▼外观细部,Exterior details © Mathias Sæther
仅添加必要之物
Adding only what is necessary
景观中的建筑轮廓未变。开口经过精确校准而非扩大;新建部分作为一个次要层次呈现,采用了干作业的、不显眼的固定方式。所有新建部分均为木结构。
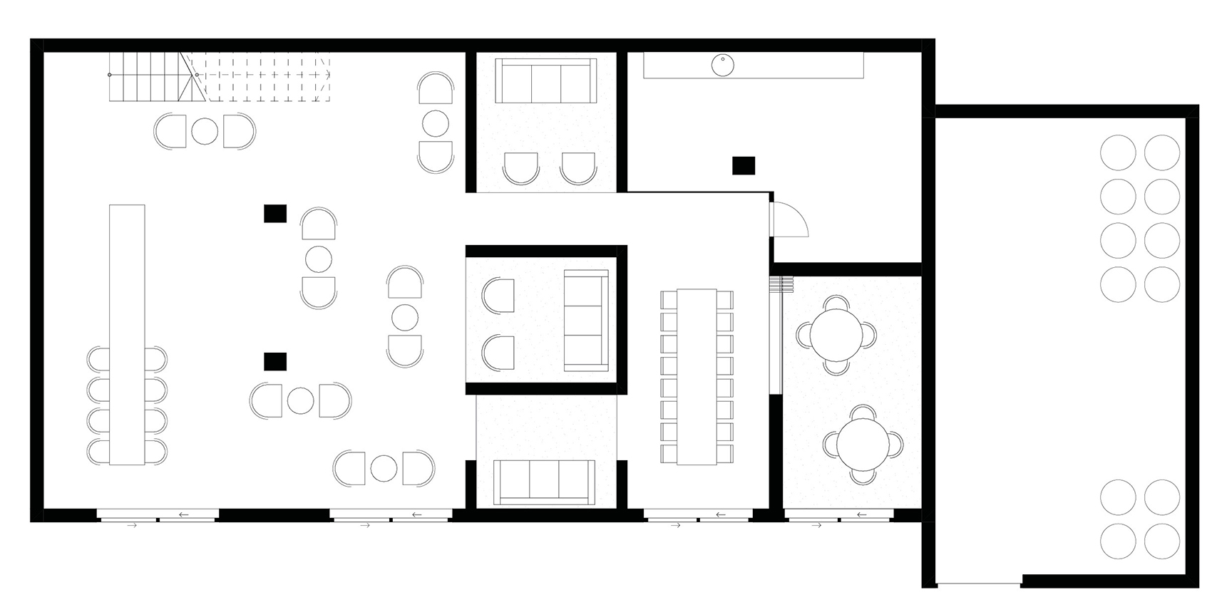
▼爆炸图,Exploration diagram © OFFICE INN
The silhouette in the landscape is unchanged. Openings are calibrated rather than enlarged; new work reads as a secondary layer with dry, discreet fixings. All new construction is timber.
▼用餐区,Dining area © Mathias Sæther
▼木墙,Timber wall © Mathias Sæther
▼通往露台的门,Door to terrce © Mathias Sæther
▼露台风景,Landscape View © Mathias Sæther
细节与延续性
Detail and continuity
新铺设的地板依据原有木板不规则的宽度进行铺排,创造出一个新旧交错、连绵不断的界面。门槛和通风口被处理成细线,将视觉重点留给裸露的结构和屋架下的空间韵律。
The new floor is set out to the irregular widths of the existing planks, creating a continuous field where old and new interlock. Thresholds and vents are resolved as fine lines, keeping the emphasis on the exposed structure and spatial rhythm under the truss.
▼包厢,Private room © Mathias Sæther
▼餐桌细部,Details © Mathias Sæther
经济的手段
Economy of means
对现有结构的再利用降低了隐含碳排放;可拆卸的内核、有限的湿作业以及分阶段施工,在保持建筑特质的同时,也使维护工作与当地的能力相适应。
▼结构图,Structure diagram © Mathias Sæther
Re-use of the existing fabric reduces embodied impact; the demountable insert, limited wet trades and staged works preserve identity while aligning maintenance with local capacity.
▼细节,Details © Mathias Sæther
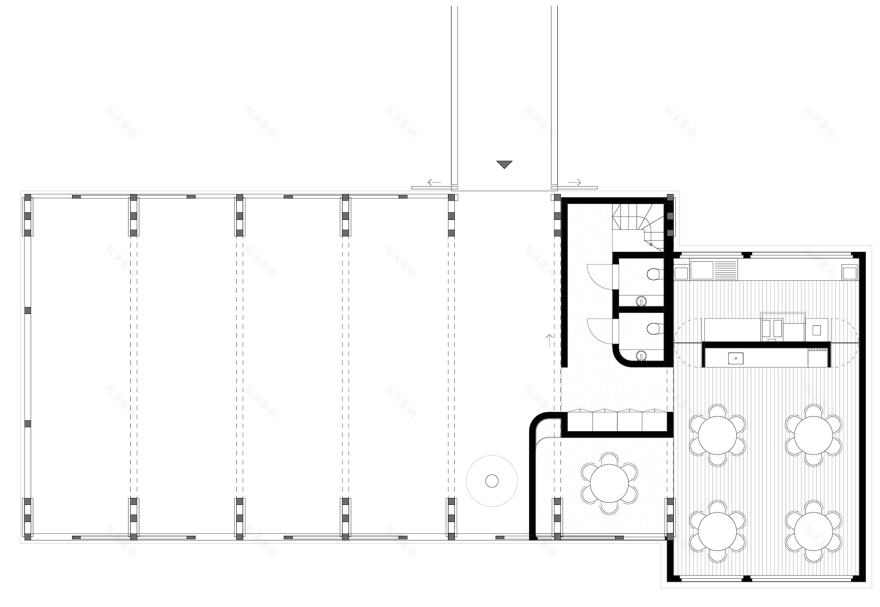
▼场地图,Site plan © OFFICE INAINN
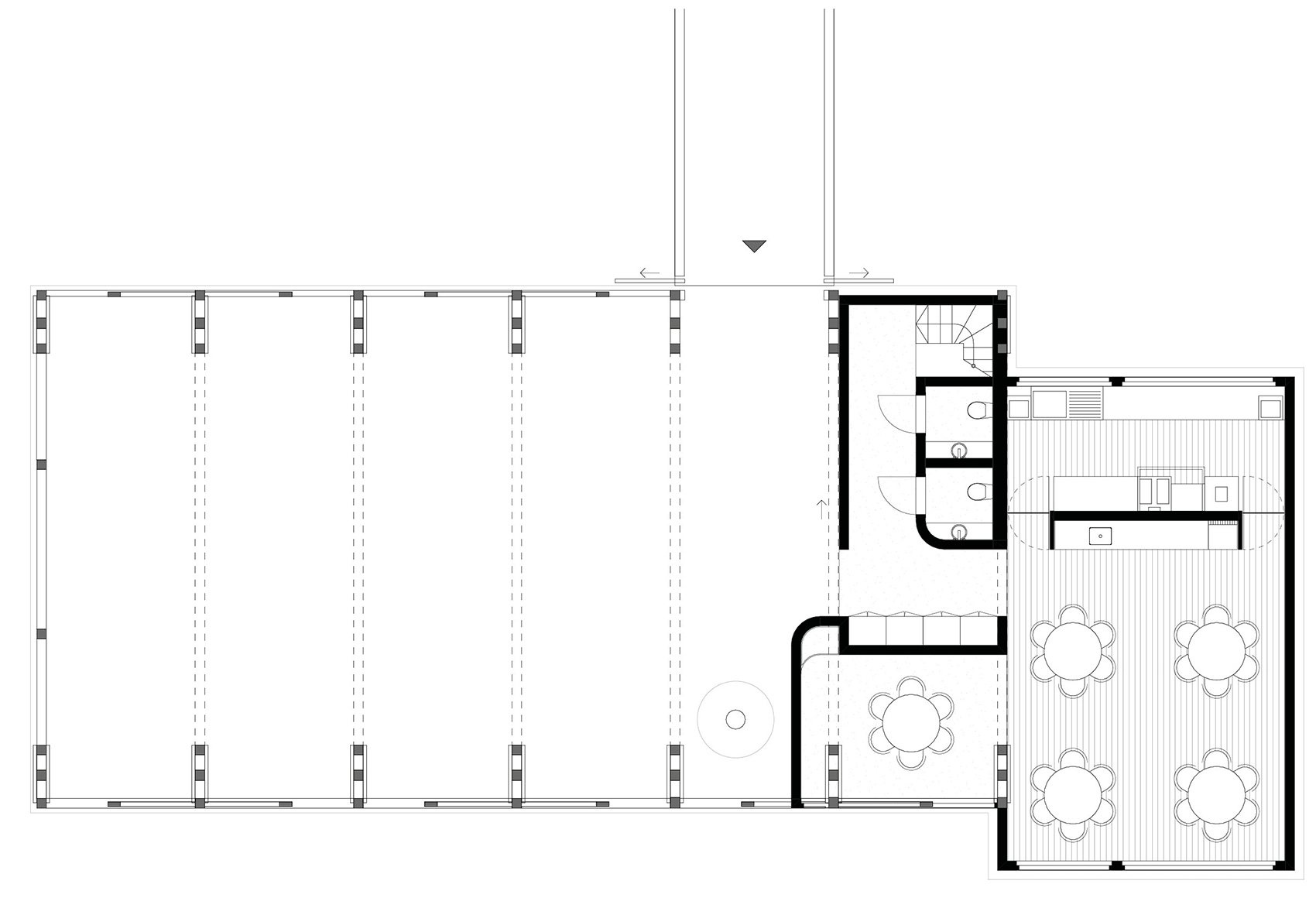
▼平面图,Site plan © OFFICE INAINN
Key Project Details:
Project Name: 21-24 Nikkakjøkken restaurant
Location: Valldal, Norway
Completion Date: August 2025
Project Type: restaurant
Plot Area: 800m2
Building Area: 127m2
Altitude: 148 meters above sea level
Architect: OFFICE INAINN
Client: hidden
team: Maksymilian Sawicki, Hanna Helena Sawicka
Creative Direction & Press release: Vision Crafts
客服
消息
收藏
下载
最近





























