查看完整案例

收藏

下载

翻译
Architects:depaolidefranceschibaldan architetti
Area:300m²
Year:2026
Photographs:Marco Cappelletti
Manufacturers:Brionvega,Cassina,Davide Groppi,Flos,Skipper,USM Haller
Category:Houses
Structure Project:Ing. Francesco Armenia
City:Noto
Country:Italy
Text description provided by the architects. Set within the rural landscape of the Val di Noto, Villa Modda derives its name from a spontaneous native plant, emblematic of the project's deep connection to the Mediterranean countryside.
The gently sloping, terraced site originally hosted a group of abandoned rural structures — stables, tool shelters, and storage buildings — now reimagined through a process of restoration and expansion. The intervention forms part of a broader strategy for the recovery of agricultural ruins, grounded in the use of natural materials, bioclimatic principles, and traditional construction techniques reinterpreted through a contemporary lens.
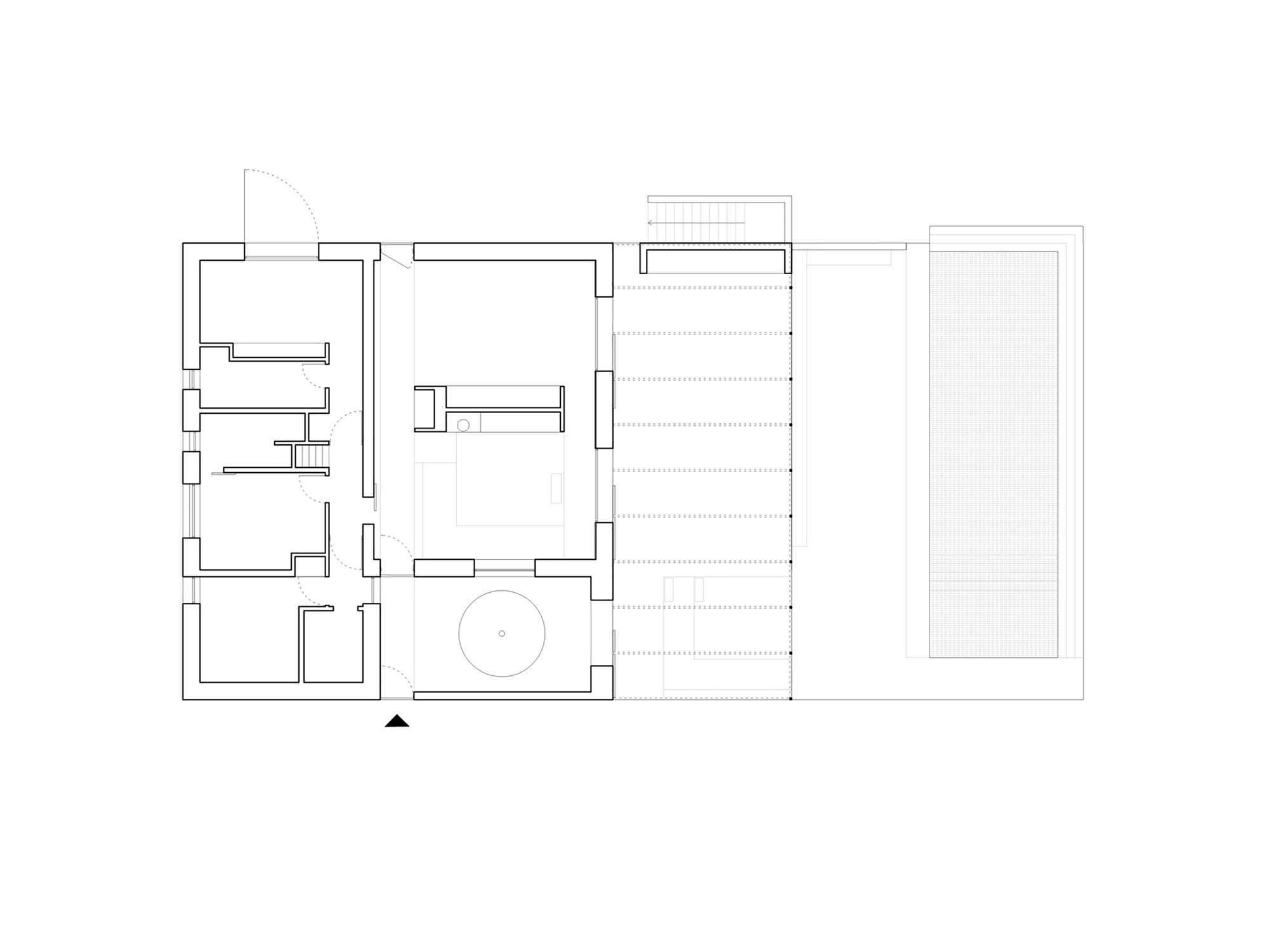
The existing building — a compact stone volume with a double-pitched roof clad in traditional clay tiles — has been carefully preserved and enveloped by a new extension. Together, old and new define a rectangular plan articulated into longitudinal bands, establishing a clear spatial hierarchy.
From the original circular drying structure, a pedestrian axis unfolds and traverses the entire villa, acting as an ordering spine. It separates the living spaces from the more private areas containing bedrooms and service rooms, and culminates in an open-air living space beneath the dense canopy of a mature carob tree, reinforcing the dialogue between architecture and landscape.
The kitchen and living area, positioned alongside the entrance patio within the extension, open westward onto a generous pergola and extend into a sequence of terraced outdoor spaces that follow the natural topography of the site. At the core of the living area stands a sculptural, multifunctional volume clad in intensely glazed yellow terracotta tiles. Conceived as both an architectural and functional device, this element integrates climate-control systems, storage, and kitchen cabinetry, while accommodating a large fireplace and a lowered island dedicated to rest and conviviality.
Material and construction choices strengthen the project's integration with its context. The restored stone building is clad, as in its original state, in finely cut blocks of saw-finished Noto stone. Slight misalignments in the laying pattern and the stone's rough texture generate subtle variations of light and shadow across the façades, while controlled discontinuities between the blocks allow daylight to filter into the interior.
The geometry of the stonework engages in dialogue with custom-designed iron grilles which, together with darkened metal window frames, regulate light, views, and natural ventilation. This layered envelope enables the villa to behave as a responsive organism, capable of opening or closing itself according to seasonal and climatic conditions.
The new extension is finished in a lime-based brown cocciopesto, enriched with natural pigments that echo the tones of the surrounding soil and agricultural landscape. Interior floors in cocciopesto pastellone resonate chromatically with Noto stone, while exterior walkways are realized in cocciopesto battuto with larger aggregates and a sandblasted finish. Within this earthy palette, the swimming pool — lined with green ceramic mosaic tiles — merges seamlessly with the colors and undulating profile of the landscape.
Project gallery
客服
消息
收藏
下载
最近















































