查看完整案例

收藏

下载
Emphasizing the metaphor and narrative of design, Long Flat is a Barcelona apartment renovation by MIEL Arquitectos for a Boston family with Shanghai roots, weaving the family’s multicultural background with the Eixample neighborhood’s late 19th-century heritage. The project revives a former office space, preserving only a century-old sink, Nolla mosaic and plaster moldings—the silent witnesses of the area’s bourgeois splendor. Every design detail is a dialogue between the family’s life vision and the site’s historical context, creating a home that spans time and cultures.
强调设计的隐喻与叙事性,Long Flat 是 MIEL Arquitectos 为一个祖籍上海的波士顿家庭打造的巴塞罗那公寓改造项目,将家族的多元文化背景与埃桑普勒区 19 世纪末的地域遗产交织相融。项目改造前为办公空间,仅保留了百年水槽、诺拉马赛克与石膏线脚 —— 这片区域资产阶级荣光的沉默见证者。每一处设计细节,都是家族生活愿景与场地历史语境的对话,打造出跨时空、融文化的理想居所。
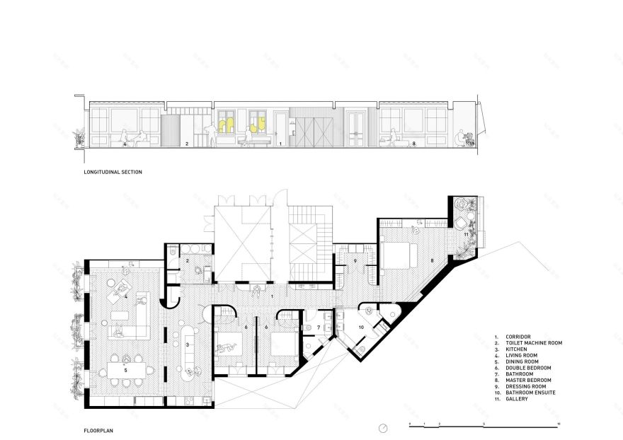
The apartment’s core narrative lies in the Long, a benevolent Chinese dragon-inspired spatial element that resolves the dichotomy between the bustling Rambla de Catalunya and the quiet inner courtyard. Gliding between rooms, it dissolves load-bearing wall structures, conceals installations and forms functional spaces like closets and benches. Its sinuous forms are clad in oak slats, clay paintings and La Bisbal tiles, softening the contrast between the vibrant social area facing the boulevard and the intimate bedroom zone toward the courtyard, acting as a gentle bond between two worlds.
公寓的核心叙事,是以中国祥龙为灵感的空间元素 “Long”,它消解了繁华的加泰罗尼亚兰布拉大道与静谧的内部庭院之间的二元对立。“Long” 穿梭于各个房间,消解承重墙的刻板结构,隐藏设备管线,化作壁橱、长凳等功能空间。其蜿蜒的形态以橡木板、陶土画和拉比斯瓦尔瓷砖饰面,柔化了朝大道的活力社交区与向庭院的私密休息区的反差,成为联结两个世界的温柔纽带。
Spatial layout is meticulously planned to balance function and emotion, adapting to the family’s dual needs of occasional escape and future retirement. The social area of living and dining room faces the lively Rambla, embracing the city’s dynamic energy, while the ensuite bedroom and private zones face the tranquil courtyard, offering a peaceful haven for rest. Between them are two children’s bedrooms, a shared bathroom and a hidden laundry room, with the kitchen connected to the living-dining room via three arched openings, breaking spatial barriers and fostering family interaction.
空间布局经精心规划,平衡功能与情感,适配家族偶尔旅居、未来退休的双重需求。起居餐饮的社交区朝向热闹的兰布拉大道,拥揽城市的鲜活活力;套卧及私密区域面朝静谧庭院,为休憩打造安宁港湾。二者之间设两间儿童房、一间公用浴室与隐藏的洗衣房,厨房则通过三道拱形开口与起居区相连,打破空间壁垒,让家人的互动与交流自然发生。
The 4-meter central kitchen island is a perfect fusion of functionality and emotional connection, serving as both a practical space for culinary preparations and a warm spot for evening cocktail conversations and family gatherings. Rescued historical elements are reborn with new uses: the Macael marble sink presides over the toilet, the Nolla mosaic is transformed into nightstands, the old conference table becomes a celebration table, and original doors are relocated to new rooms. This revival of old pieces infuses the space with historical warmth and unique memories.
4 米长的厨房中岛,是功能与情感联结的完美融合,既作为烹饪备餐的实用空间,也是夜晚小酌畅谈、家人相聚的温馨角落。被拯救的历史元素在新的用途中重获新生:马卡埃尔大理石水槽成为卫生间的视觉核心,诺拉马赛克化作床头柜,老旧会议桌变身节庆餐桌,原始房门也被重新安置在新的房间。老物件的再生,为空间注入了历史的温度与独有的记忆。
Handcrafted custom pieces blend seamlessly with restored heritage elements, forming the space’s unique aesthetic. Specially designed stained-glass windows tint the entrance hall with soft hues, creating a placid welcome; the cylindrical shower and oak-panelled bar cabinet showcase exquisite artisanal craftsmanship. The material palette features warm browns, ochres and whites, paired with natural wood, clay and ceramic tiles, creating a timeless and cozy atmosphere that stands the test of time, waiting for the family to settle in and live daily life to the fullest.
手工定制的艺术构件与修复的老物件浑然相融,构成空间独有的美学质感。定制彩窗为玄关晕染出柔和的色彩,营造出静谧的入户氛围;圆柱形淋浴间、橡木饰面的酒柜,尽显精湛的手工工艺。材质色调以温暖的棕、赭、白为主,搭配天然木材、陶土与陶瓷砖,打造出经得住时光考验的温润氛围,静候家族入住,开启日常的美好。
The humanistic thickness of Long Flat is rooted in the integration of the family’s multicultural experience and architectural design. The Chinese dragon metaphor carries the family’s Shanghai roots, while the preservation and revival of Barcelona’s historical elements honor the local context. For this family with cross-continental ties, this apartment is more than a living space—it is a spiritual anchor that connects their past and future, their hometown and the adopted city, letting multicultural memories and local history interweave in every corner of the home.
Long Flat 的人文厚度,根植于家族多元文化经历与建筑设计的深度融合。祥龙的隐喻承载着家族的上海根脉,对巴塞罗那历史元素的保留与再生,是对地域语境的致敬。对于这个跨洲联结的家族而言,这处公寓不仅是居住空间,更是联结过往与未来、故乡与异乡的精神锚点,让多元文化的记忆与本土历史,在居所的每个角落交织共生。
The design of Long Flat achieves a perfect balance between innovation and inheritance, breaking the original rigid office structure while cherishing the neighborhood’s historical traces. Every spatial design, material selection and element reuse is centered on the family’s life needs and emotional sustenance, making the apartment a warm home that not only adapts to occasional getaways but also awaits the family’s retirement years, truly realizing the design concept of standing the test of time.
Long Flat 的设计实现了创新与传承的完美平衡,打破原有办公空间的刻板结构,又珍视街区的历史痕迹。每一处空间设计、材质选择、元素再造,都围绕家族的生活需求与情感寄托展开,让公寓成为既适配偶尔旅居,又静待退休岁月的温暖居所,真正实现了 “经得住时光考验” 的设计初衷。
平面图-三维图
编辑:
夏边际
撰文:豆宝宝
校改:吴一仁
编排:布忠耀
客服
消息
收藏
下载
最近



























