查看完整案例

收藏

下载
©404NF STUDIO 水发科创中心以“水善润石开”的设计理念,探索以水之力勾勒建筑之美,打造矗立在天府新区的、独属于公园城市的特色建筑。
▲项目鸟瞰图© 404NF STUDIO
▲从天府公园往项目远眺© 404NF STUDIO
PART.1
水善润石开
横亘两山,宛如山河之间的巨笔挥毫。千万水坝以雄浑而坚定的姿态,传达出国之重器的坚实力量,彰显着海纳百川、兼收并蓄的企业胸襟。这既是对城市设计的巧妙回应,也是企业文化的建筑表达。
▲北面透视:国之重器的坚实力量© 404NF STUDIO
▲南面透视:雄浑坚定的企业姿态© 404NF STUDIO
“一横一纵”的空间构图使建筑同时朝向CBD人字绿廊和城市公园,配合“偏置核心筒”的操作使得被服务空间(工作空间)获得独立性,实现内部空间270度的连续景观面,满足使用者对视线观景的需求,同时解决“核心筒居中布局”导致的视线遮挡和采光通风等问题,使得建筑与城市环境构成有机整体。
▲“一横一竖”的空间构图(填充区域为核心筒)©中建西南院
▲“偏置核心筒”的空间操作©中建西南院
▲“一横一竖”的空间构图© 404NF STUDIO
▲“偏置核心筒”的空间操作© 404NF STUDIO
三个巨石般的体量构成了稳定有力的整体,体块的错动打破了城市界面单调、刻板的印象,呈现出“错乱有致”的空间节奏。形体的错动进退自然形成了半室外区域和屋顶露台,设计自此符合整体空间生成逻辑,是对“公园城市”的建筑范式的积极探索。
▲底层区域的架空空间© 404NF STUDIO
▲底层区域的架空空间© 404NF STUDIO
PART.2。登高望水长
项目使用方包括相关设计机构,开放交流是这一类企业的空间特质,将核心筒偏置,让内部空间尽量完整方正,可分可合,便于塑造开放包容的共享交流空间。
▲共享开放的通高中庭© 404NF STUDIO
“登高望水长”指的是将阶梯状的通高中庭植入建筑内部,作为共享交流空间,打破传统内部空间互相隔离的状态,加强各部门之间的互通互联。拾级而上,逐层升高,视野随之愈发开阔,目光所及,水天一色。
▲通高中庭的剖面示意©中建西南院
PART.3。凭窗览天府
建筑朝向东侧采用如水般通透的巨大窗口,使得窗景相融,在室内就可一窥公园城市看山见水的城市形态,凭窗远望,宛如高山流水之景。北望城市绿廊生态景观,东面纵观国会中心、西部博览城等大型城市地标,南面则拥有全景自然采光,是一个独特的空中城市会客厅。
▲东面纵观国会中心© 404NF STUDIO
▲北望城市绿廊生态景观© 404NF STUDIO
▲屋顶花园的绿色生态© 404NF STUDIO
▲登高望水长,凭窗览天府© 404NF STUDIO
PART.4。
力形一体化
山有水则草木润,水利万物而不争。秉承“和而不同,刚柔并济”的美学理念,核心筒立面以厚重沉稳的中国黑花岗岩,传达往下扎根的“重力”,如山间磐石,根基深植,呈现企业的坚实形象。主要办公空间采用立面宽幅的横向长窗,玻璃的通透传达流水至柔的叙事意象。
▲和而不同,刚柔并济© 404NF STUDIO
▲国之大者的坚实形象© 404NF STUDIO
▲立面宽幅的横向长窗© 404NF STUDIO
▲横向和竖向的共存© 404NF STUDIO
大厅顶部采用双向正交布置的桁架体系,构成清晰有力的结构网格,不仅承担屋面荷载,亦系空间秩序的核心骨架。桁架在端部沿立面方向延伸,形成Z形的外露构件,同时作为入口雨棚的支撑结构,实现形式与功能的高度整合。全玻幕墙系统中,玻璃肋的模数严格对位钢桁架的结构单元,形成“结构即立面”的一体化设计逻辑,直观呈现结构体系的内在逻辑。
▲清晰有力的结构网格© 404NF STUDIO
▲四季大厅© 404NF STUDIO
云上连桥跨越两幢塔楼,犹如飞虹凌波,为使用者提供身处自然的休闲空间。鱼腹形通过截面变化契合结构受力,实现形态和力流的高度统一。连桥顶部设置多个光井,天光云影,四时流转,斑驳光影倾泻而下。
▲漫步云上连桥© 404NF STUDIO
▲鱼腹状连桥© 404NF STUDIO
PART.5。在地性嵌入
室内空间,采用横向宽幅的长景窗,层间出挑的珍珠白花岗岩,上下叠合,朝上反宇向阳,朝下转译为四川民居的屋檐意象。
▲四川民居的屋檐意象© 404NF STUDIO
▲园林的现代转译© 404NF STUDIO
水幕礼堂,以“水”为意象,采用彩釉玻璃模拟自然水流变化特征,旨在呼应水利总部的企业属性。幕墙底部设计可开启的内倒窗,兼顾自然通风与立面完整性。
▲水流意向的彩釉玻璃© 404NF STUDIO
▲自然与人工的融合© 404NF STUDIO
空中庭院,顶部立面采用U型玻璃作为围护界面,其半透明特性有效遮挡杂乱的屋顶设备,同时柔和漫射自然光线,营造出静谧宜人的户外环境。
▲空中庭院的U玻© 404NF STUDIO
光井与连桥,可俯瞰城市景致,感知光影的变化,使得身处高处仍能感知地面生活的律动,与飞鸟、云雾和草木共同勾勒出公园城市与自然共生的和谐关系。
▲云上连桥© 404NF STUDIO
水发科创中心是公园城市建筑范式的一次创新实践。最大化公园景观视线作为核心空间逻辑,以力形一体的结构美学和抽象在地转译,塑造出公园城市语境下建筑开放、生态与人本的新形态。
项目图纸
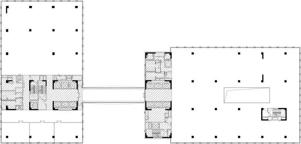
▲首层平面图©中建西南院
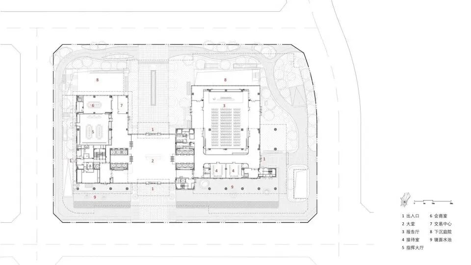
▲七层平面图©中建西南院
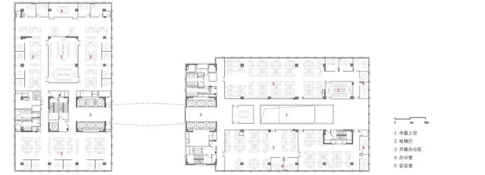
▲十一层平面图©中建西南院
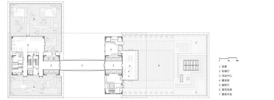
▲十二层平面图©中建西南院
▲北立面图©中建西南院
▲南立面图©中建西南院
项目信息
项目名称:水发科创中心
项目地点:成都市天府新区总部商务区
设计/竣工:2021年9月——2025年6月
用地面积:13825.76平方米
建筑面积:78080.39平方米
设计单位:中国建筑西南设计研究院有限公司
主持建筑师:肖波
建筑专业:陈露、傅悦、蔡青菲、孙启祥、李枭幸、张远雪、何天洪、黄翔宇
结构专业:杨文、邱添、肖克艰、何佳骏、曾懋睿、张蜀泸、李浩然、黄金超、储召文
给排水专业:刘帅、杨久洲、林风、易达明、谭古今、余维滨、葛磊、闫欣月
暖通专业:魏明华、文玲、刘伯万、唐瑞
电气专业:李慧、张滔、何乐婷、刘冲、赵子文、张家平
智能化专业:关怀、孟庆宇
幕墙专业:莫红梅、钟志强、曹一洋
景观专业:尹昕、宋梦田、汪永源
装饰专业:熊力、王世博、王思聪、成文博、黎安秀
建筑技术:王皎 建筑经济:彭小芳、余杰、刘明宇、杨鑫、张潇潇、魏佑任、谌勇
所有照片版权:404NF STUDIO
所有图片版权:中建西南院
客服
消息
收藏
下载
最近










































