查看完整案例

收藏

下载

翻译
Architects:WORKac
Area:3200ft²
Year:2025
Photographs:Bruce Damonte
Category:Houses
Principals:Amale Andraos, Dan Wood
Project Architects:Kristina Dittrich, Matt Voss
Team:Reuben Cheeks, Din Din, Ryan Fagrie, Jenna Hussain, Madha Nawal,Smiley Scott, Rondela Spooner, Henry Wotowicz, Men Yushan
Engineering & Consulting > Structural:Augeri Engineering
Engineering & Consulting > Mep:Jordan Goldman, Zero Energy Design
General Contractor:Alan Hill, Eze Bongo R&R
City:Hopkinton
Country:United States
Text description provided by the architects. In the wake of the pandemic — a moment that prompted many families to reconsider how and where they live — WORKac's Riverhouse offers a deeply personal interpretation of contemporary domestic architecture. Designed by the studio's founders, Amale Andraos and Dan Wood, for themselves and their two children, the house reflects a broader cultural shift toward smaller footprints, ecological responsibility, and a more deliberate relationship with place. At once a family home and a lived-in architectural experiment, Riverhouse balances environmental intelligence with spatial invention and an unmistakable sense of character.
Set within a protected river corridor in rural Rhode Island, not far from where Wood grew up, the project replaces a modest and deteriorating retreat that had long served as a summer gathering place for friends and colleagues. Over the years, the site hosted informal architecture camps — communal events where architects and their families came together to exchange ideas and reflect on the discipline in an atmosphere of openness and conversation. When the pandemic transformed the house into the family's full-time residence, its physical limitations became increasingly evident. The existing structure, already weathered, proved impossible to salvage, prompting the decision to build anew while maintaining the spirit of the original place.
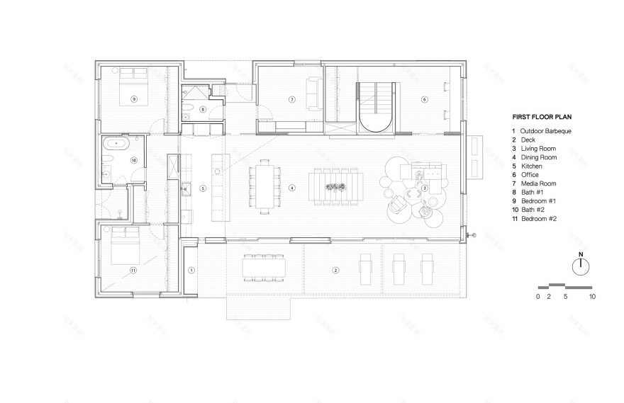
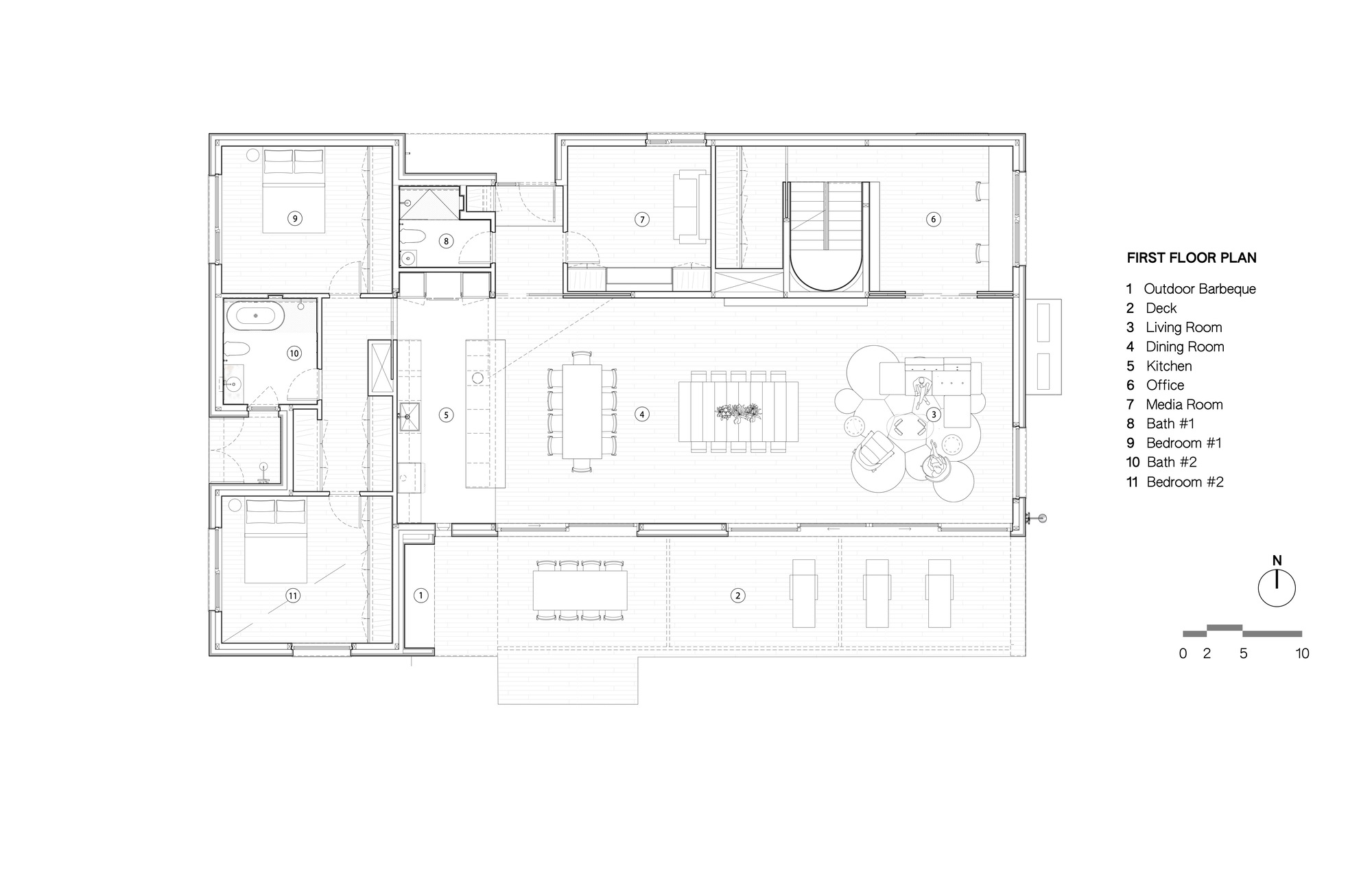
The resulting house is compact yet ambitious. Elevated to comply with floodplain regulations, the building sits lightly on the land while meeting the demanding energy requirements of Passive House design. Triple-glazed windows, rooftop photovoltaic panels with battery storage, and 14-inch insulated walls enable the house to operate year-round on electricity alone, dramatically reducing its environmental footprint.
Yet Riverhouse is far from a purely technical exercise in performance. Its distinctive form — defined by a diagonally running ridgeline and a vivid blue metal roof that folds down across portions of the façade — produces a dynamic interior landscape in which ceiling heights rise and fall, culminating in a double-height living space that connects the family's daily life to views of the surrounding river and woodland.
Material choices further reinforce the house's tactile and visual richness. Thermally modified ash clads the exterior, handmade Lebanese tiles introduce bursts of color and pattern, and unfinished plywood surfaces lend warmth to selected interior volumes. Carefully placed windows encourage cross ventilation and frame shifting views of the landscape, while integrated storage and a compact rectangular plan maximize spatial efficiency.
Riverhouse also operates as a collaborative platform. A custom dining table by MOS Architects anchors the central gathering space, blurring the boundary between furniture and architecture. Petra Blaisse designed a dramatic curtain that spans the living room, modulating light, privacy, and seasonal atmosphere, while artist Austėja Walter created the linen curtains for the bedrooms. Collaborating with Amale's friend Karim Chaya in their native Lebanon, they incorporated tiles featuring traditional Lebanese patterns. In the same collaborative spirit, many of the fixtures — sourced from Duravit, FSB Hardware, Lutron, and Fenêtres MQ — were carefully curated for the house.
More than a private retreat, Riverhouse functions as a living prototype. A home that tests how architecture can respond to intertwined questions of climate, community, and everyday life. Rooted in collaboration and experimentation, it continues a long lineage of architects designing houses for themselves as sites of inquiry, while pointing toward new ways of living with greater ecological awareness and collective imagination.
Project gallery
客服
消息
收藏
下载
最近



















