查看完整案例

收藏

下载
© Toni Pallari
奥卢中央图书馆 “Saari” 位于奥卢市中心,坐落在奥卢河 Vänmanninsaari岛上。图书馆于 1981 年建成,紧邻图书馆的是奥卢大剧院(1972 年完工),两座建筑都由建筑师 Marjatta 和 Martti Jaatinen 夫妇设计。
©
Toni Pallari
这个建筑组团源自 20 世纪 60 年代为奥卢行政与文化中心所举办的一次总体规划竞赛,它们体现了一种克制内敛的现代混凝土理性的建筑语言,已经被列入芬兰国家级重要建成文化环境(RKY)名录。
© Toni Pallari
JKMM负责本项目的总体更新:建筑设计、室内设计和可移动家具设计。项目业主为 Oulu Tilapalvelut,主要使用方包括奥卢市图书馆、儿童文化中心 Kotilo,以及奥卢市的社区服务部门。设计的指导原则是尊重建筑的现代主义混凝土建筑特征并保留其原有风格气质,同时通过更新空间布局、建筑机电系统与无障碍设施,使建筑更好地满足当代使用需求。
© Toni Pallari
© Toni Pallari
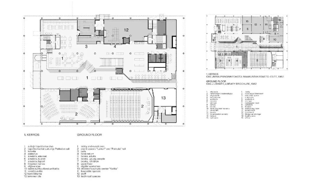
在建筑形态上,这是一座体量清晰的矩形建筑,立面由马赛克混凝土、铝板和玻璃共同构成。二层的双层通高图书馆大厅通过一整面大窗向城市集市广场敞开,而一层则以内退的方式处理。6×6 米的结构网格为建筑内部提供了高度灵活的空间组织可能性。室内空间强调开放感、透明性以及精心挑选的材料质感。从保护角度来看,最具价值的空间包括入口大厅、具有雕塑感的混凝土主楼梯,以及二层的双层通高图书馆大厅。围绕主楼梯的玻璃墙面在不同楼层与各类活动之间建立起清晰的视觉联系。
© Toni Pallari
© Toni Pallari
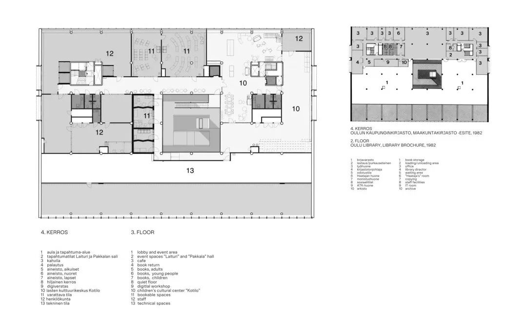
在本次改造中,四层首次向公众开放,并通过在主楼梯上段平台增设新楼梯实现与现有垂直交通的连通。增加了一部全新的电梯,原有电梯也经过翻新升级用于公共服务。整栋建筑的无障碍设计得到全面提升,各层均增加了无障碍卫生间等服务设施。本次改造中最为广泛且复杂的工作,是对建筑机电系统的整体更新:在极为有限的空间条件下,新增技术用房、重新组织设备与管线的走向,并重新梳理系统原理,以应对大量且复杂的技术需求。
© Toni Pallari
© Toni Pallari
焕然一新的首层如今成为一个充满活力的公共空间,用于举办各类活动和创造偶遇交流,该层内设置了咖啡馆以及彼此连通的 Pakkala Hall 与Laituri 活动空间。 二层则构成图书馆的核心:一个开放、充满自然光的图书馆大厅,面向各年龄层读者提供丰富的馆藏资源。三层主要承载相对安静的使用类型,包括小组研讨室、阅览自习空间以及数字化工作坊。现已向公众开放的四层整合了儿童文化中心 Kotilo、可预约使用的会议室、小型隔音工作室以及工作人员的办公空间。
© Toni Pallari
© Toni Pallari
JKMM同时负责的室内设计,延续了原有建筑以及Studio Nurmesniemi家具设计的基本原则。原始的材料组合包括有强烈表现力的现浇混凝土表面、马赛克混凝土、铝材与玻璃,并通过温暖的白蜡木饰面以及色彩鲜明的家具加以柔化。整体空间体验的核心依然保留:多变的视线关系、连贯的空间序列及自然光的引入。从二层的图书馆大厅远望,人们的视线可以延伸至 Torinranta 区域以及 Urho Kähkönen 创作的植物主题艺术作品《Sininen saari》(“蓝色岛屿”),这件作品为建筑周边带来了随季节变化而不断更新的生机。
© Toni Pallari
项目图纸
总平面图 © JKMM
一层平面图 © JKMM
二层平面图 © JKMM
三层平面图 © JKMM
四层平面图
© JKM
南立面图 © JKMM
东立面图 © JKMM
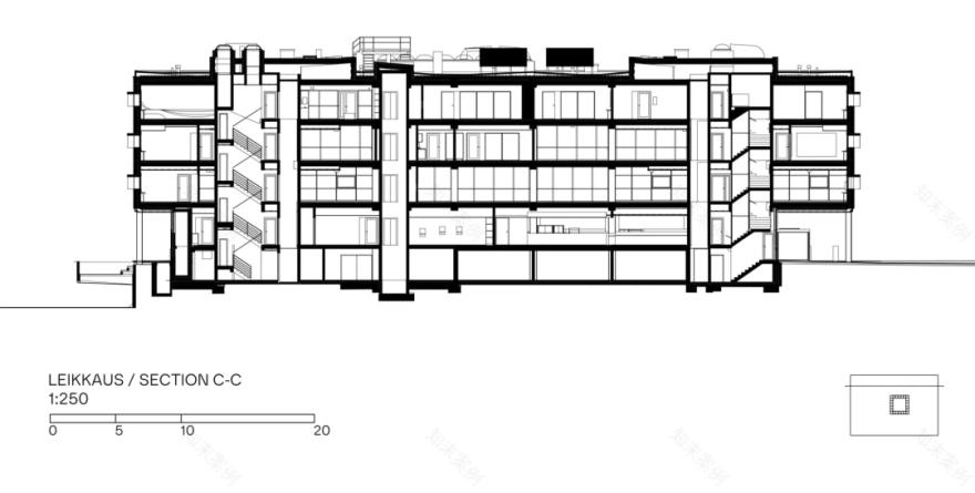
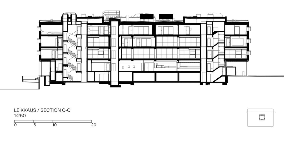
剖面图 © JKMM
剖面图 © JKMM
剖面图 © JKMM
项目信息项目地点:芬兰奥卢项目类型:报告厅、咖啡馆、儿童文化中心、图书馆、多功能空间、办公建筑面积:7330 平方米设计单位:JKMM设计团队:Maren Nielsen, Laura Hämäläinen, Teemu Kurkela, Kaisa Laiho, Lars-Erik Mattila, Kirsi Meloni, Olli Vaskelainen, Peter Vuorenrinne业主单位:奥卢市物业与设施管理服务部门设计范围:建筑设计、室内设计、修复与更新项目状态:2025年竣工
客服
消息
收藏
下载
最近


























