查看完整案例

收藏

下载
- -
放空自己 感知生活
本 空 B K O N S
本项目:杭州临平 春境东来院
户型面积:别墅地面2层精装、地下2层毛坯 共260㎡
居住者:这是一家三口,上一套大平层是我们设计落地,这套屋主想要自然主义的生活氛围,第二次合作信任度拉满,我们提供设计施工主材软装整套服务
别墅空间思考:
一、尊重空间的感受
其实就是让空间“说自己该说的话”。不强行堆砌,不喧宾夺主,让进入的人自然接收到空间传递的情绪。克制,往往比张扬更有力量。
二、重塑生活的仪式感
仪式感不仅限于玄关。书房推门前的停顿、茶室落座前的准备、健身区换鞋的瞬间……正是这些“微仪式”串联起了生活的节奏感,让日子不再是流水线。
三、构建独立的场域
别墅最珍贵的,不是面积的叠加,而是“功能分离”的奢侈。书房归静,茶室归心,健身区归律。千万别把别墅做成了“放大版的公寓”,每个空间都在妥协,反而丢了别墅该有的品质。
设计,终究是为生活服务的。
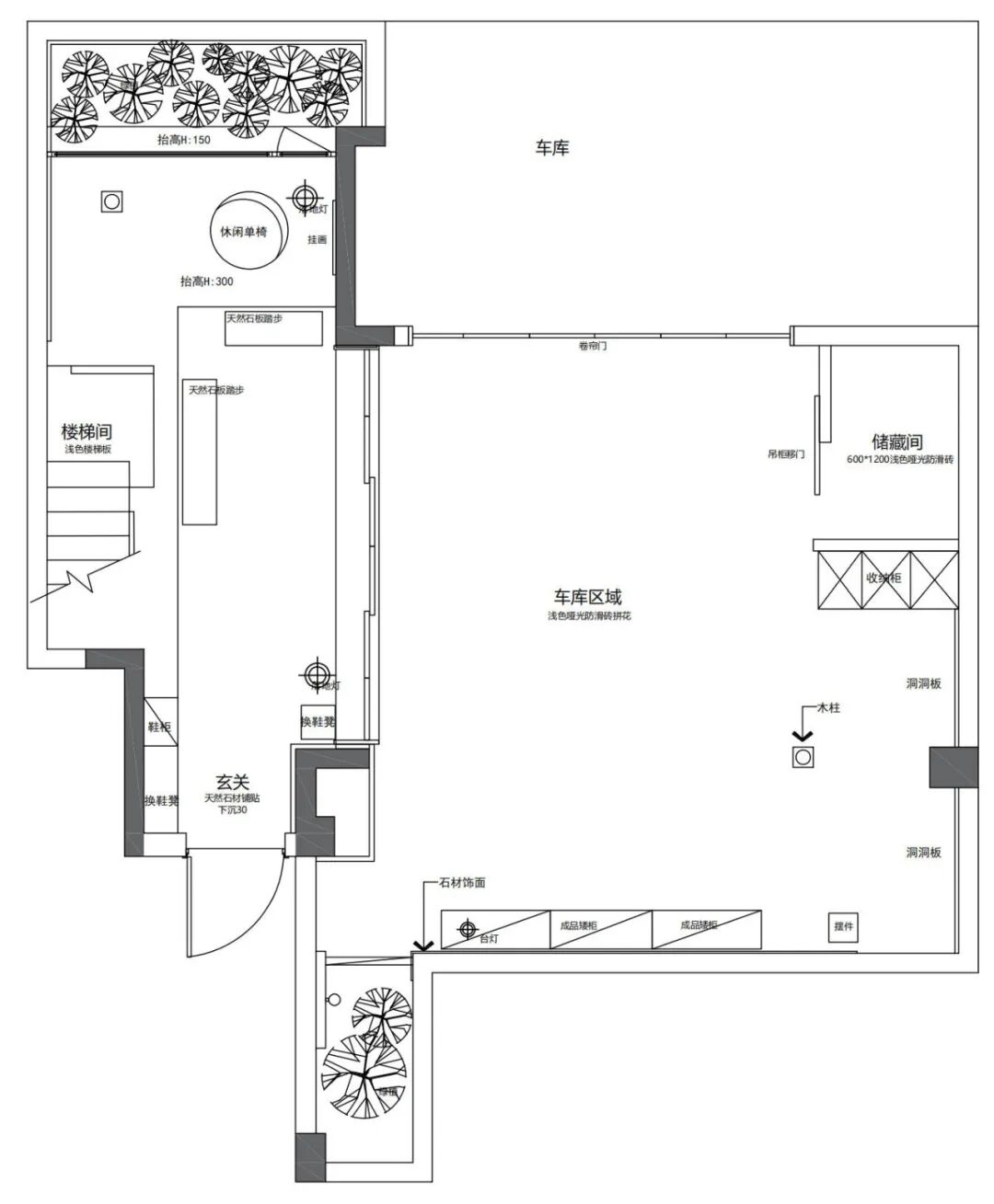
-2F平面规划图
—
负二层前厅 —
别墅设计重点在于建立仪式感。地下室车库入口是主要的入口,很多屋主都会忽略。
负二层楼梯区带天井
-1F平面规划图—
-1F茶室与楼梯—
楼梯:连接上下动静的脊梁。楼梯不应只是上下的通道,它是空间的雕塑,也是视线与身体的延伸。
楼梯是别墅垂直动线的核心,承载着从公共区域向私密区域过渡的重任。
设计上注重"行走的仪式感",踏步的高度与宽度经过精细考量,让上行成为一种从容的攀登,而非匆忙的赶路。
光影随步移景异,转角处预留视觉呼吸点,让身体在移动中感受空间的韵律,它是连接动静两重天的"时光隧道"。
-1F客厅—
一层客厅和餐厅在一起整体比较拥挤,就把负一层整体来做会客厅和健身区,这样能释放让餐厅空间更大,同时,客厅也能更好的承载生活各个功能。
1F平面规划图—
1F玄关 —
玄关:归家的第一道仪式
它是内与外的界限,是喧嚣与宁静的过滤器。
玄关不只是换鞋的功能区,更是心理转换的"关卡"。
设计上强调"藏"与"露"的平衡,通过光影的明暗过渡,引导居者卸下外界的社会角色。
在这里,动作被放慢,换鞋、更衣、整理,完成一系列归家的心理暗示。
作为别墅的"第一印象",它不刻意张扬,但要有压得住场面的静气,让每一次回家,都成为一场心灵的归位。
1F餐厅阳台花园 —
餐厅:人间烟火的温情场域
去除繁复,回归进食的本质,让相聚成为核心。
餐厅是最具"人情味"的场所。设计上弱化装饰,将重点落在餐桌与灯光的互动上,营造一种"包裹感"与"聚气感"。
无论是早餐的匆忙还是晚宴的微醺,这里都是家人情感交互的核心。
材质的选择倾向于温润触感,让用餐不仅仅是味蕾的满足,更是视觉与触觉的双重抚慰。
1F茶水区 —
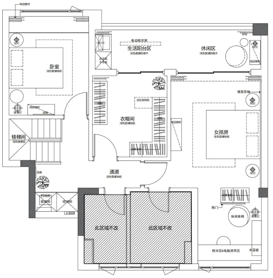
2F平面规划图 —
2F卧室 —
About
Design Company丨设计机构:本空设计工作室
Main case designer丨主案设计:程益华
Executive designer丨撰稿:本空君
本空设计事务所 本 空 B K O N S
客服
消息
收藏
下载
最近







































