查看完整案例

收藏

下载
在Serra da Estrela自然公园的腹地,两座既有建筑被重新激活与改造,以承载TerraSense山地隐逸度假酒店的乡村旅游与酒店体验。
In the heart of the Serra da Estrela Natural Park, the need emerged to breathe new life into two pre-existing buildings, reshaping them to welcome the TerraSense Mountain Charm Retreat, a rural tourism and hotel experience.
▼场地鸟瞰,aerial view of the site© Ivo Tavares Studio
▼远景,viewing the project at distance© Ivo Tavares Studio
▼外观,exterior view© Ivo Tavares Studio
对酒店业主而言,这一项目几乎是一种人生使命。他们希望在极高品质的空间体验与原始自然环境之间建立平衡——这里静谧、孤绝,几乎未被打扰,同时也处于最高级别生态保护区之内,受到严格的环境管控。
Embraced as a life’s calling by the hotel’s owners, the project sought to marry a pursuit of exceptional spatial quality with the raw, untouched beauty of its surroundings — a place marked by silence, solitude, and the strict regulations that come with being in a zone of highest environmental protection.
▼建筑外观,exterior view of the project© Ivo Tavares Studio
▼对传统山地住宅的当代重释,contemporary reimagining of the traditional mountain house © Ivo Tavares Studio
▼由主楼看别墅,viewing the villa from the main building© Ivo Tavares Studio
▼泳池,the pool© Ivo Tavares Studio
▼主楼与户外庭院,the main building and the outdoor terrace© Ivo Tavares Studio
▼露台,the terrace© Ivo Tavares Studio
由此,一个核心概念逐渐成形:对传统山地住宅的当代重释。设计在保留原有建筑精神的基础上,以当地标志性的片岩(schist)重新构筑结构,并引入一种克制而清晰的当代建筑语言。项目以极为节制的材料体系,通过一次明确而有力的建筑介入,标记出这一新阶段的时间层次,同时尊重场地与建筑所积累的历史痕迹。
Thus was born the guiding idea: a contemporary reimagining of the traditional mountain house. Preserving the soul of the original structures, rebuilt in schist — the emblematic stone of the region — the design introduces a new architectural language. With restraint and precision, it uses the fewest possible materials, articulating a single, deliberate gesture that clearly marks the moment of this new intervention, while honoring the layers of time embedded in the place.
▼入口楼梯,the entrance staircase© Ivo Tavares Studio
▼细部,details© Ivo Tavares Studio
▼前台接待空间,the reception desk© Ivo Tavares Studio
▼公共空间,the public space© Ivo Tavares Studio
▼厨房与餐厅,the kitchen and dining area© Ivo Tavares Studio
在室内空间中,旧屋的记忆仍然隐约可辨,但整体体验已被重新定义——通过新的空间关系、出人意料的过渡以及精细的空间组织,使建筑呈现出更为丰富的层次。无论位于主楼还是独立别墅中的客房单元,都被构想为一个独立而完整的微型世界,以各自不同的方式与周围山地景观建立亲密联系。
Inside, the spaces still carry echoes of the former houses, yet they are transformed — redefined by new relationships, unexpected transitions, and a refined spatial choreography. Each hotel accommodation unit, whether in the main house or the separate villa, is conceived as a unique world, offering its own intimate way of inhabiting the landscape.
▼走廊,hallway© Ivo Tavares Studio
▼客房,the guest room© Ivo Tavares Studio
▼别墅室内,interior of the villa© Ivo Tavares Studio
▼别墅室内细部,interior of the villa© Ivo Tavares Studio
▼浴室,bathroom© Ivo Tavares Studio
某种意义上,场地与保护区限制带来的挑战,反而成为项目最重要的契机。建筑体量通过片岩材料延续地方传统,同时以外露混凝土形成大胆的悬挑体量,使整体呈现出鲜明的当代性。这些悬挑结构将建筑向群山敞开——框取远景,引入光线、气息与声音,让室内空间完全沉浸于这片独特自然环境的节律之中。
Paradoxically, the challenges posed by the site and its protected status became the project’s greatest allies. The resulting volumes, grounded in tradition through the use of schist, gain a sense of contemporaneity through bold cantilevered additions in exposed concrete. These gestures open wide the architecture to the surrounding mountains — framing views, inviting in light, scent, and sound — and allowing the interiors to be fully immersed in the natural rhythm of this extraordinary place.
▼远景鸟瞰,aerial view of the project© Ivo Tavares Studio
▼当地标志性的片岩(schist)重新构筑结构,the local characteristic schist has restructured the structure© Ivo Tavares Studio
这里不仅是一个停留之所,更是一处能够沉静居住、缓慢体会自然与时间的山地度假隐居之地。
A space not just to stay, but a hotel retreat to dwell in quiet contemplation and deep, unhurried enjoyment.
▼夜景鸟瞰,aerial view at night© Ivo Tavares Studio
▼外观夜景,night view of exterior© Ivo Tavares Studio
▼夜景,night views© Ivo Tavares Studio
▼主楼底层平面图,ground floor plan of the main building©Atelier DRK
▼主楼二层平面图,first floor plan of the main building©Atelier DRK
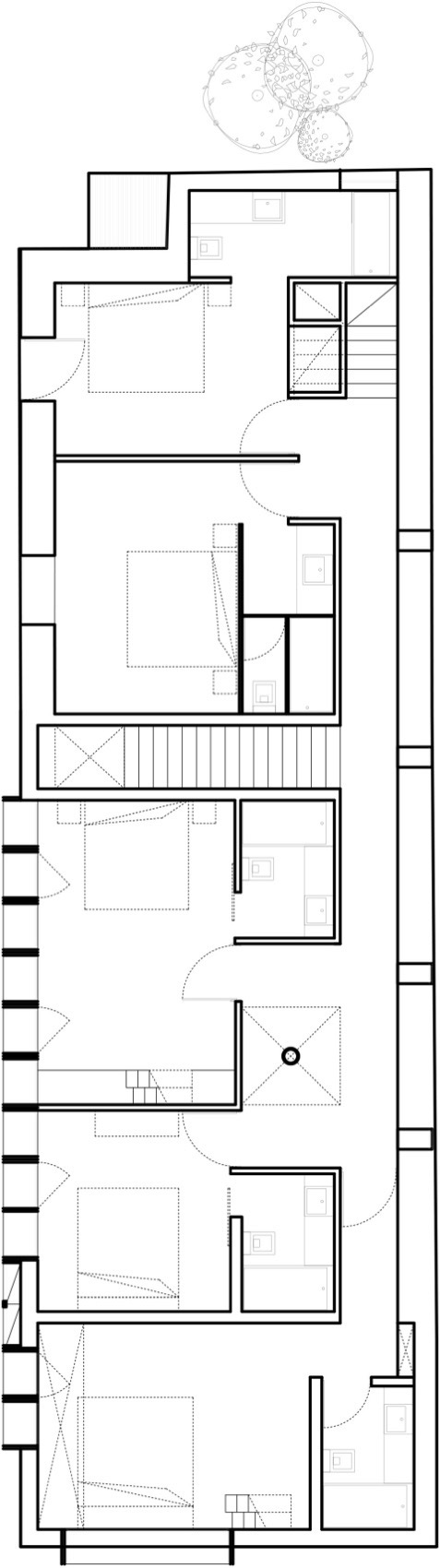
▼主楼三层平面图,second floor plan of the main building©Atelier DRK
▼别墅底层平面图,ground floor plan of thevilla©Atelier DRK
▼别墅二层平面图,upper floor plan of thevilla©Atelier DRK
Project name: TerraSense Mountain Charm Retreat
Architecture Office: Atelier DRK
Main Architect: Diogo Aguiar Almeida
Atelier@drk.pt
Instagram:
Location:Videmonte – Guarda (Serra Estrela)
Year of conclusion : 2023
Total area: 510.00m2
Builder Manteivias, S.A.
inspection:Atelier DRK
Engineering: Egisete, lda
Interior Design: Artspazios, lda
Architectural photographer: Ivo Tavares Studio
Website :
Facebook:
Instagram:
客服
消息
收藏
下载
最近











































































































