查看完整案例

收藏

下载
“ 自然所向,素履以往 ” 设计师试图在都市的喧嚣中寻找一处安放身心的体验居所,让空间生长出时间的纹理。将岁月痕迹、自然肌理与当代生活的秩序,编织成一首宁静的诗。
△入口
一拙一巧,一古一今
入口极简几何分割,奠定空间基调。老房拆下的木柱保留木作的自然本源与岁月的记忆。
入口处,铺着一块清代的老青石板。百年步履,将它打磨成温润的沉默。只有被岁月浸透的材质,才能在相遇的瞬间,叩响心底的回音。
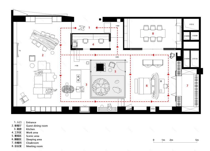
动线设计上,不只关乎通达,更关乎选择。从外到内的两条动线可以满足工作人员和顾客的不同行走路径,同时能提高空间的自由度与多样性。
可移动的荧幕 moving screen
为满足空间在不同生活场景下的使用需求,客厅系统柜除去繁琐的材质和复杂的组合,结合现代的五金技术,将近5米高的超高移动门板结合滑轨导电系统,通过遥控实现电视的自由移动与灵活定位。
它不再固定于某一个位置,而是根据日常使用场景自由调整位置,极大提升了整体空间的灵活性与使用效率。
▽会客区
原木餐桌与白色餐椅,在粗犷与精致的对照中达成平衡。模块化米色沙发,用柔软的体块,化解空间的硬朗。
石,是大地的肌理,是岁月的沉淀,是沉稳、厚重、恒久。
利用原建筑层高优势,通过天花与地面的高度变化,划分不同功能区域。地面抬升与错落,自然塑造空间的层次感。进入其中,可游、可居、可观、可赏——空间不再只是容器,而是可以沉浸的体验。让每一次行走成为与自我、与自然的对话。
生活的温度
人文的底色
玻璃墙将中庭绿意与天光引入室内,树影在墙面摇曳生姿——烹饪的日常,多了一份自然的呼吸感。
▽ 厨房
设计师在空间中央嵌入一个玻璃盒—用它模拟内与外的连接。粗犷的石材与细腻的木纹结合,形成有趣的材质对比。▽ 庭院
矮几上的一杯茶,与自然对话的伸手可触光影。
卧室与中庭的交界处,一张老木凳与桌椅静静摆放,一方小小的组合,将喧嚣关在门外,悄然落成了一隅与自然独处地。
自然不是遥远的风景,而是一种可以栖息的关系。
Nature is not a distant scenery, but a relationship where we can find solace
▽ 卧室
从客厅到卧室,无需穿过厚重的墙体,只需顺着地面的高差,缓步而下,便自然完成了场景的转换。
整面隐形折叠柜门与开放式玻璃柜并置,在隐藏与展示之间,找到克制的平衡。
建筑式系统柜以梁柱结构为支撑,借鉴建筑承重原理;引用模数系统,解决传统定制比例失衡问题;遵循和谐法则,色彩、质感、细节高度统一;满足高净值人群对空间质感与情感体验的双重需求。
光线悄然漫入,与室内的温润气息交融。温软的床榻,只愿安放休憩时的宁静。
”自然为序,向光而居“无向建筑探索的是一种当代自然生活美学。它不是简单的风格拼贴,而是一种审美秩序的生长。它融合自然与当代审美,不仅回应内心的松弛与宁静,也是一种对当下生活方式的美学表达。
项目名称|SUNBUY(合肥)
项目地址|中国 合肥
项目业主|尚佰高定
设计公司|安徽无向建筑
施工执行|文心雀造
灯具提供|银河智能
岩板提供|协锐岩板
艺术涂料|意大利斐雷拉艺术漆
设计总监|武斌
执行设计|夏勇
设计团队|户守浩 李标 周游 苏庄
项目面积|200㎡
项目摄影|任腾视觉/O7O影像叙诗 look
在当今竞争激烈的市场中,中国高定木作行业正迎来一场深刻的变革。消费回归理性,市场告别浮华,人们对高端全屋定制的需求,已从单纯的视觉美感,转向更深层的品质与生活体验感。
无向建筑
创始人 武斌(右)/ 主创设计师夏勇(左)
安徽无向建筑设计工作室2015 年初创,2019 年完成品牌注册。工作内容涉及 |建筑|商业|私宅|展陈|等设计服务的综合性的室内设计公司。
工作室致力于打造具有国际视野与东方审美融合的空间作品。曾为众多国际及国内高端家具定制品牌提供设计及品牌顾问服务。
我们整合各专业领域优势和特点,针对不同用户的设计需求,提供专业有效的综合解决方案。
相对于设计理念与确立设计风格,我们更加关注建筑与空间,室内与室外空间关系的塑造以及体验。我们追求空间与人的情绪连接,让空间成为沉静,耐看,可居的美学容器。
客服
消息
收藏
下载
最近


















































