查看完整案例

收藏

下载
引言
Introduction
“通过仪式”是指一种处境向另一种处境的过渡,呈现为三重序列:分离、过渡与聚合。个体脱离原有位置,进入两个世界之间的阈限空间,在那里身份被悬置、时间被凝固,最后以新的状态回归社会。——Arnold van Gennep《通过仪式》
© 即时设计研究所
“Rites of passage” refer to the transition from one situation to another, presented as a threefold sequence: separation, transition, and incorporation. The individual departs from their original position, enters a liminal space between two worlds where identity is suspended and time stands still, and finally returns to society in a renewed state.——Arnold van Gennep 《The Rites of Passage》
▼项目概览,Project Overview © 刘国威
场地
Site
项目位于上海市永源路街区的地下一层,初见现场,一处70平米的空间,却有着诸多制约条件。店铺位于狭长通道内侧,无临街展示界面,无自然采光与景观,且紧临园区卫生间。面对困境,我们明确了隔离街道且向内探索的设计思路,后现代建筑追求 “事件”而非“物体”,我们意图创造一个让人体验身份流动性的文化装置。
The project is located on the basement level of the Yongyuan Road in Shanghai. When we first visited the site, we found a 70-square-meter space constrained by numerous limitations. The store is situated deep within a narrow passage, with no street-facing facade, no natural light or views, and it is immediately adjacent to the site’s restrooms. Confronted with these challenges, we established a design approach focused on isolating from the street and turning inward. Post-modern architecture pursues “events” rather than “objects,” and we aim to create a cultural apparatus that allows people to experience the fluidity of identity.
▼入口,Entrance © 刘国威
▼入口动线,Transportation © 刘国威
▼入口细部,Details © 刘国威
布局
Spatial layout
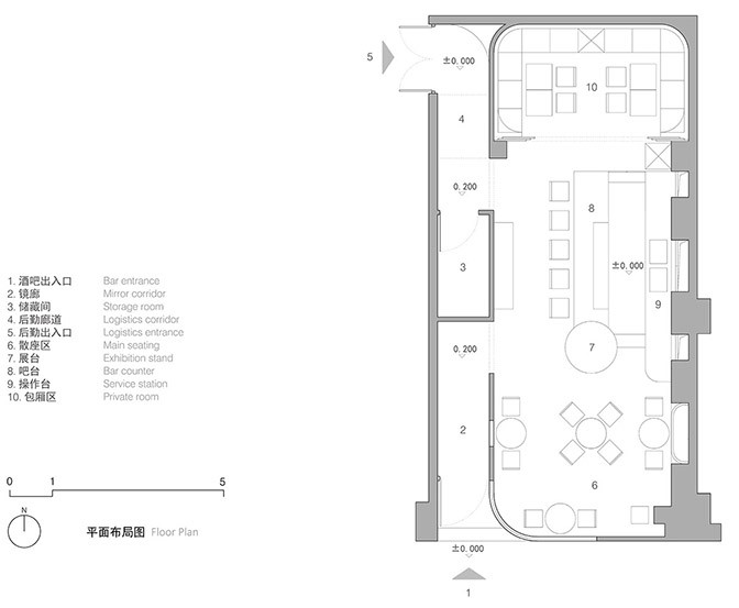
我们将通过性空间凝练为一进一出两个廊道,一侧为主入口,另一侧连接后场,之间设置镜面材质的储物间,这样处理最大程度的保证了经营空间的完整性,整体布局呈现多条轴向对称,中间为操作台和吧台,外侧为散台区,内侧为可开合的包厢。
▼空间布局分析,Space layout diagram © 即时设计研究所
We distilled the circulation space into two corridors—one for entry and one for exit. The main entrance is on one side, while the other connects to the back-of-house. Between them, we placed a storage room clad in mirrored material. This arrangement maximizes the integrity of the operational area. The overall layout features multiple axial symmetries: the service counter and bar are positioned at the center, surrounded by scattered seating on the outer side and a flexible private room on the inner side.
▼进入酒吧,Enter the bar © 刘国威
▼散台区,Scattered seating area © 刘国威
▼条窗,Window side seat© 刘国威
空间内置了新的框架结构,强化区域划分,并将地面抬高200mm,在营造入口仪式感的同时解决吧台与操作台的高差问题。自此,我们试图以空间为载体,呈现关于“通过仪式”的三个阶段。
A new structural framework was introduced within the space to reinforce the division of zones. The floor level was raised by 200mm, enhancing the ritualistic sense of entry while also resolving the height difference between the bar and the service counter. Through this spatial configuration, we aim to present the three stages of the “rites of passage.”
▼框架与高差,Structural framework and height difference © 刘国威
分离仪式
Rites of separation
店铺的入口是一个端头为镜面的廊道,创造了一个向内延伸的虚拟空间。它既不是”外部街道”,也不是”内部店铺”,它是一个过渡的通道,让顾客的身体在镜像中复制——真实的自我与镜中的虚像并存。顾客在走进这个廊道时,其日常的身份被暂时搁置,开始准备接受作为体验者的新身份。
The entrance of the store is a corridor with mirrored ends, creating a virtual space that extends inward. It is neither an “external street” nor an “internal shop”; rather, it is a transitional passage where the visitor’s body is replicated in the reflection—the real self coexisting with its mirrored image. As customers walk through this corridor, their everyday identity is temporarily suspended, and they begin to assume a new identity as an experiential participant.
▼吧台,Counter © 刘国威
过渡仪式
Rites of transition
穿过廊道,进入店铺内部,顾客就进入了纯粹的阈限空间,这是仪式的核心阶段,个体处于身份悬置、规范模糊、充满可能性的“之间”状态。这里是多个场景的集合地,每一个设计元素都在强化这种“之间”感。
After passing through the corridor and entering the interior of the store, customers step into a purely liminal space—the core stage of the ritual, where the individual exists in an “in-between” state characterized by suspended identity, blurred norms, and full of possibility. This is a convergence of multiple scenes, with every design element reinforcing this sense of “in-betweenness.”
▼长桌区,Long table © 刘国威
顾客在壁炉、假窗、圆桌、绿椅构成的“之间”地带徘徊,身份处于模糊状态。这个阶段是“反结构”的——日常的社会等级、行为规范被暂时打破,人们进入一种“交融”状态。顾客在此阶段“什么都不是”,也因此“什么都可以是”——他们的身份是开放的、流动的、正在生成的、与场景相对应的。
Customers linger in the “in-between” zone formed by the fireplace, faux windows, round tables, and green chairs, their identities remaining in a state of ambiguity.
This stage is “anti-structural”—everyday social hierarchies and behavioral norms are temporarily disrupted, allowing people to enter a state of “communitas.” Here, customers are “nothing,” and therefore “can be anything”—their identities are open, fluid, in the process of becoming, and responsive to the surrounding scene.
▼壁炉,The fireplace © 刘国威
聚合仪式
Rites of incorporation
当顾客穿过另一个廊道回到街道时,他们完成了整个循环。他们已不是进入时的那个“旧我”,他们带着空间体验的痕迹,可能是放松的心情、美好的记忆、或对某个场景的记忆,重新融入日常生活。聚合并不意味着阈限体验的消失,而是将其内化为个人经验的一部分,顾客未来可能会因为这次体验而再次到访,或者向他人讲述这个空间——这都是仪式效果的延续。
When customers pass through the other corridor and return to the street, they complete the full cycle. They are no longer the “old self” that entered; they carry with them the traces of the spatial experience—perhaps a relaxed mood, pleasant memories, or the recollection of a particular scene—as they reintegrate into daily life. Incorporation does not signify the disappearance of the liminal experience, but rather its internalization as part of one’s personal history. Customers may return to the space in the future because of this experience, or share stories about it with others—both are continuations of the ritual’s effect.
▼出口廊道,Exist corridor © 刘国威
愿景
Vision
《通过仪式》中指出,人的一生由无数过渡构成,每一次转换都需要“分离-过渡-聚合”的仪式承载,Bar Vena的空间正是对这一理论的回响。
在现代生活的夹缝中,酒吧是一种仪式性的缓冲地带:让人们在理性化的日常之外,获得短暂卸下社会角色的空隙,这里不只为饮酒而设,更为都市人提供一个可以重新触碰自我的过渡之所。
As noted in The Rites of Passage, human life is composed of countless transitions, each requiring the ritual framework of “separation—transition—incorporation” to be meaningfully carried. The space of Bar Vena is precisely an echo of this theory.
In the interstices of modern life, a bar serves as a ritualistic buffer zone—a间隙 where people can temporarily shed their social roles outside the rationalized routines of daily existence. This place is not merely designed for drinking; it offers urban dwellers a transitional space where they can reconnect with themselves.
▼平面图,Floor plan © 刘国威
完整项目信息
项目名称:Bar Vena
项目功能:葡萄酒&鸡尾酒吧
项目地点:上海市静安区永源路街区
建筑面积:70㎡
竣工时间:2026.1
业主方: Vicky & Bob
设计单位:即时设计研究所(IM Design)
主持建筑师:周小富
设计团队:周小富、傅帅、李帅、李敏
施工单位:杭州荣升装饰工程有限公司
材料 :木、不锈钢、艺术涂料、洞石、皮艺等
摄影:刘国威
客服
消息
收藏
下载
最近






















