查看完整案例

收藏

下载
POA建筑事务所设计的浙江温州“望山清水”水厂已于近期建成,正进行场地植被的精细化营造。在城市与自然之间,筑就一座可阅读、可呼吸的当代建筑。
水,是江南的底色,也是生活的原点。在温州苍南东部钱库镇47573平方米的土地上,我们没有建造一座冰冷的工业庞然大物,而是让一座水厂,长成了与山水相望、与城市相融的“生态客厅”。一个关于“一半山水一半城”的构想,正在变成现实。
设计的起点,是对场地的阅读。这里的北临龙金大道,是面向城市的展示的界面;我们以开放的姿态,消解了工业设施的边界感。南侧河道蜿蜒,生态景观静静铺展;西面,中式住宅与幼儿园的轮廓线,勾勒出日常生活的温度。我们始终在思考:如何让一座水厂,不只是一座水厂?
我们以两条轴线,锚定了整个场地的秩序,回应城市与自然的双向需求。两轴交汇之处,是开放的中心庭院;现代中式的院落群落,在两轴之间徐徐展开。
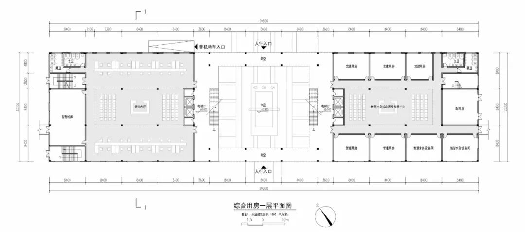
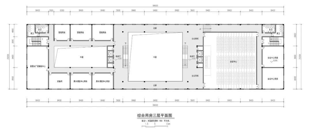
三层高的综合用房,在4300平方米的空间里,有序排布了党建用房、水质化验中心、控制中心。建筑两侧预留了弹性用地,未来可生长至五至六层,为后续需求留足了可能性。
生产区在场地南侧铺开,配水井、砂滤池、膜净水车间等十余类构筑物,以清晰的逻辑序列排布。我们做了完全独立的流线设计:人车分流,机动车与后勤口隐于西侧,人行入口则面向北侧的城市大道敞开,既保障了生产安全,也兼顾了公共可达性。
镜头转向南岸。沿河的视野被完全打开,生态景观引入厂区。沿河的视野被完全打开,生态景观被完整引入厂区。
通透的空间与绿意交织,让工业设施也拥有了温柔的呼吸感。绿地率30.06%,容积率0.26。乡野的油菜花与现代建筑相映成趣,数字背后,是一座真正「可以呼吸的水厂」。
我们以通透的玻璃幕墙与渐变的金属格栅,模糊了室内外的边界。既保证了内部空间的采光与隐私,也让建筑立面随着光影与四季变化,呈现出丰富的肌理。
它不是一座孤立的工业设施,而是城市的一部分,是生活的一部分,是山水的一部分。正如我们一直相信的:基础设施,也可以是有温度的城市客厅。
总平面图
一层平面图
三层平面图
剖面
立面图
“望山”生态制水厂
中国温州 2022-2026
类型:市政基础设施
基地面积:47573平方米
总建筑面积:13080㎡
建筑高度:24米
主持合伙人:潘成寿、Julia
设计团队:Jason.L、郑瑞华、林子玉、肖强、王欣然
业主:苍南县水务集团有限公司
建筑设计:POA建筑事务所
甲级设计院:中国市政工程华北设计研究总院有限公司
施工单位:浙江省二建建设集团有限公司
摄影:StudioSZ
客服
消息
收藏
下载
最近



















