查看完整案例

收藏

下载
品牌定位
Brand Positioning
雀斑(QIOBAN)位于汉中市老邮电局旧址改造而成的文创街区。作为一家融合复古与新潮的精品餐酒吧及咖啡馆,150 m² 的独栋老建筑改造秉持 “修旧如旧” 的理念。我们保留了青砖、白泥墙、老木梁与红瓦等原始风貌,以克制的新材质点缀其间,营造出新老共生的独特场域。
QIOBAN is located in a cultural and creative block transformed from the former Hanzhong Post Office. As a boutique bistro and café that fuses vintage and contemporary aesthetics, this 150 m² standalone renovation adheres to the philosophy of “restoring the old as it was.” By preserving original features such as grey bricks, white-washed walls, ancient timber beams, and red roof tiles, and punctuating them with restrained modern materials, we have created a unique realm where the past and present coexist.
▼项目外观,facade of the project©日光君
设计思路
Design Concept
历史底色与城市微更新: 本项目位于汉中邮局旧址,整体街区由知名建筑团队奠定了“修旧如旧”的更新基调。在园区规划中,黑色混凝土与锈蚀钢板等具有粗野力量感的材料,与历经风霜的老建筑残存交织。作为室内设计方,TWO² Design 深受这一理念启发。我们不希望内部空间仅是建筑的延伸,而是一场关于“时间、痕迹与新生”的深度对话。
Historical Context and Urban Micro-Regeneration: Situated on the site of the historic Hanzhong Post Office, the block’s overall renovation established a tone of “restoring the old as it was.” Robust materials like black concrete and weathered steel interweave with the remnants of the historic structure. As the interior designers, TWO² Design sought to create more than just an architectural extension; we envisioned an in-depth dialogue regarding “Time, Traces, and Rebirth.”
▼“修旧如旧”的更新基调,established a tone of “restoring the old as it was.”©日光君
▼采用具有粗野力量感的材料,using robust materials©日光君
空间布局与设计细节
Spatial Layout & Details
立面重构 (Facade Renovation):所有的门窗开洞位均增设了镀锌铁板雨棚,以现代工业语言回应旧时代的建筑纹理。
All modified openings are fitted with galvanized iron canopies, utilizing a contemporary industrial syntax to respond to the architectural textures of a bygone era.
▼立面设计,facade design©日光君
地面叙事 (Floor Narrative):摒弃繁复装饰,采用最质朴的混凝土找平,让地面的质感退居幕后,承托起整体的复古氛围。
Eschewing complex ornamentation, we utilized plain concrete screed for the flooring. This allows the ground texture to recede into the background, providing a neutral stage for the vintage atmosphere.
▼采用最质朴的混凝土找平,utilized plain concrete screed for the flooring©日光君
▼采用最质朴的混凝土找平,utilized plain concrete screed for the flooring©日光君
入口视觉 (Entrance Identity): 建筑入口处大胆使用了带有彩色骨料的水磨石。这种带有时代记忆却又充满跳跃感的材质,成为了新旧交替的完美过渡。
The entrance boldly features terrazzo with colored aggregates. This material, imbued with collective memory yet vibrant in tone, serves as the perfect transition between the old and the new.
▼入口处使用带有彩色骨料的水磨石,the entrance boldly features terrazzo with colored aggregates©日光君
▼入口处使用带有彩色骨料的水磨石,the entrance boldly features terrazzo with colored aggregates©日光君
材质与色彩运用
Materials & Colors
柔性介质的平衡:强硬的材质需要柔软的介质来平衡。我们在黑色混凝土楼梯两侧悬挂了牛皮纸艺术装置。其自然的肌理在复古灯具的晕染下,犹如凝固的光影瀑布,柔化了空间的冷峻感,为硬朗的工业内核注入了一丝诗意。
Balancing with Soft Media: Robust materials require soft counterparts for equilibrium. We suspended kraft paper art installations alongside the black concrete staircase. Their natural texture, illuminated by vintage lighting, resembles a frozen waterfall of light and shadow, softening the spatial austerity and infusing the industrial core with a touch of poetry.
▼楼梯两侧悬挂了牛皮纸艺术装置,suspended kraft paper art installations alongside the black concrete staircase©日光君
▼牛皮纸艺术装置与灯光相得益彰,suspended kraft paper art installations under vintage lighting©日光君
▼犹如凝固的光影瀑布,resembles a frozen waterfall of light and shadow©日光君
▼柔化了空间的冷峻感,softening the spatial austerity©日光君
▼屋顶天窗细部,roof skylight detail©日光君
嵌入历史肌理的“黑色盒子”:在功能分区上,我们采用“异质体嵌入 (Heterogeneous Embedding)”策略。核心吧台区被定义为一个极致纯粹的“黑色盒子”,直接嵌顿在老建筑斑驳的砖墙下。黑色主材与时间冲刷出的红砖形成视觉张力,以绝对的现代感反衬岁月之美。
▼剖面,section©贰方设计
The “Black Box” in History: A strategy of “Heterogeneous Embedding” was adopted for functional zoning. The central bar is defined as a pure “black box,” recessed directly beneath the mottled brick walls. This creates an intense visual tension between modern materiality and the weathered red bricks, accentuating the beauty of time through absolute modernity.
▼吧台区被定义为一个极致纯粹的“黑色盒子”,The central bar is defined as a pure “black box,”©日光君
▼吧台区被定义为一个极致纯粹的“黑色盒子”,The central bar is defined as a pure “black box,”©日光君
▼用餐区局部,dining area©日光君
结语
Conclusion
QIOBAN Bistro 的改造,是 TWO² Design在尊重历史肌理前提下的一次克制而有力的现代介入。我们保留了被时间冲刷过的原始美感,同时以新材质作为“催化剂”,让老建筑在当代语境下重新呼吸,呈现出一种复古而又先锋的独特质感。
The renovation of QIOBAN Bistro represents a restrained yet powerful modern intervention by TWO² Design. By preserving the raw beauty shaped by time and using new materials as “catalysts,” we have allowed the historic building to breathe again within a contemporary context, presenting a unique quality that is both vintage and avant-garde.
▼室内灯光,lighting at night©日光君
▼入口灯光,lighting at entrance©日光君
▼原始结构平面图,original structure plan©贰方设计
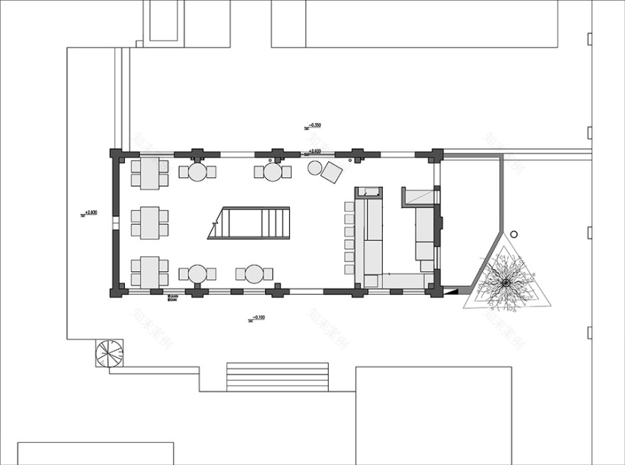
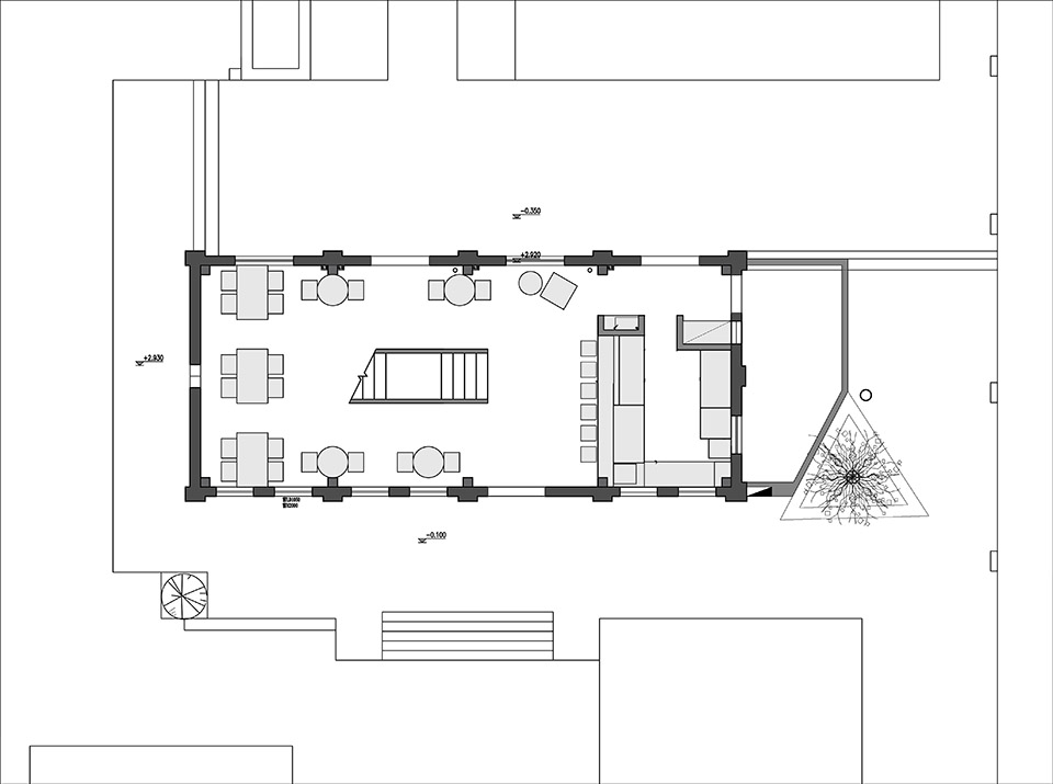
▼改造后一层平面,ground floor plan after renovation©贰方设计
▼改造后二层平面,first floor plan after renovation©贰方设计
▼剖面,section©贰方设计
项目名称: 雀斑 QIOBAN Bistro
项目地点: 陕西省汉中市东大街爱转角文创街区04号
设计单位: 贰方设计 (TWO² Design)
主创设计: 桂晓庆、刘丹
设计团队: 贰方设计团队
建筑面积: 150 m²
项目摄影: 日光君
主要材料: 黑色现浇混凝土、灰色骨料水磨石、镀锌铁板、牛皮纸、原建筑红砖/青砖
客服
消息
收藏
下载
最近








































