查看完整案例

收藏

下载
项目位于湖北省宜昌市高铁新城区,西侧紧邻站东路,北侧衔接绿丘路,与宜昌高铁北站实现便捷交通联动。场地属丘陵地貌,存在10米地形高差,整体呈现东北高、西南低的地势特征。
规划建设一所45班寄宿制高级中学,建筑群涵盖教学楼、实验楼、学生宿舍、食堂、图书馆及行政综合楼、学术交流中心、学生之家(生活综合楼)等;同时配套建设400米标准田径场、足球场、篮球场及地下停车设施。项目建成后,将成为宜昌高铁新区的教育创新示范平台与城市文化新地标。
△日景西南侧鸟瞰图©THAD
北大精神,礼仪传承
以“传承北大精神、回归教育本真”为办学理念,以贯穿南北的人文礼仪轴作为空间骨架,着重凸显学术的严谨性与秩序的尊崇感,承载校园各类仪式、典礼及集会活动。校门设计提取北大传统建筑符号,结合高铁新城现代风貌进行当代转译,使历史文脉与时代精神深度融合于校园空间肌理之中。
△日景南侧人视效果图©THAD
立体生态,台地筑境
校园设计尊重自然,将10米地形高差转化为空间塑造的独特亮点。采用台地式布局,建筑依山就势、分层错落排布,最大限度减少土方开挖量,在有限用地范围内塑造出丰富立体的空间层次。400米标准运动场设置于综合楼屋面上,有效释放地面公共活动空间;地下集中整合车行交通与停车功能,地面架空区域打造风雨活动场地,学生之家的屋顶拓展为绿化与运动空间,从而构建起“地下—地面—屋面”的三维立体校园格局。
△©THAD总平面图©THAD
△场地剖面图©THAD
人文自然,绿脉共融
以两条休闲绿化带作为绿脉,有机串联庭院与各功能区块,将自然生态气息渗透至学习、生活、交往的全场景之中。同时,项目积极应用无动力通风、自然采光、光伏发电等绿色低碳技术,让生态节能从技术理念转化为师生可感知的日常体验,实现人文气息与自然生态的和谐共生。
诗意栖居,校城共享
营造六大主题庭园,围绕静思、探索、社交、运动等多元需求,设置林下书桌、朗读亭、互动科普装置、开放草坪等场景,为师生营造富有美感与情趣的精神家园。同时,校园西侧约4.6万平方米的综合功能空间采用智能化分时管理模式,向社区开放,推动城市与校园资源共享,使其成为区域活力中心与文化传播窗口。
△夜景西南侧鸟瞰图©THAD
一轴:人文礼仪轴作为校园空间与精神核心,贯穿南北,自校门经礼仪广场延伸至行政综合楼,既彰显学术严谨性与空间秩序感,又承载各类仪式活动,强化师生的归属感与仪式感。
两区:校园依托地形高差划分为东、西两大功能区。东侧地势较高区域为教学生活区,环境安静独立;西侧地势较低区域紧邻城市界面,为运动综合区,实现动静分区清晰。
三环:西环为文体生活环,连接各类文体设施,满足师生运动、社交等需求;中环为礼仪文化环,集聚行政与学术功能,彰显校园庄重气质;外环为概念性总环,整合校园全域功能,形成完整的学生成长闭环。
六园:求实园主打静思阅读功能,勤奋园着力激发学生求知欲望,严谨园、创新园适配各类社交活动,悦享园、阳光园助力师生日常锻炼,六大园区各有侧重,精准适配师生多元成长需求。
建筑群整体方整有序,以图书馆为核心实现均衡布局。建筑造型简洁大方,材料选用仿砖真石漆、灰色真石漆与白色水平构件搭配。南校门的设计结合北大建筑元素,在现代简约风格的基础上,呼应校园深厚的文化底蕴,又与周边环境和谐统一,形成整体协调的视觉体验。白色水平构件塑造了建筑立面的节奏与韵律,还兼顾了遮阳与空调机位安装的功能。
△日景西南侧人视效果图©THAD
△夜景宿舍区人视效果图©THAD
教学楼首层采用架空设计,与风雨连廊无缝衔接。2至5层主要设置50人普通教室、专业教室及教研办公室等辅助用房;负一层结合场地高差与庭院,设置灵活多变的弹性空间,满足多元使用需求。
△日景教学区庭院鸟瞰效果图©THAD
图书馆及行政综合楼作为园区的主形象建筑,形体简洁有力、雕塑感突出。一、二层为图书阅览空间,通过夹层设计实现南北向不同高差的交通衔接;三、四层为行政办公区域,内设中心共享采光中庭,提升空间通透性与舒适度。
学生之家位于运动场下方,是集食堂、报告厅、风雨操场、社团活动等功能于一体的综合设施。食堂与报告厅以运动场中线为界,分别设置于南北两侧,并通过室外球场、下沉庭院与教学生活区紧密相连。整体立体化的空间营造,构建起“新场景·新功能·新生活”的创新教育体验。
△日景西侧人视效果图©THAD
△2#、3#教学楼首层平面图©THAD
△2#、3#教学楼-1层平面图©THAD
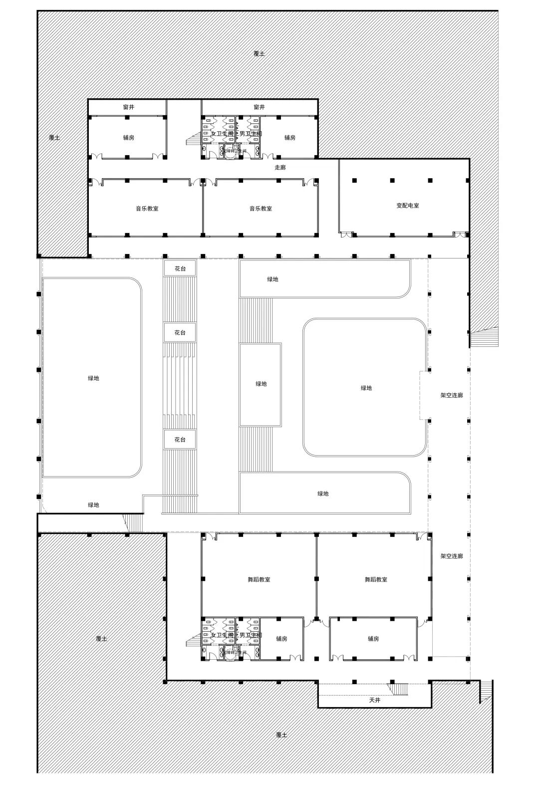
△图书馆及行政综合楼首层平面图©THAD
△图书馆及行政综合楼二层平面图©THAD
△3#教学楼立面图©THAD
△2#教学楼剖面图©THAD
△3#教学楼剖面图©THAD
项目名称丨宜昌北附实验学校
项目地点丨湖北省宜昌市
建筑类型丨教育建筑
用地面积丨73,297.47㎡
建筑面积丨101,000㎡
设计时间丨2026年
设计单位丨清华大学建筑设计研究院有限公司
合作单位丨三峡大学(湖北)设计咨询研究院有限责任公司
建设单位丨宜昌北附教育科技有限公司
施工单位丨湖南省第三工程有限公司
项目负责人丨李惟科
建筑设计丨王雷 王娟 边小刚 孙铮
结构设计丨左健
给排水专业丨张磊
暖通专业丨郭斌
强电专业丨王海量
弱电专业丨王海量
客服
消息
收藏
下载
最近



















