查看完整案例

收藏

下载

翻译
Architects:Mork-Ulnes Architects
Area:110m²
Year:2025
Photographs:Joe Fletcher
Manufacturers:Caesarstone,Quantum Windows & Doors,Sierra Pacific Windows
Category:Houses
Design Team:Casper Mork Ulnes, Lexie Mork Ulnes, Colin Griffin
Engineering & Consulting > Structural:Riva Engineering & Consulting
General Contractor:Sierra Sustainable Builders
City:South Lake Tahoe
Country:United States
Text description provided by the architects. Situated at an elevation of over 6000' (1800 m), Staggered Cabin deploys shed-roofed volumes to integrate onto a sloping site where South Lake Tahoe meets the foot of the mountains beyond.
As the dark-stained cedar-clad volumes shift and step down the alpine slope, they create compact exterior courtyards that celebrate some of the small site's natural resources: boulders, massive Jeffrey Pines, and a level patch of ground that enjoys abundant sunlight.
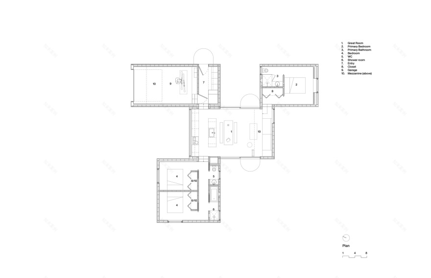
Inside, the 1400 square foot cabin efficiently distributes sleeping quarters about a central living and dining space that opens to the outdoors on either side. Finished in plywood, the cabin takes advantage of its steeply pitched shed-roof geometry to capture additional mezzanine spaces, maximizing functionality while maintaining a gentle approach to the site.
Large openings frame views up into the trees or out onto the immediate context, focusing on the ordinary natural beauty that surrounds the house. The exterior spaces formed between the building masses afford glimpses of the lake and mountains in the distance, broadening this focus and linking the site to its spectacular setting.
Project gallery
客服
消息
收藏
下载
最近



















