知末
知末
创作上传
VIP
收藏下载
登录 | 注册有礼

“GO OUT” 自行车店丨Tasnim Ashraf

2026/02/12 23:03:18
查看完整案例
微信扫一扫
收藏
下载
翻译
" GO OUT " - BIKE STORE
(Student Academic Project – Alexandria University)
Designed By : Tasnim Ashraf
.................
“GO OUT”  自行车店丨Tasnim Ashraf-4
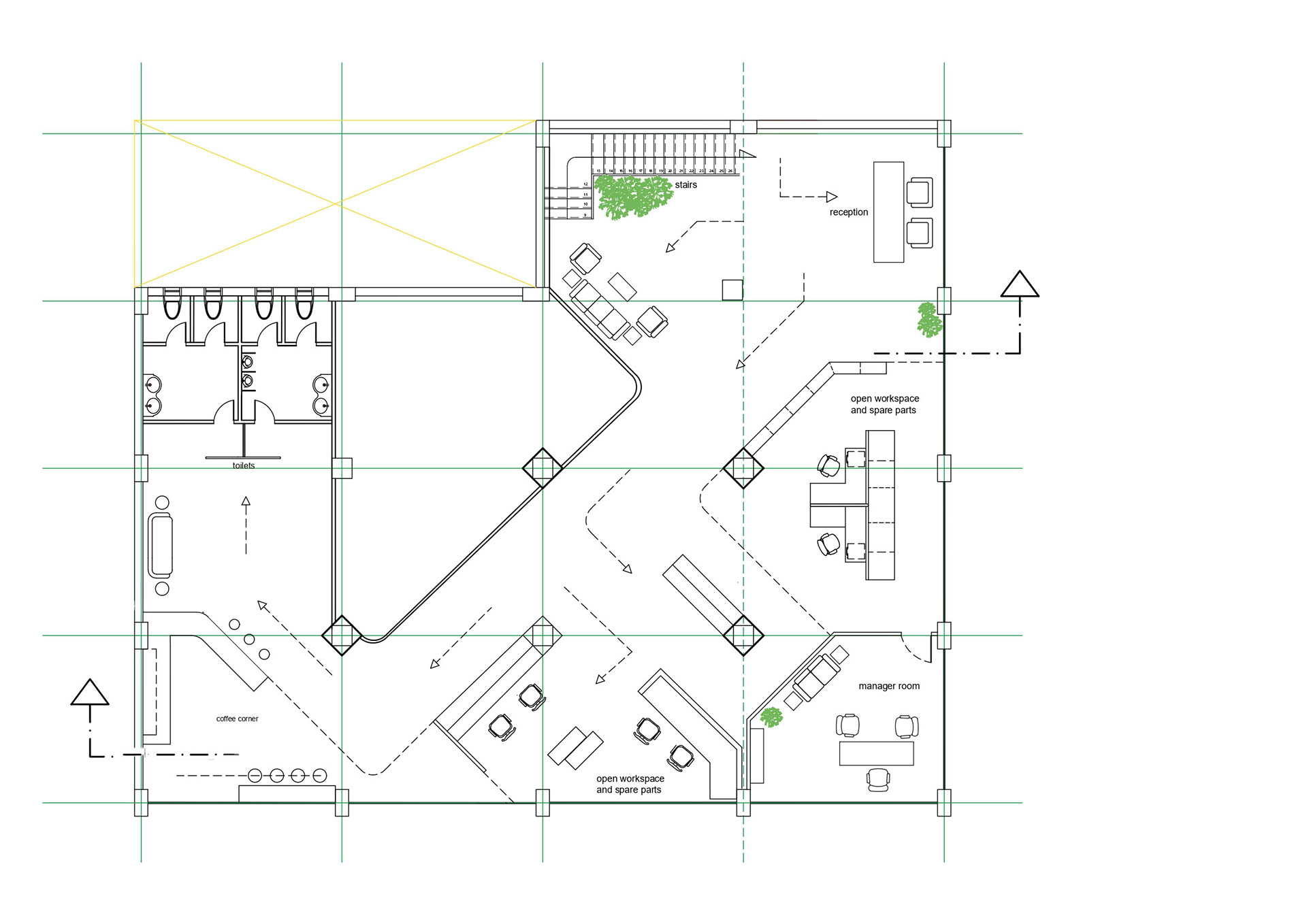
PLANS
“GO OUT”  自行车店丨Tasnim Ashraf-6
“GO OUT”  自行车店丨Tasnim Ashraf-7
SHOTS
“GO OUT”  自行车店丨Tasnim Ashraf-9
“GO OUT”  自行车店丨Tasnim Ashraf-10
“GO OUT”  自行车店丨Tasnim Ashraf-11
“GO OUT”  自行车店丨Tasnim Ashraf-12
“GO OUT”  自行车店丨Tasnim Ashraf-13
“GO OUT”  自行车店丨Tasnim Ashraf-14
“GO OUT”  自行车店丨Tasnim Ashraf-15
“GO OUT”  自行车店丨Tasnim Ashraf-16
南京喵熊网络科技有限公司 苏ICP备18050492号-4知末 © 2018—2020 . All photos and trademark graphics are copyrighted by their owners.增值电信业务经营许可证(ICP)苏B2-20201444苏公网安备 32011302321234号
客服
消息
收藏
下载
最近