查看完整案例

收藏

下载

翻译
Architects:Core Design Workshop
Area:4000ft²
Year:2025
Photographs:Bricksbegin
Manufacturers:Big Ass Fans,Infinte Windows System
Lead Architects:Chun Hooi, TAN
Category:Houses
Lead Team:Chun Hooi, TAN
General Contractor:Sinar Sintetik Sdn Bhd
Engineering & Consulting > Structural:RS Design
Architecture Offices:Walless Architects
City:Kuala Lumpur
Country:Malaysia
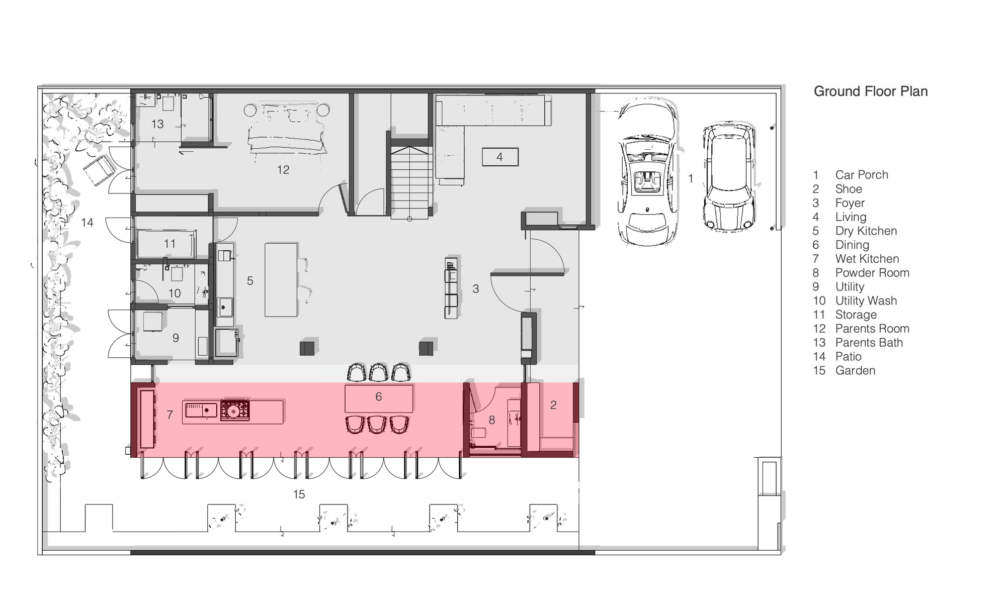
Text description provided by the architects. Interface House is a residential renovation in Kuala Lumpur that rethinks outdoor living within the constraints of a developer-built zero-lot bungalow.
Rather than attaching a conventional extension, Core Design Workshop introduced a new off-form concrete structure positioned deliberately 600 millimetres away from the existing house. This narrow separation forms a glazed and louvred void that functions as a spatial hinge, allowing light, air, and movement to pass continuously between old and new. The project's defining element is therefore not the building itself, but the interface created by proximity without physical attachment.
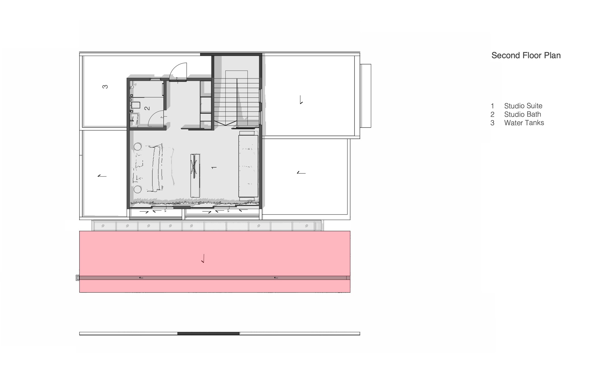
At ground level, a cast-in-situ terrazzo floor runs uninterrupted from the original house into the new hall, establishing continuity across the separation. Above, the two structures remain independent. The new concrete roof curves freely, spanning the hall without intermediate support and without relying on the existing building. First explored through paper studies and later realised in concrete, the curved form is a structural response rather than a formal gesture, achieving strength through bending.
The extension takes the form of a double-height hall that accommodates dining and wet kitchen functions, programs traditionally pushed to the rear of Malaysian houses. Twelve full-height pivoting glass panels line the garden edge, allowing the space to operate across varying degrees of openness. When opened, the hall dissolves into the landscape; when closed, it remains visually continuous while protected from tropical rain. Overlooked by the upper floors, this semi-outdoor hall becomes the social heart of the house.
By positioning the new volume alongside rather than onto the existing bungalow, Interface House resists the logic of seamless extension. Instead, it stages a deliberate negotiation between inherited suburban fabric and a new architectural order, using structure, void, and program to question how domestic space can adapt to Malaysia's hot and humid climate.
Project gallery
客服
消息
收藏
下载
最近


























