查看完整案例

收藏

下载
以爬宠为中心的生命秩序
Life order centered around reptiles
本案190㎡,原始空间为老厂房,设计师梁帆践行“多业态融合”的核心理念,改变传统宠物店以人类视觉观赏为导向的陈列模式,构建一个让爬宠、热植、咖啡、文创深度共融的室内生态环境。老厂房特有的挑高与开敞结构,为模拟立体的自然生境提供了先天条件;设计以此为基底,让动植物的原始习性主导空间叙事。在这里,人类仅仅是访客,空间的主人是那些沉默的生命。
洞口之内,秘境之外
Inside the cave, outside the secret realm
建筑外立面以一道隐秘的“洞口”作为入口,仿佛通往另一维度的自然秘境。穿洞而入,最开始是前厅咖啡区,也是从喧嚣尘世步入爬宠世界的情绪转换站。这里提供着简单补给,刻意与内部的生态区保持清晰的界限——那道无形的屏障不仅是物理上的分隔,更是一种仪式感的宣告;在此卸下浮躁与匆忙,稍作休整,踏入属于那些沉默生命的领地。
落座区拥有一整面蓬勃生长的鹿角蕨墙,宽厚的叶片层层叠叠。如同将热带雨林的垂直断面搬进了室内。这里不仅是访客的休憩之地,旺盛到近乎张扬的生命状态悄然感染环境,是热植爱好者的线下据点。鹿角蕨攀附于墙面,软化了原始空间粗粝的工业遗迹。每一株绿植,都已做成了有审美的家居单品。在这个角落里感受到的呼吸与温度,都能原封不动地,延续到你的生活里。
以树为核,循迹而栖
With trees as the corefollow the traces and settle down-
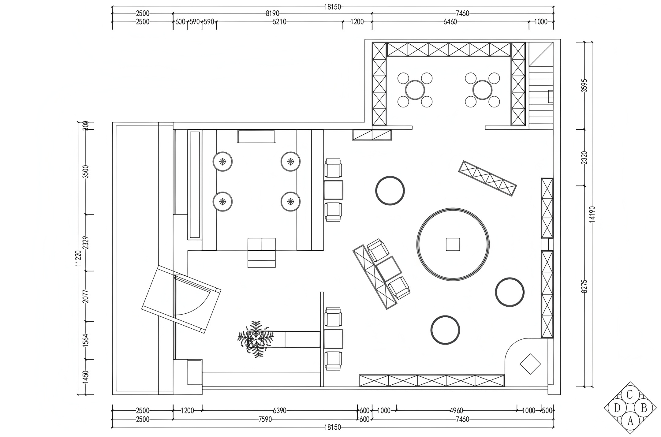
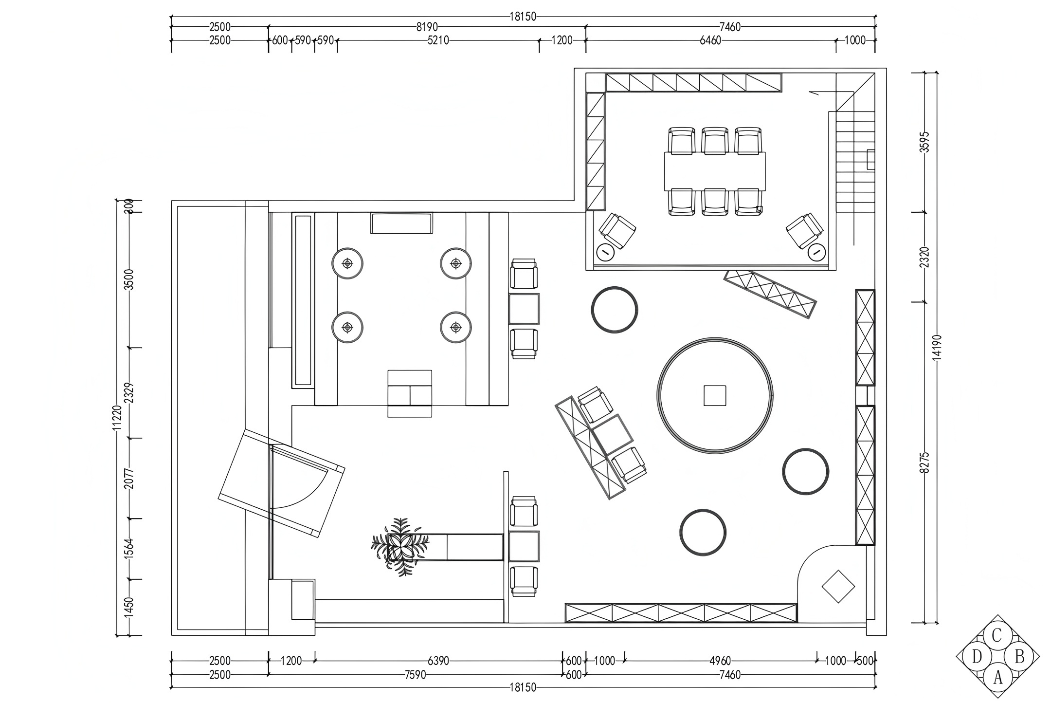
爬宠区以一棵“树”作为生态领地的心脏与命脉。围绕树铺展出一条回形动线,引导来访者缓步绕行,从各个角度观察爬宠们最真实的生活状态。我们摒弃了冰冷的玻璃与金属,选用经过处理的天然木材,打造爬宠舒适家园,每一寸纹理都保留着森林的温度。
抬头望去,老厂房原始的顶部管道未被拆除,而是被悉数覆上一层沉静的绿色,如藤蔓般蜿蜒穿行于工业遗迹之间,既消解了管线的杂乱,又以抽象的语言将雨林的绿意延伸至天际。在这里,爬宠才是原住民,而我们只是沿着回廊静静穿行的旁观者。
树下,落座区沿着回形动线静静铺展。座位之间刻意保持着适度的距离,为每一位到访者与手中爬宠独处的私密空间。在热植的环绕簇拥之中与爬宠亲密接触,人与动物的界限在共处的静谧中悄然消融。
半空静观,厚土新生
Observing from the sky
the fertile land is reborn
-
依托老厂房层高优势,在半空中架设起一座独立的二层空间。向上,是私密的办公与洽谈区域,可以俯瞰整片“雨林”。向下,释放出完整的地面区域,将其改造为爬宠繁育培育的天然场所:温控、湿控、隐蔽与产卵区有序铺陈,每一处细节都遵循物种繁衍的本能需求。人与爬宠各据一层,不仅是空间的高效利用,更是守护着另一个物种的未来。
项目名称 / Name | 绿觅 · 尾巴屋 项目类型 / Type | 商业空间
项目位置 / Location | 中国·西安
项目面积 / Area | 190㎡
完工时间 / Time | 2025.主创设计师 / Design | 梁帆文字撰写、排版 / Write | 小 宫项目摄影 / Photo | 焦阳
主案设计师 梁帆
陕西梁辰造物建筑设计
创始人/设计总监
客服
消息
收藏
下载
最近






























