查看完整案例

收藏

下载
东侧景观©HENN
位于曼海姆的德国语言论坛,是一座集博物馆与科学中心于一体的建筑,一处促进科学与社会对话的独特空间。莱布尼德语茨研究所将在此设立展览空间与互动研究设施。建筑旨在打造一个面向公众的交流场所,通过互动展示、讨论与持续研究,让访客深入感受语言的本质,以及其无处不在的存在与多样性。
Designed as part museum, part science center, the Forum Deutsche Sprache (German Language Forum) in Mannheim is a unique building where science and society engage in dialogue. The Leibniz-Institut für Deutsche Sprache (Leibniz Institute for the German Language) will use it as an exhibition space and interactive research facility. It creates a public meeting place where interactive presentations, discussions, and ongoing research allow visitors to experience the nature of language, its omnipresence and diversity.
我们的设计方案在2021年的建筑设计竞赛中脱颖而出并中标。2026年3月18日,该项目举行开工奠基仪式,项目预计2028年竣工。
Our design for the new building was selected as the winning entry in an architectural competition in 2021. With a symbolic groundbreaking ceremony and the laying of the foundation stone, construction officially began on March 18, 2026, for the Forum Deutsche Sprache (German Language Forum) in Mannheim. Completion is planned for 2028.
©Nikola Haubner /Forum Deutsche Sprache
曼海姆市市长Christian Specht在仪式上说道:“德国语言论坛位于城市核心地带,连接Neckarstadt区与市中心。它不仅是一个关注语言的场所,也将成为促进民主交流、对话与社会多元的重要空间。”
At the foundation stone ceremony, Christian Specht, Mayor of Mannheim, said: "Right in the heart of Mannheim, at the intersection between Neckarstadt and downtown, the Forum Deutsche Sprache is taking shape as a place dedicated not only to our language, but to democratic exchange, dialogue, and social diversity."
从左到右:Lilian Knobel, Klaus Tschira Stiftung, Mayor of Mannheim Christian Specht, Gabriele Herrmann-Krotz and Henning Lobin, both Leibnitz Institut für Deutsche Sprache©Nikola Haubner/ Forum Deutsche Sprache
莱布尼茨德语研究所(IDS)所长亨宁·洛宾(Henning Lobin)教授认为:“当下,我们比任何时候都更需要这一项目。语言,以及对其影响的理解,是维系社会的重要基础,尤其是在技术迅速发展的当下。”
Prof. Dr. Henning Lobin, Scientific Director of the Leibniz Institute for the German Language, commented: "We need the Forum Deutsche Sprache now more than ever, because language, and understanding its impact, are essential to keeping a society together, especially in times of rapid technological change."
©Nikola Haubner/ Forum Deutsche Sprache
HENN海茵建筑合伙人弗雷德里克·沃纳(Fredrik Werner)则补充:“该建筑的外观特征体现在其分层立面之中,象征语言的复杂性。外层采用ETFE膜构成通透的围护结构,包裹建筑主体,并对内部木结构起到保护作用。”
Fredrik Werner, the responsible Partner at HENN, added:"The distinctive look of the new building is defined by its layered façade, symbolizing the complexity of language. It features a transparent outer shell of ETFE film that wraps around the structure and protects the wooden elements beneath."
大厅©HENN
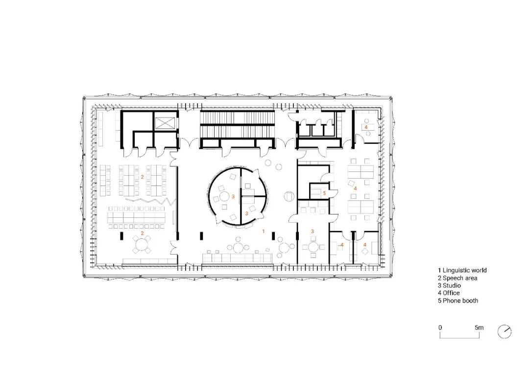
德国语言论坛坐落于曼海姆市北部Neckarstadt区的老展览广场,建筑外立面与广场城市边界相呼应,并向内卡河延伸。河畔区域也将同步进行重新规划设计。建筑底层采用全景玻璃幕墙设计,三层主体结构从基座向上延伸,悬挑于广场上空,以此吸引参观者步入内部探索。这一设计打造出开放式的交流空间,一个悬浮于室内与室外、大堂与广场之间的过渡地带,为所有参观者、工作人员与周边居民提供了相聚交流的场所。底层的玻璃通透空间可俯瞰内卡河畔景致,可在此举办特色展览、文学朗读与科学脱口秀等活动,广场一侧还规划有向公众开放的野餐区。
The Forum Deutsche Sprache will be situated at Alter Messplatz in the Neckarstadt district in the northern part of Mannheim. The new build aligns with the urban perimeter of the square and extends it towards the Neckar River, whose riverside will be undergoing a redesign at the same time. Three stories rise from the ground floor, which is almost fully glazed. They project from the building base into the space above the square to invite visitors to explore the interiors. This design creates an open forum, a floating space between inside and outside – lobby and square – that provides a place to meet for all visitors, employees, and people from the neighborhood. This is where a glazed space opening views of the Neckar River provides options for special exhibitions, readings, and science slams. The setting also includes a publicly accessible picnic area extending towards Alter Messplatz.
展览层©HENN
参观者搭乘电梯抵达三层后,便开启展陈游览之旅,游览路线沿楼层蜿蜒向下,直至底层。由Atelier Brückner工作室设计的虚拟展陈,带领参观者领略语言的多样性、德语与其他语言交融中的持续演变、语言科技的发展,以及不同语言体系下的社会话语表达。通过与展品互动并提供口头或书面的“语言捐赠”,参观者可亲自参与语言研究。研究人员的办公区直接融入下层两层的展陈空间,建筑顶层的屋顶露台可俯瞰内卡河全景与城市天际线,对工作人员与博物馆参观者均开放使用。
展览©HENN
建筑各楼层均为裸露坚固的混凝土主体结构,以此塑造独有的建筑美学表达。梁柱将各楼层划分为多个独立展区,每个展区对应一个特色语言主题,诠释语言的多元魅力。建筑外立面采用多层设计,与语言的丰富层次相呼应:内部为混凝土框架结构,外侧由封闭式木框架构件与梁柱结构交错组成,外层再铺设可调节木质百叶;木质构件前加装一层固定式ETFE薄膜层,进一步强化了建筑的视觉辨识度。
The robust concrete structure remains visible across all floors to determine the building’s architectural expression. Beams and columns divide the levels into smaller zones, each of which houses a different language world as part of the exhibition. Alluding to the multifaceted nature of language, a multilayered façade envelops the new build. The interior structural framework is designed as a concrete skeleton enclosed by an alternating façade composed of closed timber frame elements and a post-and-beam structure, which, in turn, is covered by adjustable wooden louvers. A fixed protective ETFE film layer placed in front of these wooden elements enhances the striking character of the building.
展示模型,原比例 1:100©HENN
展示模型,原比例 1:100©HENN
展示模型,原比例 1:100©HENN
展示模型,原比例 1:100©HENN
这座由克劳斯・奇拉基金会资助打造的德国语言论坛,为Neckarstadt区增添了全新的文化地标,为这片城区搭建起跨代际对话、包容交流的空间。如同语言本身的使命,这座建筑促进着人们的联结与沟通。
The Forum Deutsche Sprache endowed by Klaus Tschira Stiftung adds a new cultural site to Neckarstadt that provides a space for intergenerational dialogue, inclusion, and exchange in this urban district. Like language as such, the building facilitates connection and communication.
概念图©HENN
总平面图,原比例 1:1000©HENN
一层平面图,原比例 1:100©HENN
二层平面图,原比例 1:100©HENN
四层平面图,原比例 1:100©HENN
纵向剖面图,原比例 1:100©HENN
横向剖面图,原比例 1:100©HENN
项目信息:
竞赛:2021年, 一等奖
动工年份:2026年
竣工年份:2028年
服务范围:LP1 to LP8 HOAI,项目规划
项目类型:新建
业主:Klaus Tschira Stiftung gGmbH
用户:Leibniz-Institut für Deutsche Sprache
地址:德国曼海姆Dammstraße 1, 68169
占地面积:1500m²
总建筑面积:4700 m²
高度 x 宽度 x 长度:25 x 25 x 42 m
楼层:地上5层,地下1层
功能:展览空间、办公区、活动大厅、研讨室、野餐区、屋顶露台
可持续性认证:DGNB金级认证
可持续发展理念:
ETFE 薄膜:可回收利用,相较全玻璃幕墙降低碳足迹
因灵活空间设计而具备长久使用寿命
屋顶光伏系统
易于维护的建筑围护结构
立面:
ETFE薄膜框架尺寸:6.30 x 8.10米
拱形结构与缆绳系统实现ETFE薄膜稳定支撑
项目管理:Schumann Projektsteuerung
建筑设计:HENN海茵建筑
项目团队:
主持合伙人:Fredrik Werner
项目总监:Lisa Reiter, Katrin Thonicke
总设计师:Martin Henn
设计团队:Alexandra Berger, Peter Botor, Philip Deeg, Elke Gebhard, Malin Näsström, Anela Osmic, Leonidas Tsiolis, Michaela Weinberger
竞赛团队:Jörn Frenzel, Joachim Grund, Sean Hajdu, Martin Henn, Aselya Iskakova, Oliver Koch, Quang Le, Armin Nemati
顾问:
Atelier Brückner (展览规划), osd GmbH (结构工程师、立面规划), form TL GmbH (轻型结构、立面规划), Drytech GmbH (防水混凝土设计), Rieser Wessel Brandschutz- sachverständige GBR (消防), Stahl + Weiß Part GmbH (建筑物理), Engineering Consult PartGmbH (建筑服务), Töniges GmbH (场地工程), Hydtrotherm Consult GmbH (水文地质), SBI Schneider Beratende Ingenieure für Elektronik (电气过程), Gebauer & Manser GmbH (测量)
客服
消息
收藏
下载
最近




















