查看完整案例

收藏

下载
苏州的寒山寺,每天都很忙。游客从四面八方而来,烧香、撞钟、看碑刻,热闹是真热闹。但若是想在寺里找个安静的角落,坐下来看会儿书,抄抄经,或者细细欣赏一些艺术作品,却并不容易。人流量太大,加上能用来做这些事的空间本身也有限,那些需要沉下心才能感受的意趣,很难在这里充分展开。与寒山寺相邻,无设建筑的新作——寒山别院,不久前落成了。它不是寺庙的附属建筑,更像是从寒山寺的人文脉络里长出来的一片“留白”。
Hanshan Temple in Suzhou is bustling every day. Tourists flock here from all directions to burn incense, ring the temple bell, and view the stone inscriptions—it’s truly a lively scene. But if you’re hoping to find a quiet corner within the temple to sit down and read a book, copy some sutras, or carefully appreciate some works of art, it’s not easy. With such heavy foot traffic and limited space available for these activities, it is difficult to fully experience the subtle pleasures that require a calm and focused mind. Adjacent to Hanshan Temple, a new structure—Hanshan Retreat—was recently completed. It is not an annex to the temple but rather a “empty space” that seems to have grown organically from the cultural context of Hanshan Temple.
© Y³STUDIO外立方空间影像
01 功能的留白:安放那些需要慢下来感受的东西
01 Functional Empty Space: A place for things that require a moment to savor
寒山别院的出现,是对寒山寺人文功能的一种延伸——把那些受限于空间、无法在寺内展开的内容,在这里落地。这里实现的是多功能场景:美术馆空间,定期邀请与佛学、生活美学相关的艺术家来做展览;书院空间,采取预约制,让真正想抄经、看书的人,可以不受打扰地静心做自己的事。还有茶室空间,可以坐下来,清清静静喝几杯茶。
The establishment of Hanshan Retreat serves as an extension of Hanshan Temple’s cultural functions—providing a venue for activities that could not be accommodated within the temple due to space constraints. The site offers a multifunctional environment: an art gallery space that regularly hosts exhibitions by artists working in the fields of Buddhist studies and life aesthetics; a study hall space, accessible by appointment, where those genuinely interested in copying sutras or reading books can focus undisturbed on their pursuits; and a tea room where visitors can sit down and enjoy a few cups of tea in peace and quiet.
▼入口夜景,night view of the entrance© Y³STUDIO外立方空间影像
▼光影,light and shadow© Y³STUDIO外立方空间影像
▼logo细部,details of the logo© Y³STUDIO外立方空间影像
▼室内视角,interior view© Y³STUDIO外立方空间影像
▼外观,exterior view© Y³STUDIO外立方空间影像
▼室内一角,corner of interior© Y³STUDIO外立方空间影像
▼茶室,tea room© Y³STUDIO外立方空间影像
02 空间的留白:古意今用,一切留有余地
02 Spatial Empty Space: Blending ancient charm with modern use, leaving room for everything
走进寒山别院,最让人印象深刻的,是那个“留白”的主厅。整个主厅几乎都是空的,除了中间一个四面开放的岛台。这不是设计上的疏漏,而是刻意留出来的余地——以后这里可以做沙龙、办展览、搞讲座,空间能随时变换角色。顶部开设了天窗,光影在地上缓缓移动,像日晷一样,帮你在空间里感知时间的流逝。
Upon entering Hanshan Retreat, what leaves the deepest impression is the main hall with its “empty space.” The entire main hall is almost completely empty, except for an open-sided island platform in the center. This is not an oversight in the design, but rather a deliberate choice to leave room for flexibility—in the future, this space can be used for salons, exhibitions, or lectures, and its function can be adapted at any time. Skylights have been installed in the ceiling, casting shifting patterns of light and shadow on the floor. Like a sundial, they help you perceive the passage of time within the space.
▼夜景,night view© Y³STUDIO外立方空间影像
▼主厅,the main hall© Y³STUDIO外立方空间影像
▼四面开放的岛台,anisland counter that is open on all four sides© Y³STUDIO外立方空间影像
▼天花板细部,details of the ceiling© Y³STUDIO外立方空间影像
▼细部,details© Y³STUDIO外立方空间影像
主厅两边相对的柱子疏密不同,密度是1:1.5的比例,留出了天然的节奏感。密度大的那一侧,每个柱间都可以成为小型展示区,暗藏挂画轨道,顶上的木梁也能承重布展。平日空着,是通透的通道;有展览时,随时变身展陈空间。中间的岛台四面开放,日常的咖啡、茶水都由这里提供,有活动时就是场域的服务中心。空间本身很克制,能承载的内容却远比看上去丰富。
The columns on either side of the main hall are arranged at varying densities, with a ratio of 1:1.5, creating a natural sense of rhythm. On the denser side, the space between each column can serve as a small exhibition area, featuring hidden picture rails, while the wooden beams above can also support exhibition installations. On ordinary days, it serves as an open, airy passageway; during exhibitions, it instantly transforms into a display space. The central island counter is open on all four sides. It serves as a daily hub for coffee and tea, and during events, it functions as the venue’s service center. While the space itself is understated, its capacity to accommodate content is far richer than it appears.
▼主厅两边相对的柱子疏密不同,the columns on either side of the main hall are arranged at varying densities© Y³STUDIO外立方空间影像
▼天窗,the skylight© Y³STUDIO外立方空间影像
▼四面开放的岛台,the island counter that is open on all four sides© Y³STUDIO外立方空间影像
▼空间本身很克制,能承载的内容却远比看上去丰富,While the space itself is understated, its capacity to accommodate content is far richer than it appears © Y³STUDIO外立方空间影像
▼岛台,the island counter© Y³STUDIO外立方空间影像
▼光影,light and shadow© Y³STUDIO外立方空间影像
▼咖啡岛台,the coffee counter© Y³STUDIO外立方空间影像
▼光影,light and shadow© Y³STUDIO外立方空间影像
▼通透的廊,transparent corridor© Y³STUDIO外立方空间影像
▼由庭院看岛台,viewing the counter from the courtyard© Y³STUDIO外立方空间影像
院子没有刻意复制传统苏式园林的形制,而用了更现代的手法,走进去,还是能撞见苏式园林里才有的那种清幽韵味。别院里还藏着几间小而安静的茶室,低调地嵌在空间里。不刻意,不拥挤,刚刚好。
The courtyard does not deliberately replicate the layout of traditional Suzhou-style gardens; instead, it employs a more modern approach. Yet, upon entering, one still encounters that serene and tranquil atmosphere unique to Suzhou-style gardens. The courtyard also houses several small, quiet tea rooms, discreetly nestled within the space. They feel natural, uncrowded, and just right.
▼庭院,the courtyard© Y³STUDIO外立方空间影像
▼庭院,the courtyard© Y³STUDIO外立方空间影像
▼廊下空间,the space under eaves© Y³STUDIO外立方空间影像
▼庭院的清幽韵味,the serene charm of the courtyard© Y³STUDIO外立方空间影像
▼细部,details© Y³STUDIO外立方空间影像
▼茶室,the tea room© Y³STUDIO外立方空间影像
03 材料的留白:新与旧的安静对话
03 Material Empty Space: A quiet dialogue between the new and the old
材料的选择上,顾忆团队既不刻意仿古,也不一味求新,就在苏州本地找那些带着年代、有故事的自然材料。吧台上方的木梁,是当地寻来的老木头;进门的地面,用老石板重新打磨铺就;入口处的太湖石,连同底座也都是老物件……佛像底下那块红色石头,取自清代的旧石料,经过大漆的处理,成为一座近乎现代意味的艺术装置。旧木、老石、新墙、玻璃,这些元素放在一起,没有谁抢谁的风头,反而生出一种安静的默契,各自安好。
When selecting materials, Gu Yi’s team neither deliberately sought an antique look nor blindly pursued novelty; instead, they sourced natural materials from Suzhou that carried the weight of history and had their own stories. The wooden beam above the bar counter is made of reclaimed timber sourced locally; the floor at the entrance features old stone slabs that have been re-polished and laid anew; the Taihu stone at the entrance, along with its base, is also an antique piece… The red stone beneath the Buddha statue is taken from old Qing Dynasty stone quarries; treated with lacquer, it has been transformed into an art installation with a distinctly modern feel. Old wood, weathered stone, new walls, and glass—when brought together, none of these elements overshadows the others; instead, they form a quiet harmony, each finding its own place.
▼吧台上方的木梁,the wooden beam above the bar counter© Y³STUDIO外立方空间影像
▼室外视角,exterior view© Y³STUDIO外立方空间影像
▼室内视角,interior view© Y³STUDIO外立方空间影像
▼夜景,night view© Y³STUDIO外立方空间影像
▼庭院与细部,patio and details© Y³STUDIO外立方空间影像
下次去寒山寺,如果逛完还想再待一会儿,不妨多走几步,到寒山别院来坐坐。一墙之外,是香火与人声的热闹;在别院感受到的,只有安静。当天光自顶部洒落,不急不缓地在地面留下温柔的足迹。翻几页书,喝一盏茶,或者只是坐着,发一会儿呆……等从别院出来,再回想刚逛过的寺门内外,会有一瞬间的恍惚。一边是千年来不曾断过的香火,一边是只有光在替时间游走的清寂。热闹是它,清寂也是它。两条路,几步之遥,走出来的却是两种心境。
Next time you visit Hanshan Temple, if you wish to stay a while longer after your tour, why not take a few more steps and sit quietly at Hanshan Retreat. Just beyond the wall lies the bustling atmosphere of incense and voices; within the retreat, however, you’ll find nothing but tranquility. As sunlight streams in from above, it casts gentle patterns on the ground at a leisurely pace. Flip through a few pages of a book, sip a cup of tea, or simply sit and let your mind wander for a while…When you emerge from the retreat and look back on the temple grounds you’ve just explored, you may slip into a trance for a fleeting moment. On one side lies the unbroken stream of incense that has flowed for a thousand years; on the other, a serene stillness where only light moves through time. The bustle is part of it; the stillness is part of it too. Two paths, just a few steps apart, yet they lead to two entirely different states of mind.
▼夜景,night view© Y³STUDIO外立方空间影像
▼室内夜景,night view of interior© Y³STUDIO外立方空间影像
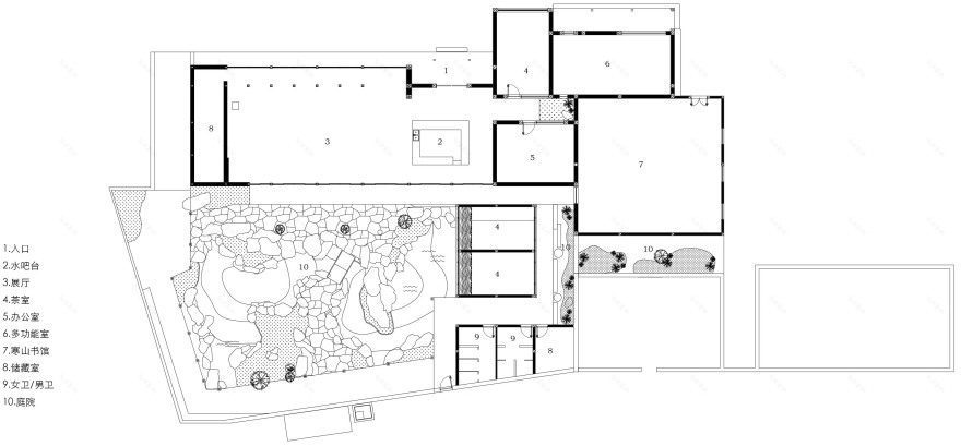
▼平面图,plan© 无设建筑
项目信息
项目名称:寒山别院
设计事务所:无设建筑
设计团队:顾忆、苏美娜、高峰、万如雪、石琳
设计内容:建筑、室内、景观、软装、标识
项目面积:建筑面积620㎡,庭院面积415㎡
项目地址: 江苏省苏州市姑苏区枫桥风景名胜区
完工日期:2025年12月
项目类型:公共空间
主要材料:真石漆、艺术涂料、莱姆石、水泥砖、木构
工程单位:上海耀钰建筑装饰工程有限公司
结构设计单位:翊构营造
空间摄影:Y³ STUDIO外立方空间影像
Project Information
Project Name: Hanshan Retreat
Architectural Firm: NOT A Studio
Design Team: Gu Yi, Su Meina, Gao Feng, Wan Ruxue, Shi Lin
Scope of Work: Architecture, Interior Design, Landscape Architecture, Soft Furnishings, Signage
Project Area: 620 sqm (gross floor area), 415 sqm (courtyard area)
Project Location: Fengqiao Scenic Area, Gusu District, Suzhou City, Jiangsu Province
Completion Date: December 2025
Project Type: Public Space
Main Materials: Stone - effect paint, artistic coatings, limestone, cement bricks, woodwork
Construction Contractor: Shanghai Yaoyu Architectural Decoration Engineering Co., Ltd.
Structural Design Firm: Yigou Construction
Interior Photography: Y³ STUDIO
客服
消息
收藏
下载
最近














































































