查看完整案例

收藏

下载
巴黎是一座在晨光中缓缓铺陈开的、由多重感官肌理交织而成的活态画卷。而绍兴以水为墨,在粉墙黛瓦上洇开流动长卷,于斑驳倒影间勾出灵动的虚白。法云设计以法式叙事将巴黎的克制与丰盛译成绍兴的语境——于是,家,成为一部被水与光共同书写的温柔仪式,成为一段可居可游的流动诗篇。
“生活的奥秘,存在于艺术之中。”——王尔德
当设计与艺术介入居所,为居住者倾尽想象。家庭私宴区似一个被涟漪轻轻托起的白色岛屿,悬浮于秩序之中。
空间以象牙白与奶油色为基底,却跳脱冷峻桎梏:于“无色彩”中织就丰盈肌理,令餐桌始终稳踞视觉核心。水晶灯盏与桌面同频呼吸,鎏金光痕蜿蜒游走,跨越时空的艺术对话在此交融,恰如其分的展示精致的生活选择。
家的神性时刻,从不生于物质堆砌。它是一首用空间写就的抒情诗,吟唱着永恒的光阴絮语。最终,空间将表达权交还生活本身:
柔软,是空间的第二语言;
日常,是最动人的策展。
选择极简不是削减,而是艺术的选择性表达。灵活的线条围合出具有包裹感的舒适场域,既有空间构图的严谨,也有情感层面的柔和。圆弧、曲线不断出现,置身其中,流畅感犹如在流动的水中穿行。
设计引光为墨,任其成为空间唯一的流动颜料。四时流转,情绪在光中悄然释放——客厅由此蜕去“待客”标签,而是一处 可停泊、可呼吸 的精神水岸。
陈设的艺术之于住宅,绝非止于视觉,更是私密的体验场域。内敛的调性、隽永的留白、坚硬的材质低语柔和……在开放格局与亲密氛围间寻得精妙平衡。设计因此更具魅力,令每一次“体验”都绽放出稀有的光芒与个性。
设计真谛,从非形制叠加,而是唤醒空间新生,创造栖居之所。
优雅,是卧室内敛的气质;浪漫,则是对生活热爱的无声宣言。
生活的巧思置入每一位入住者的私享空间中,以流动诗意的空间情绪,为眼前的欣赏者,娓娓道来,生动且饱满的灵魂。低饱和的暖杏色墙漆,像傍晚最后一抹斜阳,落在半旧的藤椅与棉麻靠垫上,把皱纹里的故事照得柔软。
当古典风骨与前卫精神在此交融共鸣,设计巧妙弥合复古与现代的界限--柔软陈设(抱枕、床品 )与线条结构(弧形床头、柜体线条 )相得益彰,赋予空间静谧平衡感。这方空间既臻于艺术之境,亦沉淀永恒格调,引领居者循心而行,沉浸于生活之美。
居所,化身承载生活的艺术容器。每一次推门、转角、光影邂逅,都化为精心策划的仪式,让居者在日常中,不断发现新的仪式与惊喜。
燕麦奶色漫开,像晨曦下的马场薄雾;一抹赤陶马鞍棕从床头“跃出”勾勒出缰绳般的流线,轻绕成弧形扶手,既是装饰,也似随时能跃上马背的安心倚靠。细节处,在温柔的色盘里点出俏皮,把马术的优雅、力量与自由,轻轻地种进她的心里,让家成为策马远方的起点。
一块潮流的冲浪板,不仅是张扬个性的宣言,更在卧室中锚定了专属的生活场景。这里,不止于休憩,更是展现生活态度的“私人展厅”。设计将热爱悄然融入日常,靛蓝的海浪似在空间翻涌,将房间化作一艘整装待发的冲浪艇——劈开眼前的海浪,直抵梦境的蔚蓝。
设计以对比书写和谐:纯净内敛的界面不与原始肌理争辉;复古旧物、现代造型与艺术品共叙新章,细节中的反差感反酿出深邃宁静。
在流动的艺术中,高奢品位以平常姿态雕琢入微,令沉静的地下空间生出温润呼吸。延展并升华了浪漫气质,通透的设计细节与精妙陈设相契,开启一场自然静奢之旅——不事张扬,只为成全本真。
永恒的栖居策展:当推门声成为序曲,转角遇见光影奏鸣,家的每个瞬间皆是精心编排的仪式。居所终将超越物理容器,升华为灵魂的策展现场——生活本身,已成最磅礴的艺术。
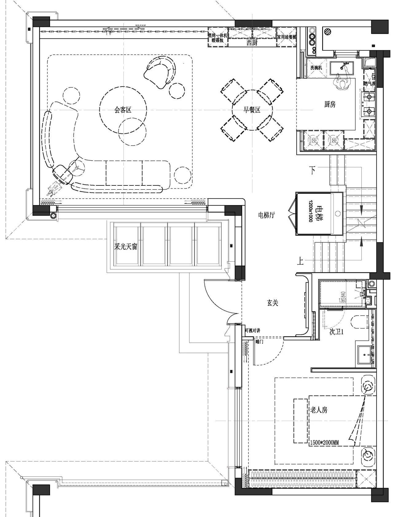
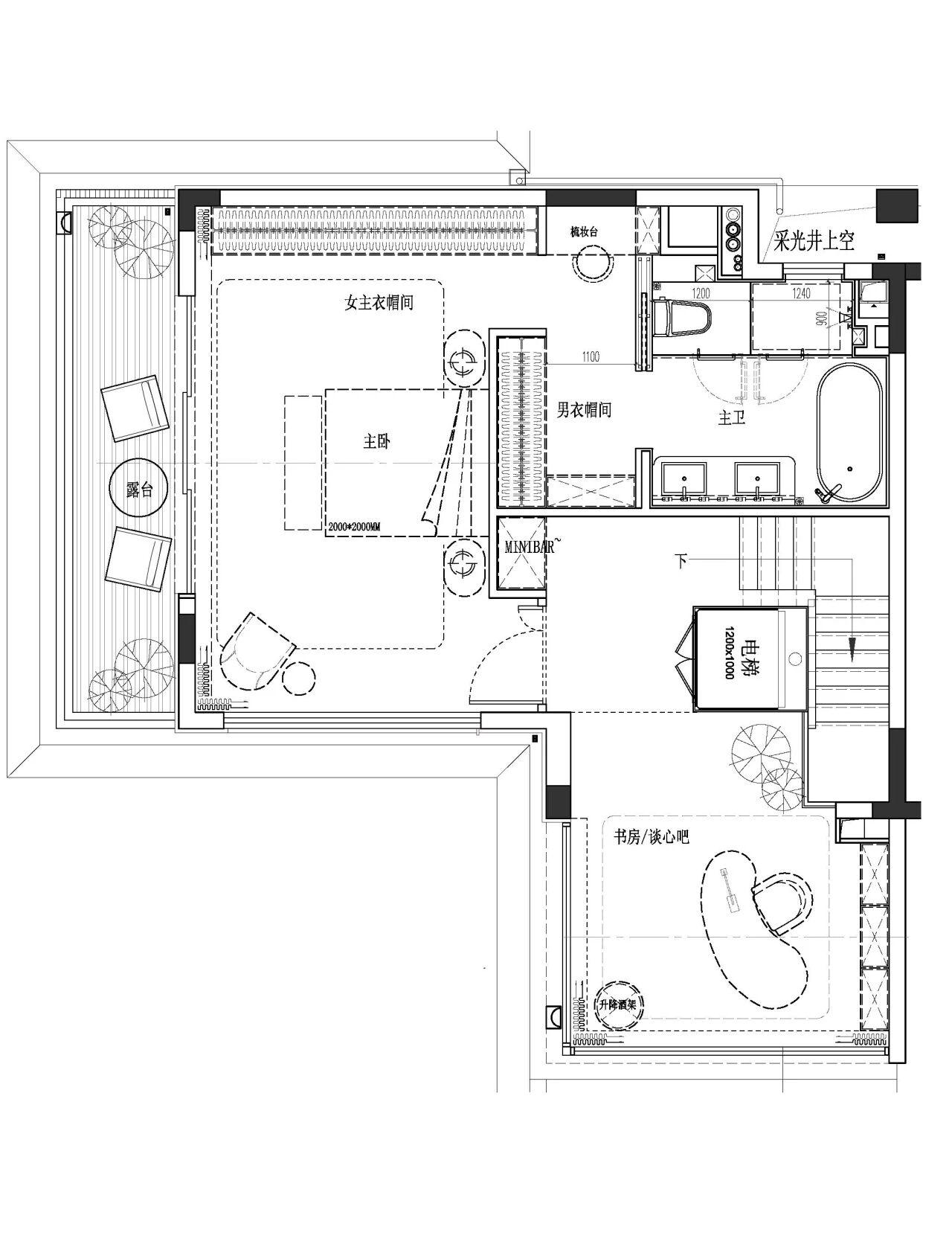
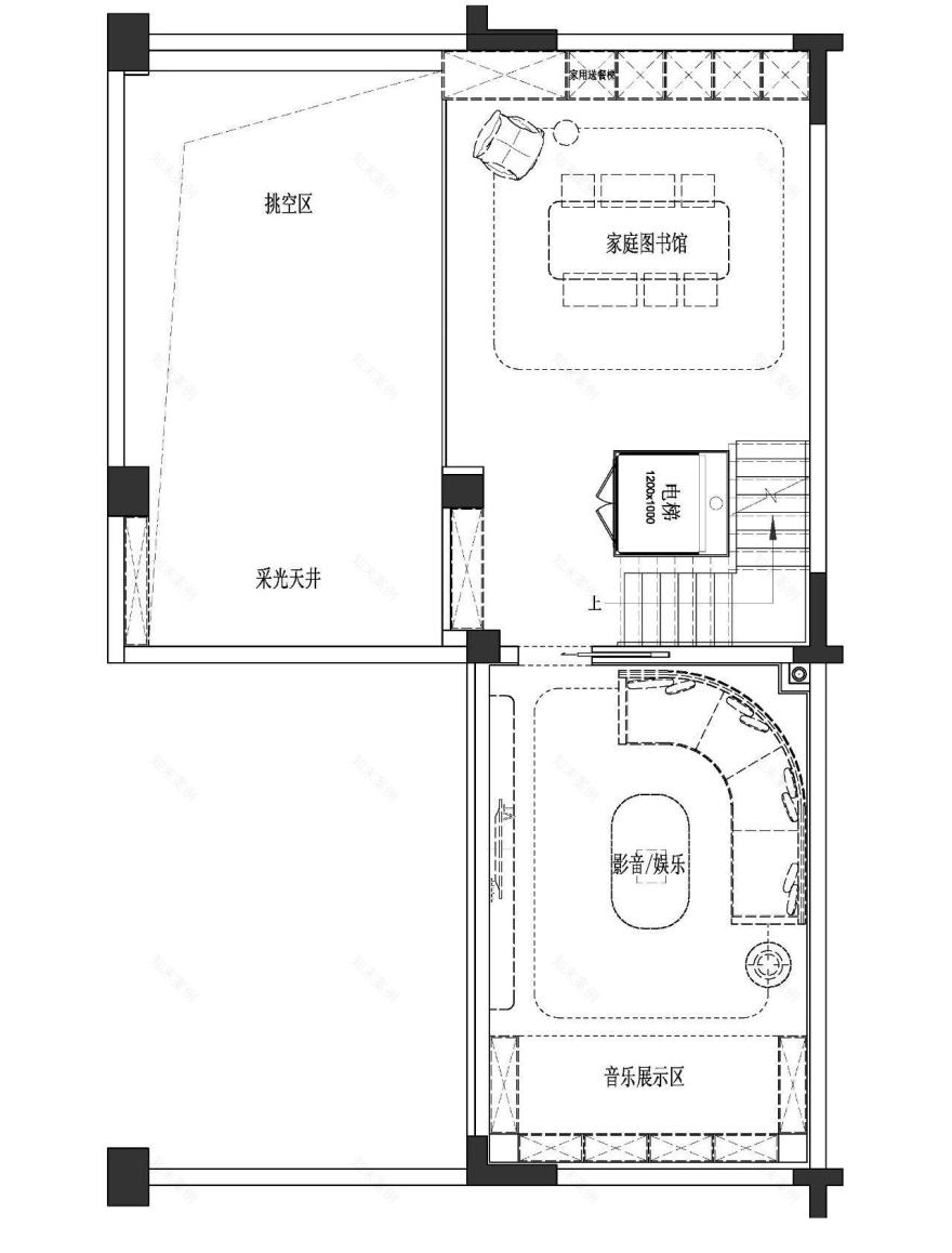
平面图
项目信息
项目名称丨华润置地绍兴245样板间
甲方单位丨华润置地
软装设计丨上海法云设计
完工时间丨2025年8月
项目地点丨浙江绍兴
项目摄影丨张大齐
客服
消息
收藏
下载
最近







































