查看完整案例

收藏

下载

翻译
Architects:Manuel Bouzas,salazarsequeromedina
Year:2026
Category:Temporary Installations
City:Madrid
Country:Spain
Text description provided by the architects. The 45th edition of ARCO 2026 takes as its central theme “two spaces within the fair.” Our proposal responds to this duality: on the one hand, a constructed space—the Guest Lounge—and on the other, an evoked space—the forests of the northwestern Iberian Peninsula that burned uncontrollably this past August.
The project’s title, 350,000 Ha, refers to the total number of hectares scorched during those tragic wildfires, according to data from Spain’s Ministry for the Ecological Transition. Of these, 150,000 ha were in the province of Ourense alone. August 2025 may be remembered as one of the darkest months in recent history—or, perhaps, as the moment when a new civic consciousness began to take shape among the ashes.
The project proposes a Guest Lounge articulated around two central ideas. The first is the Material Palette: constructing the entire project using timber salvaged from burned forests, where clearing operations are currently underway. The second is Lumbre: exploring the primitive and captivating atmosphere of fire, understood as a force capable of bringing people together around its warm glow—just as this space will during the fair.
“We conceive this project as a material laboratory: an exploration of the stories that resources and landscapes are able to tell. With them, we propose a flexible space—calm and convivial during the day—that can transform into a stage for celebration at night; an exceptional island amid the intensity of the fair: more in shadow than exposed, more veiled than opaque, lighter than heavy.”
Material Palette - According to recent data, the wildfires generated 1.5 million tons of burned timber—almost half the annual volume of harvested wood. Contrary to what one might assume, most of this wood presents only superficial damage and retains a solid, usable inner core. The forestry sector has warned of the urgent need to remove the timber within the next six months to prevent deterioration and the risk of pests.
Since September, FINSA—our primary partner—has been actively collaborating in the restoration of these forests and in the early recovery of the material. Our project mobilizes four types of reclaimed resources:
Costeros: The four outer segments of charred bark removed prior to sawing. Typically shredded for boards, here they are reused as cladding.
Sawn timber: The intact inner core is cut and used structurally to construct a series of planes of light that serve as the lumbre.
Veneer: By “peeling” the inner core, thin sheets of 2–3 mm are obtained, traditionally used in plywood. These veneers will clad the skin of the Lumbre.
Fiberboard: Branches, bark, and unusable trunks are shredded to produce OSB panels, here used as restaurant cladding.
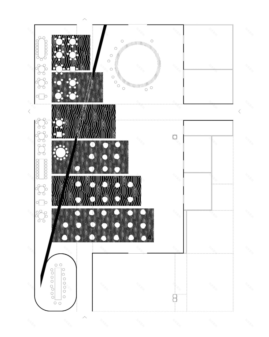
Lumbre - The project proposes the construction of a monumental-scale lumbre, capable of gathering visitors within a warm, welcoming, and captivating atmosphere. We imagine silhouettes cut in backlight—like a Chinese shadow theater—in a dimly lit space where a soft glow stands in contrast to the visual noise of the rest of the fair.
We seek to provoke a hypnotic experience of congregation, akin to the sun installed by Olafur Eliasson at Tate Modern in 2003. At the same time, we envision an intimate, almost domestic environment reminiscent of the candlelit scenes in Barry Lyndon by Stanley Kubrick. A space inviting individual rest, like Man with a Beard Reading by Candlelight by Godfried Schalcken. All of this is constructed from a constellation of unique yet kindred elements, evoking the Akari family of paper lamps that Isamu Noguchi produced in Japan.
Atmosphere - The project is organized around the contrast between light and darkness. Six diagonal planes of light are suspended four meters above the ground using metal trusses. These planes, functioning as lamps, are clad in thin wooden veneers that receive light projected by spotlights. These hang from another, independent and adjustable truss. This lumbre faces a dark rectangular space where visitors rest informally. Surrounding it are the bar, cloakroom, sponsor areas, and a diagonal wall that divides the rectangle into two triangles: a dark one, housing the Bar Lounge, and a golden one containing the restaurant and a private VIP room.
Project gallery
客服
消息
收藏
下载
最近

























