查看完整案例

收藏

下载
设计终将隐退唯生活永恒流动于此
当“居住”被定义为一场持续的生活实验,如何让传统的居住布局既承载浓郁的家庭烟火,又保有切换场景的留白?答案在于:以色彩解构秩序,以材质软化边界,以光影雕刻时间。
步入餐厅,一场关于浪漫与优雅的盛宴悄然铺陈。椭圆桌面消弭“主位”概念,让每一件摆件都可能成为话题中心。原始质感的材质温柔过滤了烟火气,指尖触及的是生活的本真肌理。点睛的花艺,以白色与绿色的交织,仿佛将春日花园一角引入室内,清新气息扑面而来。
一旁的餐边柜,不仅是实用收纳,更是生活品味的展台。咖啡机、装饰画、精致摆件在灯光映照下有序陈列,于细节处无声诉说着品质与格调。
家的浪漫表达并非固定风格,而是一种“允许”——允许早餐延伸为下午茶,允许客厅生长出“帐篷”,允许每一次心动都为家写下新的注脚。
打破客-餐-厨-阳台的物理界限,居所的宁静与时间的悠长在此交织成画。作为家的核心,客厅挣脱了“衣食住行”的固定模式,充分诠释“不被定义的日常”理念,探索家的无限可能。
延续浪漫,柔软的沙发搭配灵动色彩点缀,和谐中注入活力。以一片梧桐,提前将秋意请进家中——撷取街道的烟火气,如午后斑驳的日影,落在客厅一隅,似上海巷口处悄然的落叶,停驻时光。写意的留白,将自然能放进生活的缝隙。雾白与暖白层层晕染,邀请居者用烟火日常绘制独有的人生故事。
米白作为最包容的底色,生活的惊喜在此显影——每一次转身,都可能触发新的故事章节,浪漫底蕴与当代风潮在此完美契合,随性而优雅。
打破边界的洄游之境,纳入的阳台空间,开放式布局让视野通透自由。集休憩、观景、艺术于一体的家庭共享区域,让生活场景多维度交织:闲适或欢聚,皆成动人诗篇。
“热爱,便是所有答案。” 在这里,找到自己的节奏,按意愿生活。真正的自由,是工作、艺术、家庭模式的无缝流转。这不仅是一处工作场所,更是静心阅读、沉思的私密港湾。慢下来的时光在此静静流淌,细细品味每一份松弛与悠然。
浅米色墙面与床品营造宁静舒适的睡眠氛围,淡粉色点缀增添甜美浪漫,契合孩童的天真烂漫。活力的色彩点缀激发好奇心与探索欲。这里是专属儿童的成长天地,以色彩陪伴成长,书写一段美好的青春故事。
借由生活细流雕琢,空间被赋予灵魂的笑靥与温情脉动。飘窗区域,是对生活的尊重与诗意的馈赠。阳光透过窗棂,洒在柔软坐垫、抱枕与边几上,摇曳的光影为空间增添动态美感。于此,尽享悠闲午后,感受生活的宁静与美好。
当色彩解构了刻板,材质柔化了区隔,光影雕刻了流动的日常,空间便超越了物理的容器,升华为容纳情感与灵感的诗意场域。每一次场景的切换,每一次心动的驻留,都是对“居住”定义的生动诠释。最终,我们雕琢了空间……
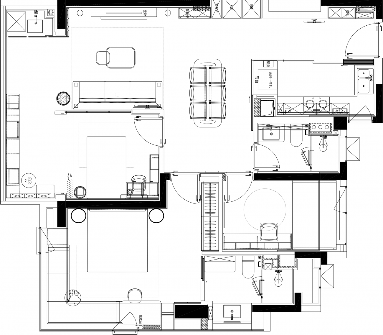
# 平面图 #
项目信息
项目名称丨华润杨思110样板间
甲方单位丨上海樾润置业有限公司
软装设计丨上海法云设计
室内设计丨集艾设计
完工时间丨2025年7月
项目地点丨上海
客服
消息
收藏
下载
最近



















