查看完整案例

收藏

下载

翻译
Architects:Kraft Architects
Area:111m²
Year:2025
Photographs:Takuya Seki
Lead Architects:Atsushi Nakamura, Hirari Sato
Category:Offices,Renovation
Lead Team:Hirari Sato
Engineering & Consulting > Structural:Shu Sekkei | Hirofumi Hiraki
City:Hida
Country:Japan
Text description provided by the architects. Kamioka, in Hida City, Gifu Prefecture, is a town shaped by layered histories. Once flourishing with the Kamioka Mine—formerly one of the largest in the East—it has since faced depopulation, aging, and a shortage of successors, conditions now shared by many regional towns in Japan. The client is a company that has long supported everyday life in this area through forest maintenance, hazardous tree removal, specialized logging, snow clearing, civil engineering, landscaping, pest control, and even local festivals. As the organization expanded and a generational transition began, questions about the future of both the company and the region became increasingly urgent.
This project involved relocating and expanding the company's headquarters by renovating the president's childhood home. Beyond creating a workplace for six daily staff members, the building also needed to accommodate gatherings of up to twenty people. Behind this requirement lay a tension specific to the region: the coexistence of a will toward change and a desire to carefully inherit values accumulated over time. Rather than resolving this tension into a single answer, we sought to create a place capable of holding different generations, positions, and attitudes together.
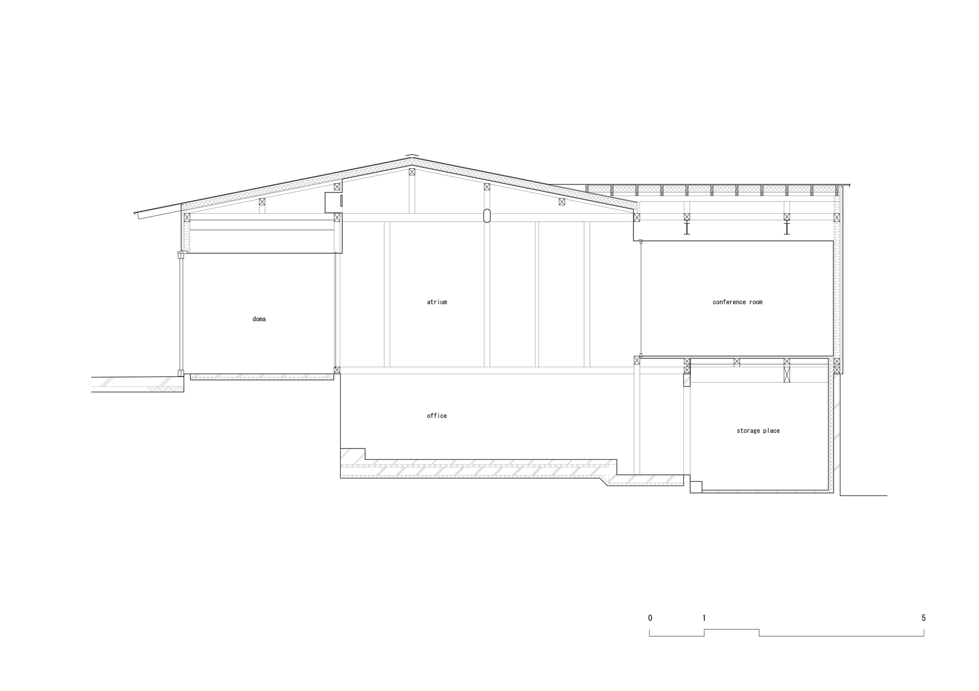
The site stands on elevated ground overlooking a town formed on a river terrace. Although the land gently descends from the south road toward the north, the existing house had been organized as a flat floor aligned with the road level. We instead focused on the material presence of the foundation adapting to the slope and reinterpreted this grounded, earthbound condition as the starting point of the design.
Below the road level, the interior becomes denser as it approaches the ground, forming a calm and focused working environment. Above, a more open and indeterminate space contains a table, kitchen, wood stove, and sofas, allowing gathering, discussion, and shared time across differences in generation and perspective. At the center, a large void is surrounded by skip floors, enabling contrasting atmospheres to coexist within one continuous spatial field.
Light, wind, seasonal shifts, and the passing of time were carefully drawn into the interior not simply as environmental comforts but as mediators of distance. They move across the building and subtly adjust relationships, allowing different presences to remain connected without forcing closeness. This approach reflects the client's own way of working in forests, where one continually reads surrounding conditions and chooses the right distance in response.
The project also extends this attitude into material selection. Flooring for the first-floor skip-floor area was developed from Robinia pseudoacacia, an invasive species planted on the devastated land of the Kamioka mine. In collaboration with local sawmills, its irregular dimensions and characteristics were accepted through a reconsidered sizing and laying system, forming a regional supply chain rooted in resource circulation. Rather than unifying values, the building quietly supports their gradual negotiation over time.
Project gallery
客服
消息
收藏
下载
最近




























