查看完整案例

收藏

下载
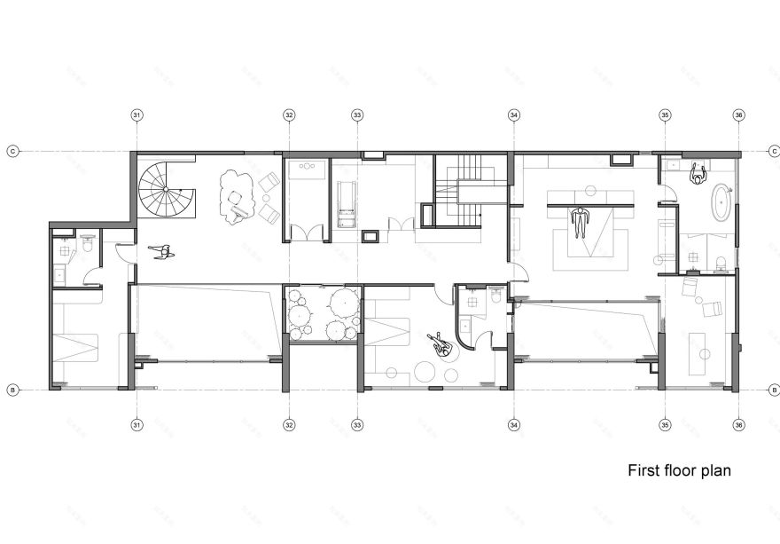
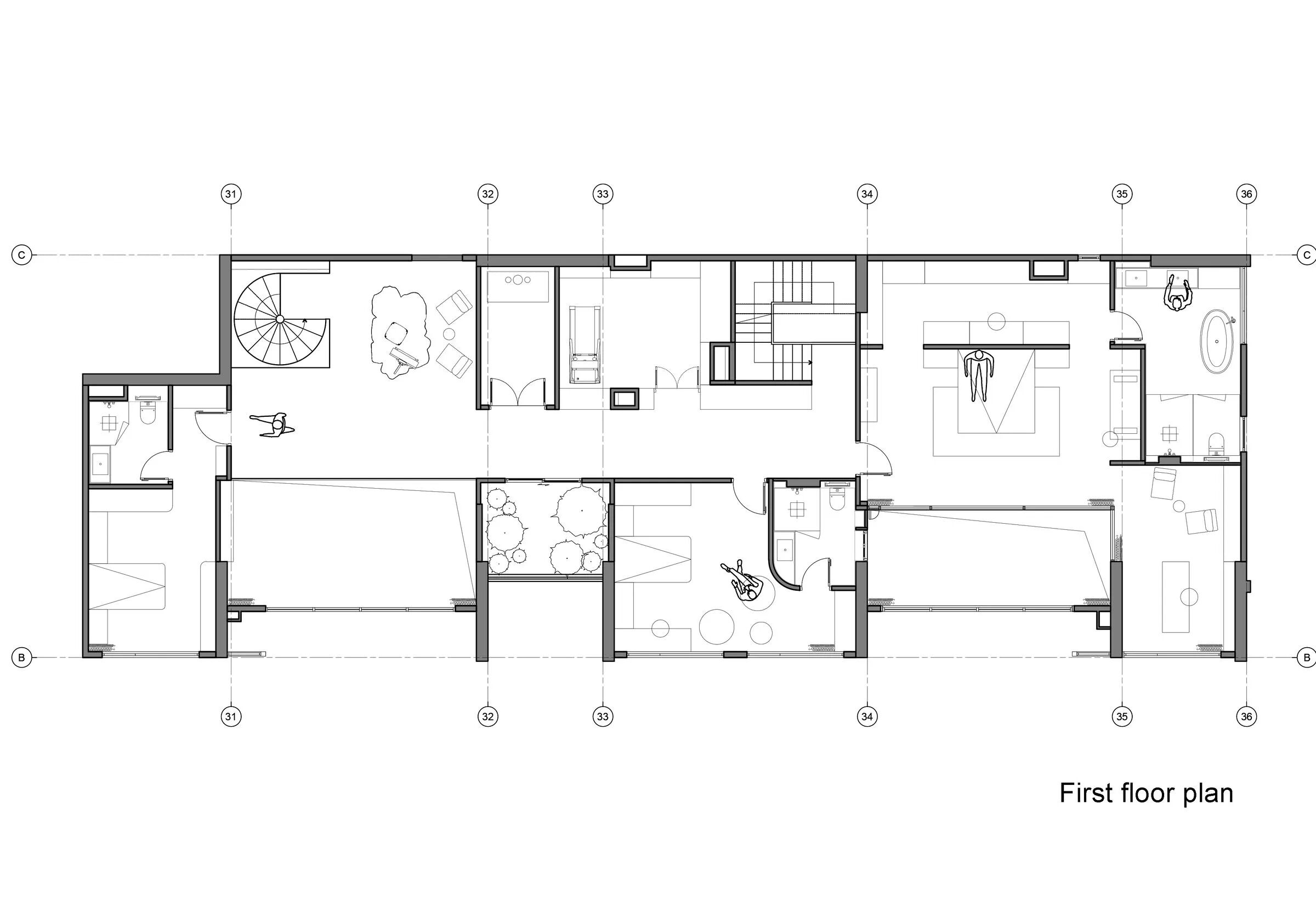
The design of Khai Son Duo Penthouse takes vertical connectivity as the core thread, weaving two adjacent penthouses into a cohesive living space for a young family. A central circulation spine neatly divides the space, with primary functional nodes on one side and city-view complementary areas on the other. The rectilinear stair and sculptural spiral stair at both ends act as spatial links, making the flow between the two floors smooth and natural, as if every step is a dialogue with the vertical space.
Khai Son Duo Penthouse 的设计以垂直连通为核心脉络,将两套相邻的顶层公寓编织成专属于年轻家庭的完整生活场域。中央的交通动线主轴清晰划分空间,一侧是核心功能节点,一侧是揽尽城市风光的补充区域。两端的直线楼梯与雕塑感旋转楼梯化作空间纽带,让两层之间的动线流转流畅自然,仿佛每一步前行,都是与垂直空间的一场对话。
Two large double-height voids are the soul of the penthouse’s spatial design, each carrying unique functional and emotional value. One is transformed into a spacious living room, where the high ceiling stretches the visual sense and creates an open and bright social space for family gatherings and friend gatherings. The other is an indoor garden extending from the dining and kitchen area to the private bedrooms, where the green plants soften the spatial lines and make the daily life full of the breath of nature.
两个大型双层挑高空间,是这套顶层公寓空间设计的灵魂所在,各自承载着独特的功能与情感价值。其一化作开阔的客厅,高挑的层高拉伸着视觉感,为家庭相聚、友人畅谈打造出通透敞亮的社交天地;其二则是从餐厨区延伸至私密卧室的室内花园,绿意盎然的草木柔化了空间线条,让日常起居始终浸润着自然的气息。
The design breaks the boundary between indoor and outdoor space, and the balconies and large windows make the city scenery of Long Bien a natural backdrop for the penthouse. When staying in the complementary areas with expansive views, people can enjoy the changing urban landscape with the shift of time and light, and the breeze blowing through the window brings the vividness of the city into the interior. This integration makes the residence not only a living space but also a vantage point to perceive the city.
设计打破了室内外的空间边界,阳台与大面积窗面让龙边郡的城市风光成为公寓的天然背景。置身于视野开阔的补充功能区,人们能随时间与光线的流转欣赏城市景致的变幻,穿窗而过的微风将城市的鲜活气息带入室内。这份融合让居所不仅是生活的容器,更成为感知城市的观景台,让日常与城市的脉搏同频。
The penthouse adopts a modern architectural language with bold and clean lines, and the material collocation is full of artistic tension. The rough and natural travertine stone surfaces form a striking contrast with the sleek and cold metallic elements, creating a perfect balance between raw texture and refined detail. The hard texture of steel, the primary building material, underpins the spatial structure, and the soft collocation of materials warms the space, making it both grand and intimate.
公寓采用大胆利落的现代建筑语言,材质搭配更充满艺术张力。粗犷自然的洞石表面,与流畅冷冽的金属元素形成鲜明对比,在原生肌理与精致细节之间勾勒出完美的平衡。主建筑材料钢材的硬朗质感支撑起空间结构,而材质的柔化搭配则为空间注入温度,让整个居所既有着大气的格局,又藏着触手可及的温馨。
For the young family, the vertical spatial design of the penthouse is not only a formal innovation but also a warm response to family life needs. The open and playful atmosphere created by the linear forms and tall trees is tailor-made for children’s growth, letting the little ones have enough space to run and explore. The diverse living areas meet the different needs of family members, and the fluid spatial flow makes the connection between family members closer, writing the warmth of family in every vertical corner.
对于这个年轻家庭而言,公寓的垂直空间设计不仅是形式上的创新,更是对家庭生活需求的温暖回应。线性形态与高大绿植营造的开放灵动氛围,为孩子的成长量身打造,让小家伙们拥有足够的空间奔跑探索。多元的生活区域满足了家庭成员的不同需求,流畅的空间动线让家人间的联结愈发紧密,将亲情的温暖写进每一处垂直的角落。
Khai Son Duo Penthouse interprets the new possibility of urban high-rise living with its unique spatial creativity. It abandons the traditional closed layout of penthouses and uses vertical connectivity to stretch the living space in three dimensions, giving the residence a unique sense of hierarchy and artistry. The design integrates openness, creativity and warmth, making the penthouse an elevated home that celebrates verticality and family life, setting a new benchmark for modern urban high-end residential design.
Khai Son Duo Penthouse 以独特的空间创造力,诠释了城市高层居住的全新可能。它摒弃了顶层公寓传统的封闭布局,以垂直连通让生活空间向三维延伸,赋予居所独特的层次感与艺术感。设计将开放性、创意性与温馨感融为一体,让这套顶层公寓成为致敬垂直美学与家庭生活的高阶居所,为现代城市高端住宅设计树立了全新标杆。
编辑:
夏边际
撰文:豆宝宝
校改:吴一仁
编排:布忠耀
本文素材图片版权来源于网络,
客服
消息
收藏
下载
最近








































